Ons kantoor is lid van Baerz & Co Luxury Homes; een internationaal platform dat exclusieve woningmakelaars met elkaar verbindt. Neem contact op met ons secretariaat voor meer informatie over het landelijke aanbod, waarvan u hieronder een selectie kunt bekijken.

RHENEN
Verlengde Oude Veenendaalseweg 26 - 3911 XC
荷兰

Wistik Zonnenberg profile image
Wistik Zonnenberg
Register Makelaar Taxateur/ Eigenaar
Price on request
生活区
267m2
地块大小
6060m2
卧室
3

描述

Rhenen独栋别墅静谧坐落于森林边缘,罕有地营造出远离尘嚣的安逸氛围,让自然成为日常节奏的主导,而每一处细节均展现出持久的品质追求。本别墅建于1995年,并于2020年经过精心翻新,共拥有267 m²通透亮丽的生活空间,分布于两层,建筑坐落在广阔的6,060 m²地块之上,兼顾了开阔感与私密性的绝佳平衡。

大面积落地窗让阳光洒满三间卧室和两间卫浴,窗外皆是静谧的绿意景致。底层自明亮的门厅进入,连通至宽敞的客厅,空间律动独具匠心,配备燃气壁炉和滑动玻璃门,可直通东南方向的景观花园。厨房于2020年全新升级,石材台面,高端家电一应俱全,并设有直接通往露台的通道,户外花园用餐便捷轻松。本层还设有一间书房,可作为工作空间,亦可灵活改造为第四间卧室。

楼上主套房配备空调、现代化套内卫浴及私人阳台。其余两间卧室均设嵌入式衣柜,阳台出入,同时展现带有裸露梁条的阁楼式斜顶氛围。全屋配备地暖、空调、中空玻璃以及完善的安防系统,全面提升居住舒适度。

户外空间绿草如茵,铺装露台宜人静谧,无论是惬意午后还是亲友聚会,皆可在全新谷仓风格遮棚下尽情畅享。物业还配备大面积隔热附属建筑、车棚与灌溉系统,赋予生活无限可能与低调奢华。距Rhenen市中心、学校及主要交通干道皆近在咫尺,这座独栋别墅为荷兰的自然式精致生活树立了全新典范。

与 Baerz 一起探索 Rhenen,您值得信赖的私人房产顾问和搜寻专家

雷嫩高端地产市场的信息远不止于公开房源。专业置业顾问可为客户提供独家交易与历史物业的私下洽购通道,这些房源通常不对外公开。他们在把握房源真实度、建筑潜力和业主动机方面的专业能力,保障买卖双方理性、稳健地做出决策。强大的本地洞察与谈判能力让您顺利完成流程、全面守护利益。

避免常见陷阱

国际买家经常浪费大量时间浏览重复、过时或误导性的在线房源,尤其是因为近 30% 的豪华物业根本不会公开上市。
卖方代理代表卖方的利益,而非您的利益;甚至仅仅对房产进行咨询,都可能导致中介在未经您同意的情况下将您登记为他们的“客户”。
通过 Baerz Property Finders & Advisors,您可以完全避免这些问题。
我们只代表您,提供独立建议、透明指导,并让您接触所有可售房源,包括私人及未上市的独家机会,这些往往不会被他人看到。

想知道如何获得您自己的私人房产顾问吗?联系我们,了解我们如何代表您的利益并为您打开整个市场。

特点

Alarm system
车库
所有权转让
价格面议
状态
Available
接受
In Concert
参考
07688
建筑
房屋类型
Villa
建筑类型
Detached House
建筑时期
1995
能源评级
B
屋顶类型
front gable
卧室
3
浴室
2
表面积和体积
生活区
267 m2
其他室内空间
8 m2
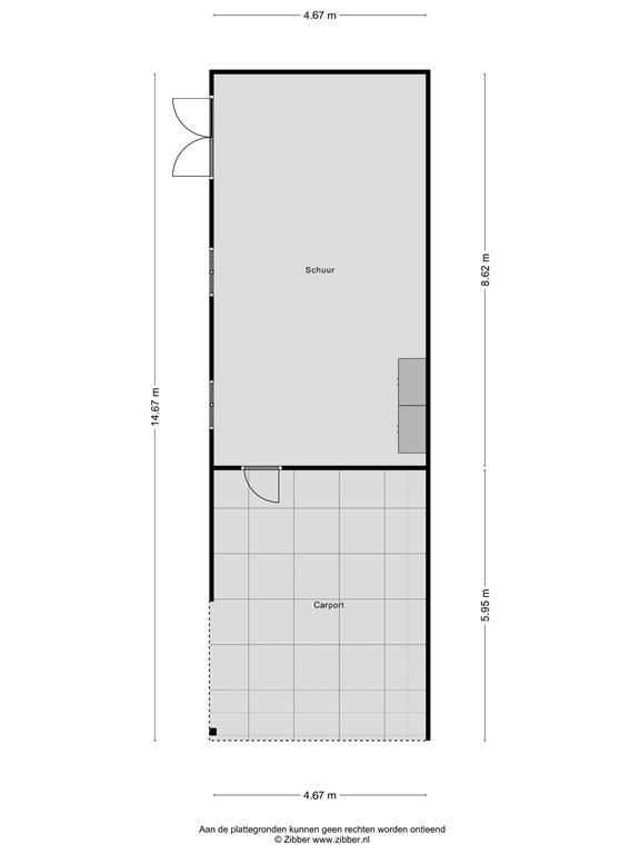
附属于建筑的外部空间
68 m2
外部储存空间
60 m2
体积(立方米)
1020 m3
地块大小
6060 m2
设施
Airco
Alarm
Balcony
Cable Tv
Fluetube
Not Furnished
Garage
Garden
Internetconnection
Phoneline
Skylight
Slidingdoors
Storageroom
Not Upholstered
Ventilation
Baerz & Co Property Brochure

宣传册

视频

Zonnenberg Makelaardij

Kerkewijk 108
3904 JG Veenendaal

info@zonnenbergmakelaardij.nl
+31 318 559600

www.zonnenbergmakelaardij.nl

信息/查看请求

Wistik Zonnenberg profile image
Wistik Zonnenberg
Register Makelaar Taxateur/ Eigenaar