Ons kantoor is lid van Baerz & Co Luxury Homes; een internationaal platform dat exclusieve woningmakelaars met elkaar verbindt. Neem contact op met ons secretariaat voor meer informatie over het landelijke aanbod, waarvan u hieronder een selectie kunt bekijken.

LISSE
Achterweg-zuid 56 - 2161 DZ
荷兰

Frits Wilbrink profile image
Frits Wilbrink
Real estate agent
€3,950,000 k.k.
生活区
590m2
地块大小
10170m2
卧室
6

描述

Lisse乡村别墅在享誉世界的荷兰花卉田园中心,呈现出罕见的永恒建筑美学与卓越私密性的融合。这座占地590平方米的宅邸建于2009年,隐逸地坐落于10,170平方米的地块之上,四周环水,并以装饰性电动围栏和精心设计的园林环抱,园中设有露台、阳台、两个池塘和成熟植被。步行即可抵达郁金香公园(Keukenhof)和历史古堡,将当地生活的节奏与四季流转的色彩尽纳门前。

通过电动大门抵达庄重入口,豪华与舒适自此铺展。法式玻璃门、实木拼花地板与高挑天花,塑造出流畅且充盈自然光线的室内空间。宽敞厨房配备高端电器与燃气壁炉,与客厅和餐厅巧妙衔接。首层主套房设有衣帽间与专属卫浴,可直通花园;楼上为其他卧室,均享有宽广园林景观。

全地下室配备水疗级养生中心,设有芬兰桑拿、土耳其蒸汽浴和休憩空间。健身房、带酒吧的休闲厅及大型洗衣区,为日常生活赋予更多可能。集成智能家居控制、Naim音响系统、地暖与顶面冷却、货运电梯和全方位安保体系(含摄像头和可视对讲),赋予整座别墅极致舒适与隐私。

独立车库可容纳六辆车,配有地暖及工作区,也可灵活调整以备未来所需。节能配置如热泵与高等级隔热,完善了整座宅邸的可持续性。

Keukenhof、森林与Lisse中心皆可步行抵达,主要国际枢纽三十分钟内即达。这套在Lisse待售的豪华别墅,在静谧、设计与安防间实现非凡平衡,带来恒久价值与安心生活。

与 Baerz 一起探索 Lisse,您值得信赖的私人房产顾问和搜寻专家

利瑟独特的高端市场由稀缺的供应与精细的业主买家关系主导。私人地产顾问可开启场外资源,助力低调磋商,保障交易符合您的私密、品质与时机期望,并以尽职调查与专属合同维护权益。

避免常见陷阱

国际买家经常浪费大量时间浏览重复、过时或误导性的在线房源,尤其是因为近 30% 的豪华物业根本不会公开上市。
卖方代理代表卖方的利益,而非您的利益;甚至仅仅对房产进行咨询,都可能导致中介在未经您同意的情况下将您登记为他们的“客户”。
通过 Baerz Property Finders & Advisors,您可以完全避免这些问题。
我们只代表您,提供独立建议、透明指导,并让您接触所有可售房源,包括私人及未上市的独家机会,这些往往不会被他人看到。

想知道如何获得您自己的私人房产顾问吗?联系我们,了解我们如何代表您的利益并为您打开整个市场。

特点

Alarm system
所有权转让
要价
€ 3.950.000 k.k.
状态
beschikbaar
接受
in overleg
建筑
房屋类型
Landhuis
建筑类型
vrijstaande woning
建筑时期
2009
能源评级
A+
屋顶类型
samengesteld dak
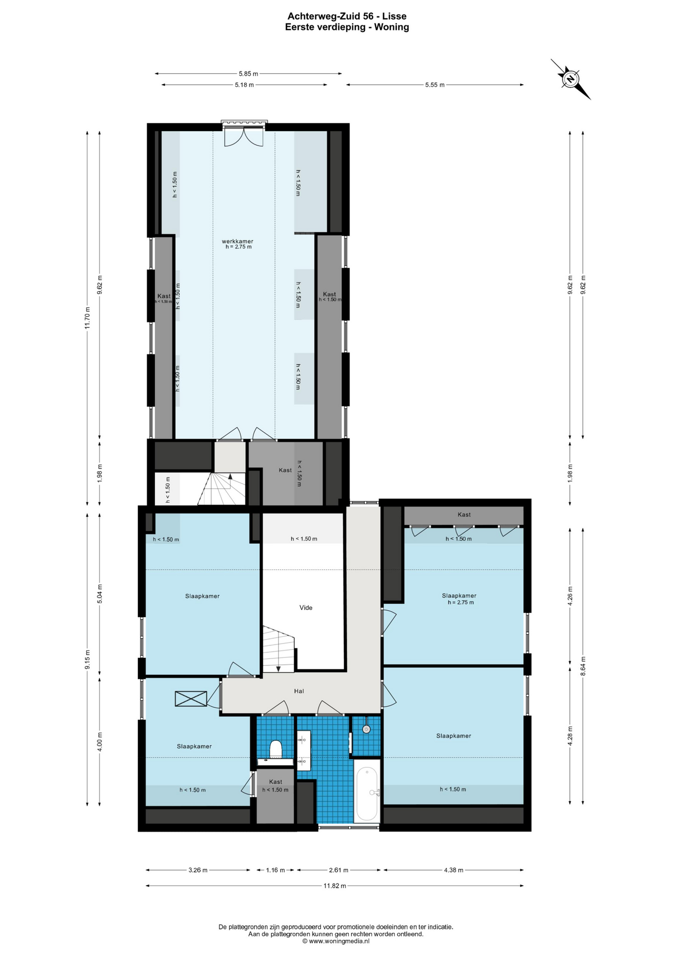
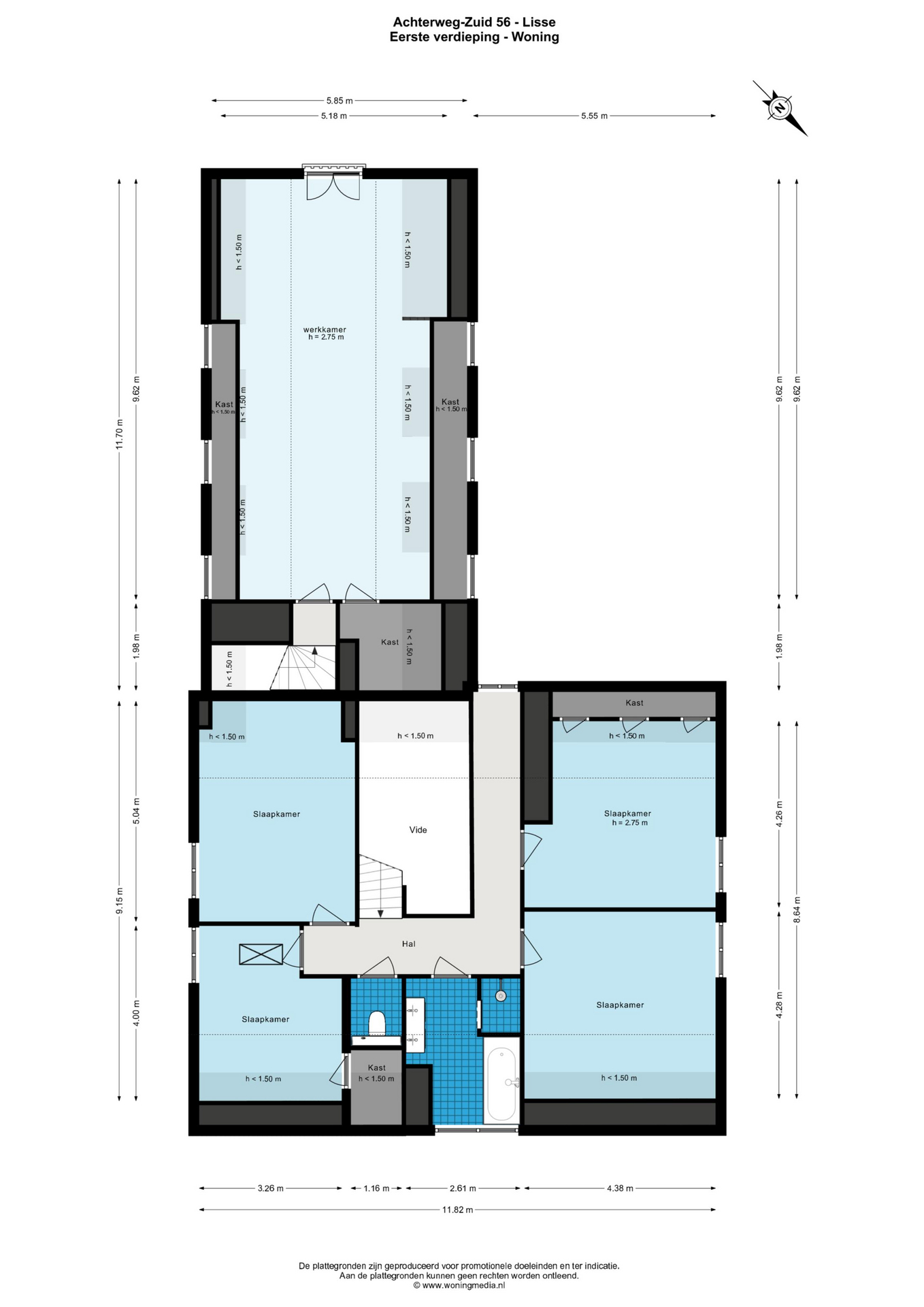
卧室
6
浴室
2
表面积和体积
生活区
590 m2
其他室内空间
31 m2
附属于建筑的外部空间
20 m2
外部储存空间
352 m2
体积(立方米)
2859 m3
地块大小
10170 m2
设施
Alarminstallatie
Lift
Stoomcabine
Rookkanaal
Frans balkon
Domotica
Aan water
Aan rustige weg
Vrij uitzicht
Open ligging
Buiten bebouwde kom
In bosrijke omgeving
Landelijk gelegen
Baerz & Co Property Brochure

宣传册

视频

Wilbrink & v.d. Vlugt Makelaars

Heereweg 231
2161 BG Lisse

info@wilbrinkvandervlugt.nl
+31 252 41 90 49

www.onsaanbod.nl

信息/查看请求

Frits Wilbrink profile image
Frits Wilbrink
Real estate agent