Ons kantoor is lid van Baerz & Co Luxury Homes; een internationaal platform dat exclusieve woningmakelaars met elkaar verbindt. Neem contact op met ons secretariaat voor meer informatie over het landelijke aanbod, waarvan u hieronder een selectie kunt bekijken.

AMSTERDAM
Stadhouderskade 22 B - 1054 ES
荷兰

Sander Bovenkerk profile image
Sander Bovenkerk
Real estate agent
€2,400,000 k.k.
居住面积
219m2
地块大小
N/A
卧室
3

描述

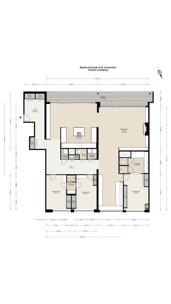
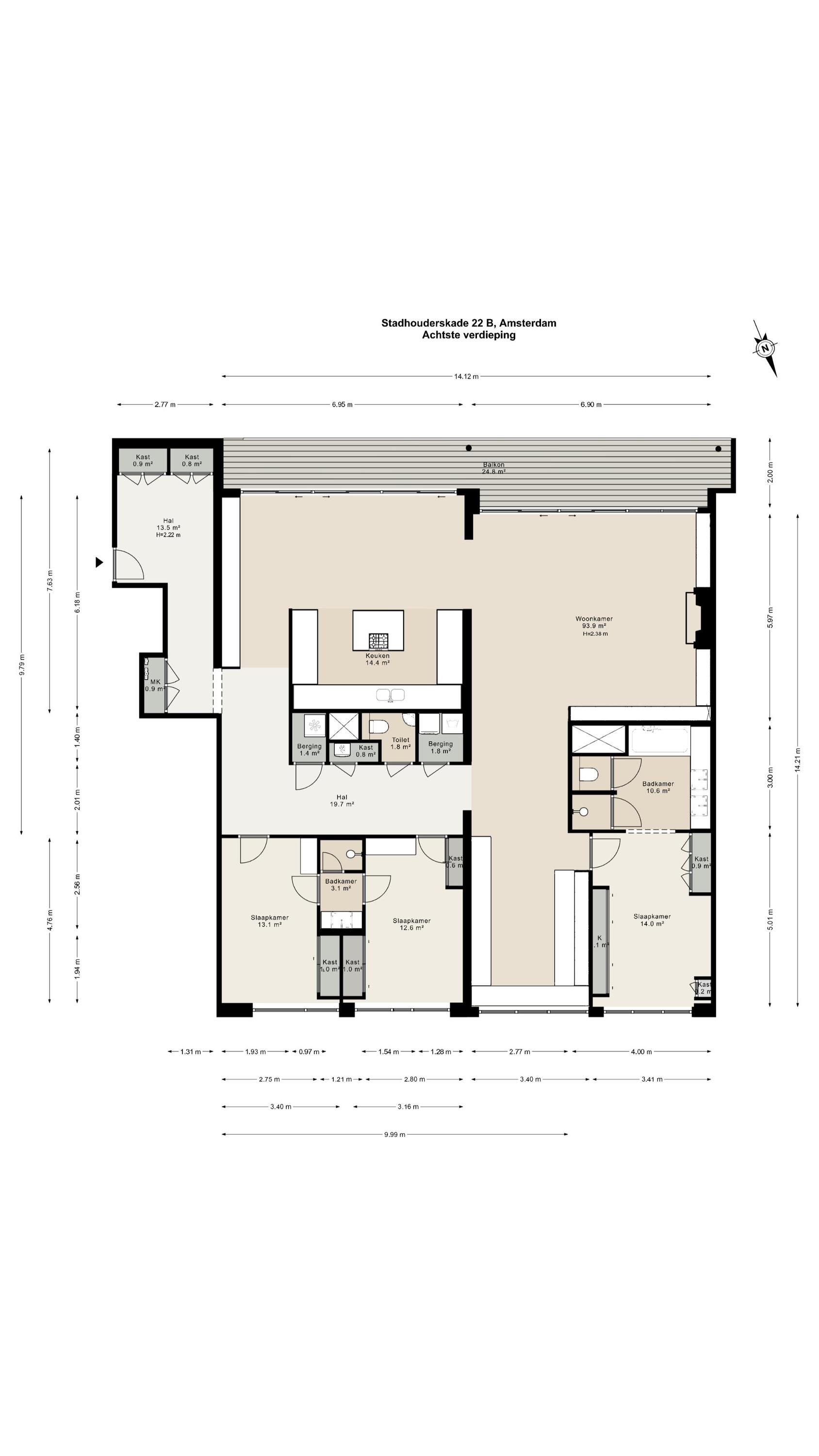
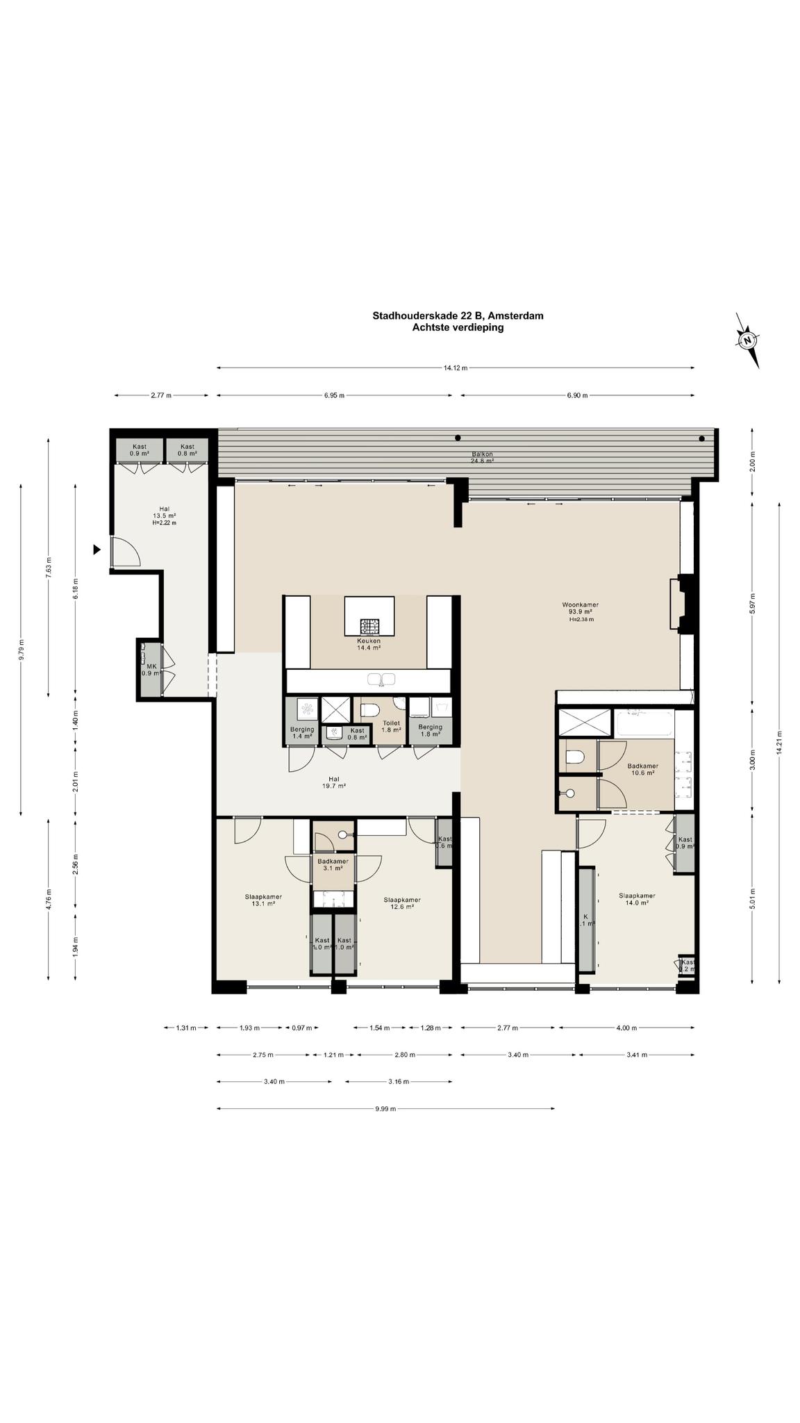
阿姆斯特丹顶层公寓位于Byzantium综合体的第八层,紧邻冯德尔公园。这套219 m²的公寓在建筑清晰感与卓越私密性之间实现了完美平衡,拥有宽敞、明亮的生活空间,并享有无与伦比的城市绿心近距优势。步入以天然石材打造的豪华大堂,建筑的优雅气质立刻彰显。由Rem Koolhaas设计的Byzantium综合体提供24小时安保、礼宾服务,并可通过电梯直达地下车库,车库内可选配带有电动汽车充电桩的停车位。

进入顶层公寓,宽阔的玄关引领至开放式起居空间,落地玻璃门将室内与横跨整套公寓宽度的25 m²阳台自然连通。冯德尔公园尽收眼底,无论是起居区还是厨房皆可欣赏,城市中难得的宁静由此注入生活。厨房设施齐全,配备中央操作岛、六头电磁炉和充足储物空间。客厅拥有燃气壁炉与定制柜体,并衔接成一处舒适办公区。三间卧室均配有嵌入式衣柜、定制书桌及空调,主卧套房设有绿色大理石浴室及双洗手台。全屋地暖和高能效系统确保全年舒适,配合双层玻璃与机械通风系统。

Byzantium住户可享受专业物业管理、长期维护规划和共用景观花园。所有城市配套设施步行即可到达:从P.C. Hooftstraat精品店到世界级的博物馆、剧院与餐饮设施一应俱全。Leidseplein和Marnixstraat的有轨电车与巴士点,便于前往阿姆斯特丹各地及史基浦机场。这套在阿姆斯特丹待售的豪华顶层公寓,汇集了典范都市生活、广阔空间与经久不衰的建筑价值。

与Baerz一起探索Amsterdam,您值得信赖的个人房产搜索和顾问

驾驭阿姆斯特丹高端市场需深厚本地洞察、严密保密与谈判专业技巧。顶尖顾问可助您获取私密房源,梳理细致产权规定,并洞察那些罕见进入市场的隐藏机会。顾问团队严苛资产甄别与代表,提升协商地位、确保交易顺畅并全程保障您的隐私。

特点

空调
所有权转让
要价
€ 2.400.000 k.k.
状态
verkocht onder voorbehoud
接受
in overleg
建筑
房屋类型
Penthouse
建筑类型
appartement
建造时期
1991
能源评级
A
屋顶类型
samengesteld dak
卧室
3
浴室
0
表面积和体积
居住面积
219 m2
其他室内空间
0 m2
附属于建筑的外部空间
25 m2
体积(立方米)
635 m3
设施
Mechanische ventilatie
Buitenzonwering
Lift
Airconditioning
Rookkanaal
Aan park
In centrum
Vrij uitzicht
Baerz & Co Property Brochure

宣传册

视频

户型图

Heeren Makelaars

Stadionweg 75
1077 SE Amsterdam

info@heerenmakelaars.nl
+31 204702255

www.heerenmakelaars.nl

信息/查看请求

Sander Bovenkerk profile image
Sander Bovenkerk
Real estate agent

在购买豪华房产 Amsterdam

阿姆斯特丹以传承、互联及低调奢华定义了国际化生活方式。居民享有多元国际社群、精心策划服务及蓬勃文化氛围。城市持久魅力在于其历史积淀、精致格调与进取精神的结合。