Ons kantoor is lid van Baerz & Co Luxury Homes; een internationaal platform dat exclusieve woningmakelaars met elkaar verbindt. Neem contact op met ons secretariaat voor meer informatie over het landelijke aanbod, waarvan u hieronder een selectie kunt bekijken.

AMSTERDAM
Keizersgracht 699 D - 1017 DW
荷兰

Floor Neomagus profile image
Floor Neomagus
Real Estate Agent
€1,000,000 k.k.
居住面积
81m2
地块大小
N/A
卧室
3

描述

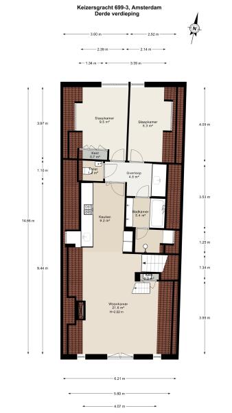
这套阿姆斯特丹运河公寓位于著名的Keizersgracht上一座经过精心修复的Rijksmonument内,建筑遗产与精致的居住体验相得益彰。房产面积为81平方米,分布于两层上层空间,设有三间卧室、宽敞的起居区,可尽览迷人的运河景致,所用材质均经过严选,以确保品质与溯源。

主要生活区位于三层,采用裸露横梁设计与燃气壁炉,充足采光通过法式落地窗引入室内,视野直面河道。全屋铺设人字拼橡木地板,配备地暖,细节处处体现精致工艺。奢华开放式厨房配备高端嵌入式家电,包括Quooker龙头、Bora集成抽油烟机的感应炉灶及两台Siemens Studioline烤箱。钢框玻璃门通向走廊及大理石浴室,浴室配有双台盆、独立浴缸和步入式雨淋花洒。两间卧室面朝静谧绿色庭院,第三间带夹层结构的卧室位于顶层。

该永久产权物业距离阿姆斯特丹著名文化场馆仅数步之遥,Utrechtsestraat、画廊、餐厅及Hermitage博物馆均在附近。公共交通和安全停车场的接入便捷,确保顺畅融入城市节奏。作为一处难得结合了私密性、建筑尊严与名门地段的奢华运河公寓,这里是专属与出处的静谧典范。

与Baerz一起探索Amsterdam,您值得信赖的个人房产搜索和顾问

驾驭阿姆斯特丹高端市场需深厚本地洞察、严密保密与谈判专业技巧。顶尖顾问可助您获取私密房源,梳理细致产权规定,并洞察那些罕见进入市场的隐藏机会。顾问团队严苛资产甄别与代表,提升协商地位、确保交易顺畅并全程保障您的隐私。

特点

所有权转让
要价
€ 1.000.000 k.k.
状态
verkocht onder voorbehoud
接受
in overleg
建筑
房屋类型
Bovenwoning
建筑类型
appartement
建造时期
1690
能源评级
C
卧室
3
浴室
1
表面积和体积
居住面积
81 m2
其他室内空间
0 m2
体积(立方米)
242 m3
设施
Mechanische ventilatie
Tv kabel
Aan water
In centrum
Vrij uitzicht
Aan vaarwater
Baerz & Co Property Brochure

宣传册

视频

Heeren Makelaars

Stadionweg 75
1077 SE Amsterdam

info@heerenmakelaars.nl
+31 204702255

www.heerenmakelaars.nl

信息/查看请求

Floor Neomagus profile image
Floor Neomagus
Real Estate Agent