Carré Farmhouse Tegelen изысканно сочетает в себе наследие Нидерландов и сдержанную сельскую роскошь. Этот монументальный каре-фермерский дом, числящийся в муниципальном реестре как памятник архитектуры, занимает 503 м² и расположен на участке площадью 7 616 м² с ландшафтным озеленением; вдобавок к нему прилагается еще 600 м² земли, арендованных у муниципалитета. С четырьмя спальнями и одной ванной комнатой усадьба предлагает обширное пространство, сохраняя при этом исторический характер благодаря бережной реставрации и подлинному архитектурному стилю.
В интерьерах сохранились оригинальные архитектурные элементы, такие как сводчатые подвалы, французские двери, деревянные полы и величественный открытый камин. Всё это сочетается с большими окнами и просторной планировкой. Центральный двор, украшенный изысканными арками и крытой террасой площадью 65 м², образует сердцевину дома, стирая границы между жилым пространством и ухоженным садом. Алюминиевый зимний сад с подогреваемым полом открывает панорамный вид на ухоженные сады, пруд и вековые деревья, наполняя дом светом и покоем в течение всего года.
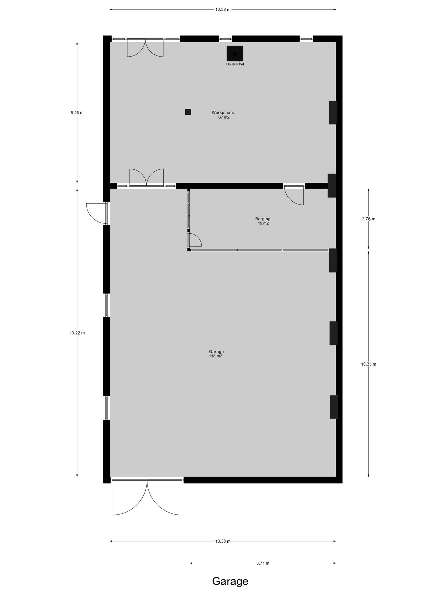
Практичность подчеркивается высокими потолками гаража и полностью оборудованной мастерской, к которым ведут частные автоматические ворота. Современные удобства, такие как механическая вентиляция, центральное отопление и кондиционирование, органично дополняют безвременный ритм дома. Игровой чердак, антресоли и просторное чердачное помещение открывают перспективы дальнейшей перепланировки.
Несмотря на уединённое загородное расположение у границы с Германией, Carré Farmhouse Tegelen находится всего в нескольких минутах от центра Тегелена и предлагает утонченную приватность с прекрасным доступом к магазинам, ресторанам, транспорту и основным автомагистралям. Это роскошное фермерское поместье на продажу в Тегелене — редкое сочетание происхождения, приватности и умиротворённой сельской жизни.
Исследуйте Tegelen с Baerz, вашим надежным личным консультантом по недвижимости
Дефицит и конфиденциальность рынка означают, что лучшие объекты продаются вне публичного предложения. Профессиональные консультанты обеспечивают доступ к уникальным вариантам, а также юридическое и техническое сопровождение при сделках. Их компетенции гарантируют выгодные условия и полную приватность.
Избегайте распространенных ошибок
Международные покупатели часто тратят драгоценное время на дублирующиеся, устаревшие или вводящие в заблуждение онлайн-объявления, особенно учитывая, что почти 30% роскошных домов никогда не появляются на открытом рынке. Агенты продавца представляют интересы продавца, а не покупателя. Даже запрос информации о недвижимости может привести к тому, что агент продавца зарегистрирует вас как своего «клиента» без вашего согласия.
С Baerz Property Finders & Advisors вы полностью избегаете всех этих ошибок. Мы работаем исключительно в ваших интересах, предлагая независимое представительство, четкое руководство и доступ ко всем доступным объектам, включая возможности вне рынка, которые другие никогда не увидят.
Интересует Личный Консультант по Недвижимости?
Мы показываем вам все доступные дома в одном месте. Не стесняйтесь связаться с нами, чтобы узнать, как мы можем удовлетворить ваши потребности и защитить ваши интересы исключительно.