Вилла Kaageiland с крытым бассейном и видами на воду задает атмосферу спокойствия на этом идиллическом голландском острове, сочетая уединение и продуманный комфорт для ценителей приватности и простора. Этот отдельно стоящий дом, построенный в 2010 году, располагает жилой площадью 347 м² на участке 496 м² с прямым выходом к открытой воде и панорамными видами на окрестности.
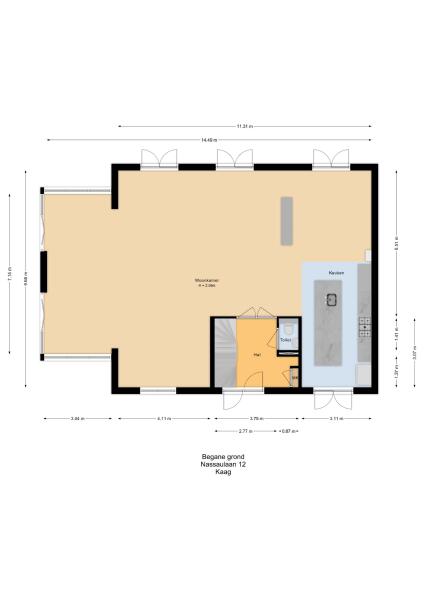
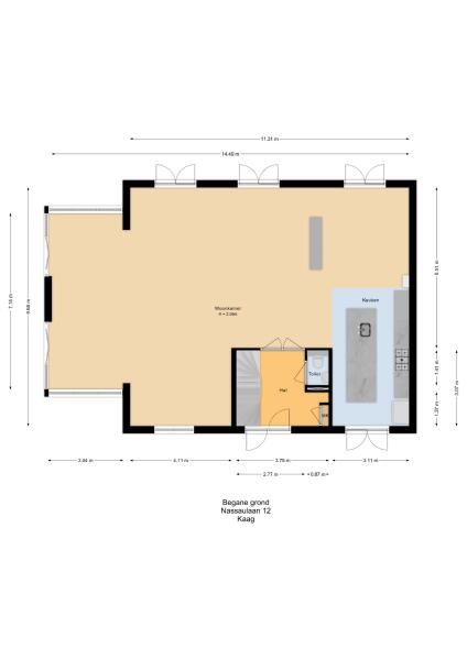
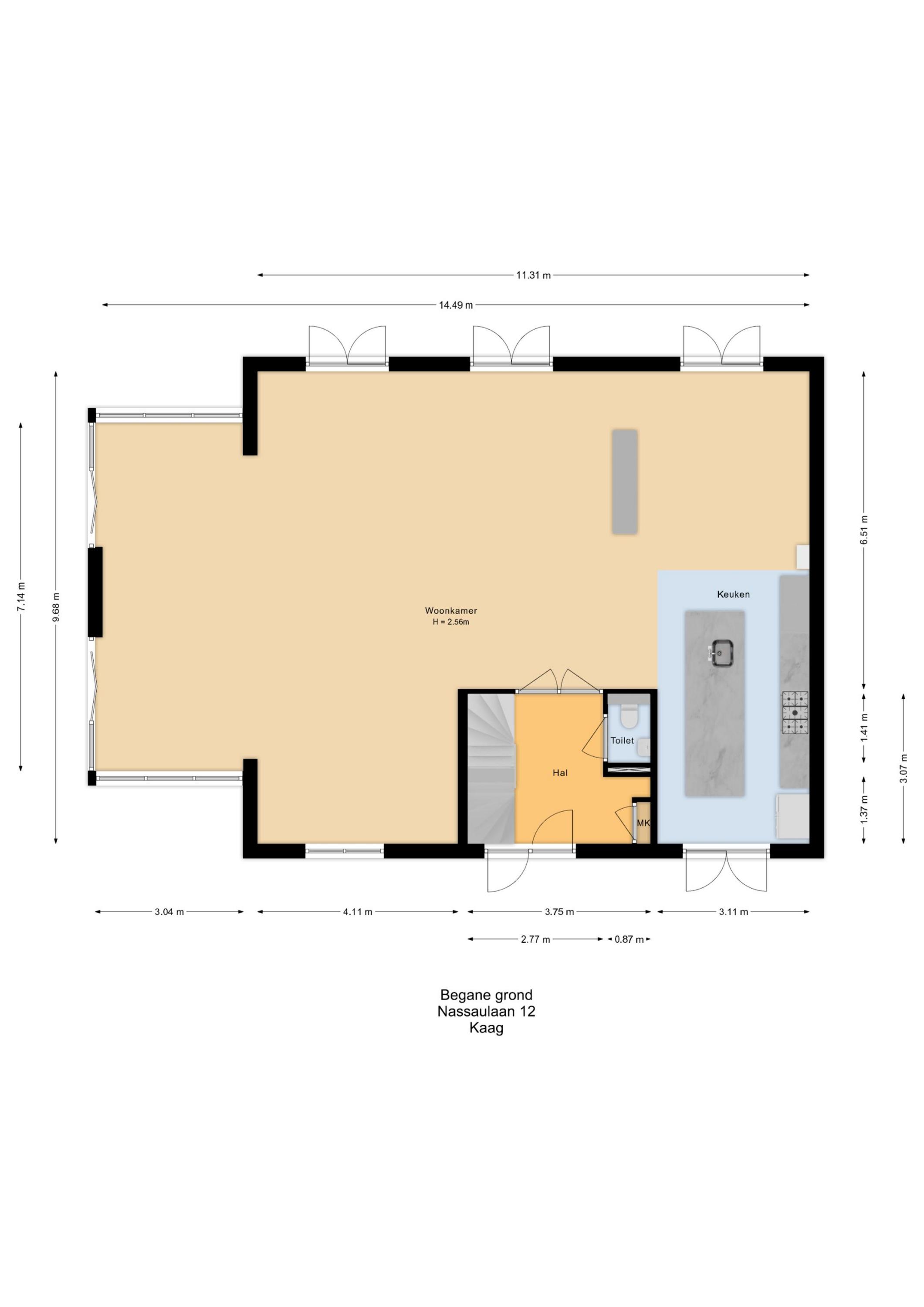
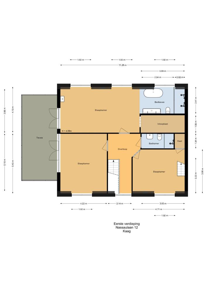
Светлая и просторная гостиная с центральным газовым камином плавно переходит через раздвижные двери в террасу на крыше площадью 25 м² и в настил прямо над водой. Кухня предназначена для тех, кто ценит функциональность и эстетику: центральный остров с мойкой и полный комплект встроенной техники. Три спальни и две современные ванные комнаты обеспечивают приватность и комфорт гостям; все помещения оснащены системой теплых полов.
На цокольном этаже предусмотрен подогреваемый крытый бассейн, зона wellness и комнаты для отдыха или хобби. Снаружи — терраса из декового настила с разными зонами отдыха и частный причал для доступа к Kagerplassen. Ландшафтный сад создает атмосферу уединенности, есть джакузи и парковка на участке.
Элементы высокого класса — кондиционирование, охранная сигнализация, система умягчения воды и полная теплоизоляция — гарантируют тишину и безопасность. Вилла Kaageiland занимает уникальное положение на острове с удобным доступом к крупным городам, аэропорту Схипхол и побережью Северного моря. Сдержанная роскошь этой виллы на продажу в Kaageiland привлечет тех, кто ищет подлинность и утонченную простоту.
Исследуйте Kaag вместе с Baerz — вашим надежным советником и личным поисковиком недвижимости
Профессиональные советы и сделки вне рынкаПокупка элитного объекта в Кааге — это работа на рынке, где главенствуют конфиденциальность, уникальность и ограниченность предложения. Опытные консультанты предоставляют доступ к эксклюзивным предложениям и экспертные навыки переговоров, защищая интересы клиентов. Их экспертное мнение помогает ориентироваться в динамике цен, правовых нюансах и сложностях владения. Сотрудничество с признанными профессионалами — самый надёжный путь к успеху в закрытом сообществе Каага.
Избегайте распространённых ошибок
Международные покупатели часто тратят ценное время на изучение дублирующихся, устаревших или вводящих в заблуждение онлайн-объявлений, особенно учитывая, что почти 30% объектов элитной недвижимости вообще не появляются на открытом рынке.
Агенты продавца представляют интересы продавца, а не ваши, и даже простой запрос о недвижимости может привести к тому, что агентство зарегистрирует вас как своего “клиента” без вашего согласия.
С Baerz Property Finders & Advisors вы полностью избегаете этих подводных камней.
Мы действуем исключительно в ваших интересах, предоставляя независимое представительство, прозрачные рекомендации и доступ ко всем доступным объектам, включая частные и вне-рыночные предложения, которых другие никогда не увидят.
Хотите узнать, как получить собственного персонального консультанта по недвижимости? Свяжитесь с нами, чтобы узнать, как мы можем представлять ваши интересы и открыть вам весь рынок.