Вилла Kaag Island на воде переосмысливает понятие уединённой роскоши, сочетая приватность, воду и утончённый комфорт на редком участке острова площадью 535 м². Эта вилла, построенная в 2000 году с жилой площадью 184 м², расположена непосредственно на берегу Кагерплассен, где каждый день начинается с плеска воды у дома и заканчивается мягким солнечным светом на частном причале. Просторный холл с открытым антресольным пространством и удобной гардеробной уже при входе создаёт ощущение света и размаха.
Гостиная, согреваемая газовым камином и украшенная классическим лепным декором, открывает постоянные виды на воду благодаря эркерам и панорамным двустворчатым дверям от пола до потолка, плавно переходящим в солнечную террасу над водой.
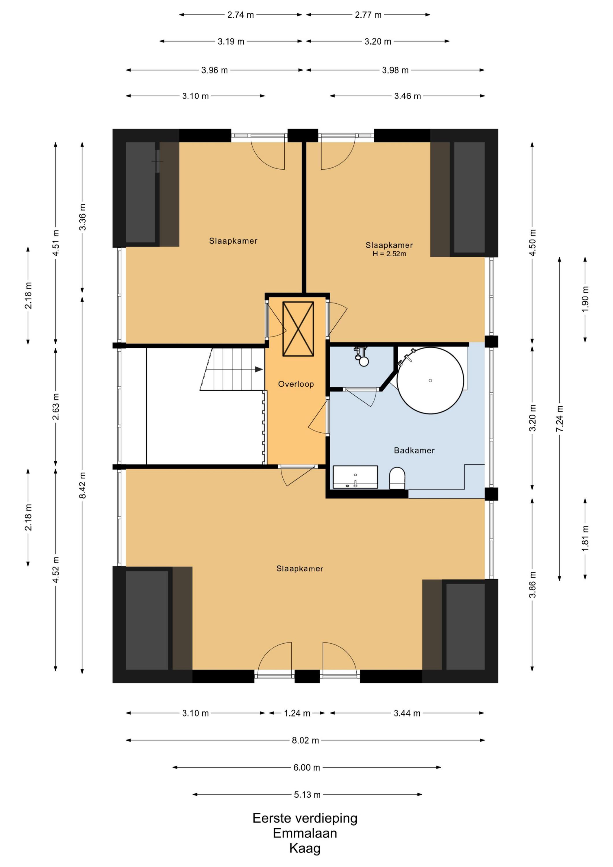
Кухня, одинаково подходящая для камерных завтраков и приёма гостей, выходит на террасу палубного типа. В отдельной комнате предусмотрено место для прачечной, центрального отопления и хранения вещей. На втором этаже расположены три просторные спальни, каждая с люкарнами, французскими балконами и доступом в роскошную ванную с глубокой ванной и джакузи. Исключительная теплоизоляция, механическая вентиляция и энергетический класс C гарантируют комфорт и тишину круглый год.
Снаружи ухоженный ландшафтный сад и собственная парковка подчеркивают сдержанный престиж. Частный причал виллы приглашает к неспешным прогулкам на лодке по озёрам, при этом Лейден, Амстердам, Гаага и Харлем находятся совсем рядом. Эта вилла на острове Кааг воплощает редкий ритм островной жизни, где приватность и открытое общение органично сочетаются в особом стиле. Для тех, кто ищет элитную виллу на продажу в Кааге, это предложение воплощает спокойствие прибрежной жизни и вечную эстетику.
Исследуйте Kaag вместе с Baerz — вашим надежным советником и личным поисковиком недвижимости
Профессиональные советы и сделки вне рынкаПокупка элитного объекта в Кааге — это работа на рынке, где главенствуют конфиденциальность, уникальность и ограниченность предложения. Опытные консультанты предоставляют доступ к эксклюзивным предложениям и экспертные навыки переговоров, защищая интересы клиентов. Их экспертное мнение помогает ориентироваться в динамике цен, правовых нюансах и сложностях владения. Сотрудничество с признанными профессионалами — самый надёжный путь к успеху в закрытом сообществе Каага.
Избегайте распространённых ошибок
Международные покупатели часто тратят ценное время на изучение дублирующихся, устаревших или вводящих в заблуждение онлайн-объявлений, особенно учитывая, что почти 30% объектов элитной недвижимости вообще не появляются на открытом рынке.
Агенты продавца представляют интересы продавца, а не ваши, и даже простой запрос о недвижимости может привести к тому, что агентство зарегистрирует вас как своего “клиента” без вашего согласия.
С Baerz Property Finders & Advisors вы полностью избегаете этих подводных камней.
Мы действуем исключительно в ваших интересах, предоставляя независимое представительство, прозрачные рекомендации и доступ ко всем доступным объектам, включая частные и вне-рыночные предложения, которых другие никогда не увидят.
Хотите узнать, как получить собственного персонального консультанта по недвижимости? Свяжитесь с нами, чтобы узнать, как мы можем представлять ваши интересы и открыть вам весь рынок.