Фермерский дом Hellouw занимает сдержанно впечатляющее положение на окраине деревни Бетуве, а его история, начинающаяся с 1917 года, отражается в каждой детали. Дом расположен на участке площадью 4 910 м² и предлагает 403 м² жилой площади, пять спален и две ванные комнаты. Просторные помещения и аутентичные элементы создают облик интерьера: песчаниковые камины и деревянные балки наполняют жилые пространства теплом и основательностью. На первом этаже располагаются просторная гостиная с видом на сад в бывшем амбаре, кухня в сельском стиле со старинной плиткой, винный погреб и ряд комнат на уровне земли: спальня с камином, гардеробная и кабинет — все они ориентированы на частный сад.
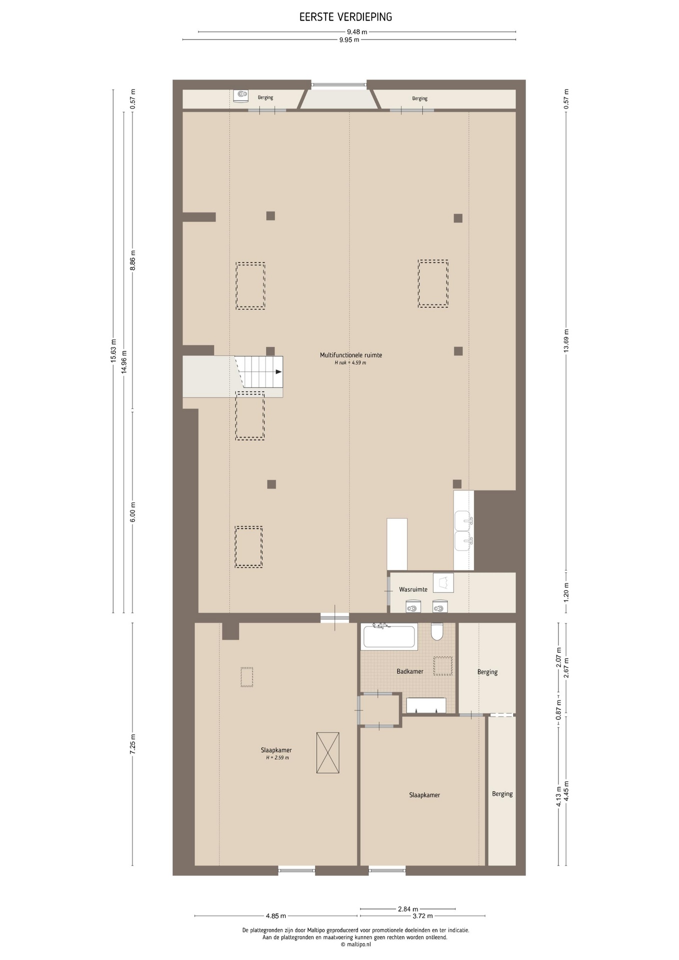
Над задним крылом на втором этаже находится открытый лофт с коньком высотой 4,5 метра и кладовой; парадное крыло предлагает еще две спальни и одну ванную комнату. Каждый аспект дома реализован с заботой о комфорте: полы с подогревом, кондиционирование, механическая вентиляция и энергоэффективные двухкамерные окна.
Вне дома пространство обустроено с учетом приватности и экологичности: цветники, зрелые ивы, фруктовый сад с яблоками, грушами, сливами и айвой; лесной пруд создают парк для отдыха, куда часто заглядывает дикая природа. Изолированная постройка с дровяной печью и французскими дверями расширяет диапазон использования — для мастерской, гостиной зоны или спокойного кабинета.
Расположение Hellouw в регионе Бетуве предлагает умиротворяющее погружение в деревенскую жизнь: природные заповедники и тропы вдоль рек начинаются у порога, но при этом все удобства и города — от Горинхема до Утрехта — остаются легко доступными. Этот фермерский дом гармонично соединяет историю, природу и приватность в подчеркнуто сдержанном стиле — для тех, кто ценит подлинность и простор в самом сердце Нидерландов.
Исследуйте Хеллоув вместе с Baerz — вашим надежным советником и личным поисковиком недвижимости
В закрытом сегменте рынка особенно важна инсайдерская информация и терпеливые переговоры. Местные эксперты предоставляют доступ к внебиржевым предложениям, отлично разбираются в реставрации и правовых нюансах, проводят международные сделки. Профессиональное сопровождение — залог структурирования сделки по всем стандартам Нидерландов и Европы.
Избегайте распространённых ошибок
Международные покупатели часто тратят ценное время на изучение дублирующихся, устаревших или вводящих в заблуждение онлайн-объявлений, особенно учитывая, что почти 30% объектов элитной недвижимости вообще не появляются на открытом рынке.
Агенты продавца представляют интересы продавца, а не ваши, и даже простой запрос о недвижимости может привести к тому, что агентство зарегистрирует вас как своего “клиента” без вашего согласия.
С Baerz Property Finders & Advisors вы полностью избегаете этих подводных камней.
Мы действуем исключительно в ваших интересах, предоставляя независимое представительство, прозрачные рекомендации и доступ ко всем доступным объектам, включая частные и вне-рыночные предложения, которых другие никогда не увидят.
Хотите узнать, как получить собственного персонального консультанта по недвижимости? Свяжитесь с нами, чтобы узнать, как мы можем представлять ваши интересы и открыть вам весь рынок.