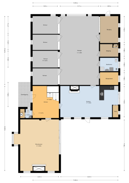
Фермерский дом в Энсхеде располагается на границе районов Хет Стокхорст и сельской местности Хоге Букел, занимая участок площадью 7,24 гектара и жилой дом 195 м², воплощающий дух сельского наследия Твенте. Основное здание построено в 1930 году, задает уравновешенный ритм благодаря входу из бентгеймского камня и просторной endskamer, наполняясь зелёными видами и мягким светом над частными лугами. Сохранились оригинальные камины и традиционная конструкция, а планировка обеспечивает логичный переход от кухни в стиле кантри к спальным комнатам на втором этаже и большой ванной.
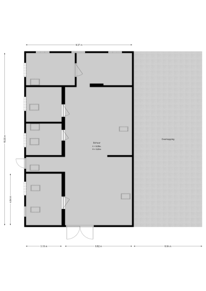
Хозяйственные постройки включают амбар в саксонском стиле площадью 225 м², конюшню с пятью стойлами для лошадей и дополнительные помещения, предназначенные для конного спорта и сельскохозяйственных нужд. На опушке леса предусмотрен уютный летний домик для гостей, а также такие вспомогательные строения, как старый овчарник, курятник и склад—тихий реверанс традициям твентеских хозяйств.
Просторные луга, манеж, 2,4 гектара зрелого леса и извилистый ручей определяют ландшафт, создавая естественную уединённость и подлинное чувство близости к природе. Расположение усадьбы обеспечивает гармонию приватности и доступности: центр Энсхеде, Хенгело и Олдензал находятся рядом, а местный контекст формируют Rijksmuseum Twenthe, динамичная гастрономия и уважаемые образовательные учреждения. Этот фермерский дом в Энсхеде — редкое предложение в сельской местности, предназначен для проживания с сельскохозяйственным характером и пользуется преимуществами голландских природоохранных инициатив и возможностью бережного переосмысления.
Исследуйте Enschede вместе с Baerz — вашим надежным советником и личным поисковиком недвижимости
Избегайте распространённых ошибок
Международные покупатели часто тратят ценное время на изучение дублирующихся, устаревших или вводящих в заблуждение онлайн-объявлений, особенно учитывая, что почти 30% объектов элитной недвижимости вообще не появляются на открытом рынке.
Агенты продавца представляют интересы продавца, а не ваши, и даже простой запрос о недвижимости может привести к тому, что агентство зарегистрирует вас как своего “клиента” без вашего согласия.
С Baerz Property Finders & Advisors вы полностью избегаете этих подводных камней.
Мы действуем исключительно в ваших интересах, предоставляя независимое представительство, прозрачные рекомендации и доступ ко всем доступным объектам, включая частные и вне-рыночные предложения, которых другие никогда не увидят.
Хотите узнать, как получить собственного персонального консультанта по недвижимости? Свяжитесь с нами, чтобы узнать, как мы можем представлять ваши интересы и открыть вам весь рынок.