Ons kantoor is lid van Baerz & Co Luxury Homes; een internationaal platform dat exclusieve woningmakelaars met elkaar verbindt. Neem contact op met ons secretariaat voor meer informatie over het landelijke aanbod, waarvan u hieronder een selectie kunt bekijken.

DENEKAMP
Slotsdijk 5 - 7591 GN
Нидерланды

Bert Kock profile image
Bert Kock
Real Estate Agent
€875,000 k.k.
Жилая площадь
247m2
Размер участка
1205m2
Спальни
6

Описание

Zo veel ruimte op zo’n prachtige locatie in het charmante dorp Denekamp, een echte verrassing!
Deze vrijstaande woning is in 2017 volledig gerenoveerd en biedt maar liefst zes royale slaapkamers, met zelfs de mogelijkheid om er nog twee extra te realiseren. Rondom de woning ligt een prachtige, groene tuin die volop privacy en rust biedt.

En dan de locatie, dat maakt het plaatje compleet.
Binnen één minuut fietsen ben je in het bruisende centrum van Denekamp, waar je altijd de gezelligheid kunt opzoeken. Liever wat meer rust? Vanuit dit huis wandel je zó het buitengebied in en geniet je van een prachtige route langs de Dinkel. Ook de uitvalsweg richting Oldenzaal ligt op korte afstand.
Kortom: je woont hier centraal, met volop rust én alle gezelligheid binnen handbereik.

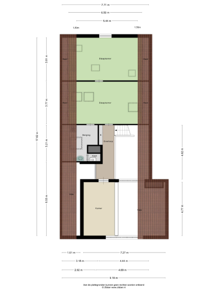
Indeling:
Begane grond: overdekte entree met toegang tot het toilet, de hal en de badkamer. Vanuit de hal bereik je de wasruimte, de berging en de eerste kamer. Deze kamer wordt momenteel gebruikt als salon en is ideaal dankzij de eigen ingang. Vanuit de hal naar de salon zit nog een extra met de toegang naar de kelder.

Via de hal kom je in de eetkamer, een lichte en uitnodigende ruimte dankzij de grote schuifpui. De eetkamer is voorzien van een houtkachel. Hier bevindt zich ook de trapopgang naar de eerste verdieping. Vanuit de eetkamer loop je door naar de woonkamer en de keuken. De woonkamer is ook voorzien van een sfeervolle houtkachel. De dichte keuken heeft een speels effect dank zij de bar aan het keukenblad. De keuken is uitgerust met diverse inbouwapparatuur, waaronder een 4-pits inductiekookplaat met afzuigkap, oven, koelkast, vaatwasser, stoomoven, warmhoudlade en een keukenboiler.

Aansluitend aan de eetkamer ligt een lange gang waaraan vier ruime slaapkamers grenzen. Twee slaapkamers zijn voorzien van een eigen wastafel, de derde slaapkamer heeft wel de aansluiting voor een wastafel. De master bedroom bevindt zich direct naast de badkamer. Deze badkamer is uitgerust met een ligbad, douchecabine, toilet, wastafel met meubel en een designradiator.

De royale achtertuin loopt volledig rondom de woning en biedt volop groen, meerdere fijne terrassen en zelfs een vijver. In de tuin staat bovendien een vrijstaande tuinkamer, welke is voorzien van een toilet. Deze ruimte is ideaal te gebruiken als kantoor, salon of hobbyruimte. De tuinkamer is in 2023 geheel gerenoveerd en geïsoleerd.

Eerste verdieping: bordes met toegang tot de vide die nu wordt gebruikt als atelier, de berging en de twee hele ruime kamers (30 m²). De berging is voorzien van een wastafel en daar zit tevens de CV-ketel. De ene kamer wordt nu gebruikt als slaapkamer en de ander als extra living. Dit kan uiteraard ook prima gebruikt worden als slaapkamer.

Bijzonderheden:
* Bouwjaar 1966
* Kaveloppervlakte 1205 m² * Woonoppervlakte 247 m²
* Ruime vrijstaande woning;
* Gelegen op een perfect locatie in Denekamp;
* Voorzien van 6 slaapkamers, met mogelijkheid tot 8 slaapkamers;
* Alle ramen vervangen in 2018;
* De schuifpui en de erker zijn in 2023 vervangen;
* Tuin geheel rondom de woning;
* Vrijstaande tuinkamer, ideaal als kantoor, salon of hobbyruimte;
* Voorzien van 10 zonnepanelen (2025);
* Bij koop is een waarborgsom/bankgarantie van 10% van de koopsom vereist!
* Interesse in deze woning? Schakel direct uw aankoopmakelaar in. Uw NVM-aankoopmakelaar komt op voor uw belang en bespaart u tijd, geld en zorgen. Adressen van collega NVM-aankoopmakelaars in Twente vindt u op Funda en op de website van nvmtwente.

Disclaimer
De informatie is door ons met de nodige zorgvuldigheid samengesteld, echter aan de inhoud hiervan kunnen geen rechten worden ontleend. Alle opgegeven maten en oppervlakten zijn indicatief, kunnen afwijken van de werkelijke situatie en zijn uitsluitend bedoeld om een indruk te geven van de indeling. Onzerzijds wordt geen enkele aansprakelijkheid aanvaard voor enige onvolledigheid, onjuistheid of anderszins, dan wel de gevolgen daarvan.

Особенности

Солнечные панели
Передача права собственности
Запрашиваемая цена
€ 875.000 k.k.
Статус
beschikbaar
Принятие
in overleg
Строительство
Тип дома
Eengezinswoning
Тип здания
vrijstaande woning
Период строительства
1966
Энергетический рейтинг
C
Тип крыши
zadeldak
Спальни
6
Ванные комнаты
1
Площадь и объем
Жилая площадь
247 m2
Другое внутреннее пространство
0 m2
Внешнее пространство, прилегающее к зданию
3 m2
Внешнее складское пространство
30 m2
Объем в кубических метрах
918 m3
Размер участка
1205 m2
Удобства
Schuifpui
Zonnepanelen
Natuurlijke ventilatie
Aan bosrand
Aan rustige weg
Vrij uitzicht
In bosrijke omgeving
Baerz & Co Property Brochure

Брошюра

Видео

Планы этажей

KockvanBenthem Makelaars

Bisschopstraat 18
7571 CZ Oldenzaal

bk@kvbm.nl
+31 541 52 20 22

www.kvbm.nl

Запрос информации / просмотра

Bert Kock profile image
Bert Kock
Real Estate Agent