Ons kantoor is lid van Baerz & Co Luxury Homes; een internationaal platform dat exclusieve woningmakelaars met elkaar verbindt. Neem contact op met ons secretariaat voor meer informatie over het landelijke aanbod, waarvan u hieronder een selectie kunt bekijken.

AMSTERDAM
Korte Ouderkerkerdijk 1 P 3 - 1096 AC
Нидерланды

Eran Hausel profile image
Eran Hausel
Real estate agent
€1,850,000 k.k.
Жилая площадь
157m2
Размер участка
2974m2
Спальни
3

Описание

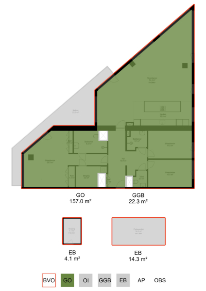
Апартаменты Amsterdam располагаются на тринадцатом этаже HAUT — самого высокого гибридного деревянного здания Нидерландов, получившего титул Лучшего здания страны в 2023 году. Эта современная резиденция предлагает около 157 м² светлого жилого пространства с тремя просторными спальнями, двумя ванными комнатами и изысканным ощущением свободы, созданным благодаря панорамным окнам от пола до потолка с захватывающим видом на город и реку Амстел.

Гостиная с выразительной треугольной планировкой и панорамным остеклением плавно переходит на просторный крытый балкон площадью 22 м², выходящий на запад и создающий спокойное открытое пространство над городом. Открытая кухня — сердце апартаментов, оборудована встроенной техникой премиум-класса: духовками Gaggenau, индукционной варочной панелью с интегрированной вытяжкой, а также винным шкафом с климат-контролем — все создано как для уединённого отдыха, так и для приема гостей. Основная спальня оснащена ванной комнатой с продуманными деталями, а вторая современная ванная и отдельный санузел обеспечивают дополнительный комфорт и приватность.

Экологичность — неотъемлемая часть концепции: присвоен энергетический класс A++, продвинутая теплоизоляция, центральное отопление и система тёплого пола во всех помещениях. В распоряжении жильцов — дополнительное внешнее кладовое помещение 4 м², крытая велопарковка и частное парковочное место с зарядной станцией в охраняемом гараже. На жильё и парковку распространяется долгосрочная аренда земли с ежегодными сборами и обслуживанием, осуществляемым профессиональным товариществом собственников жилья.

Речная набережная комплекта HAUT граничит с зелёными парками, пешеходными маршрутами вдоль воды и тщательно подобранными ресторанами и кафе. Южный район Амстердама, станция Амстел и основные транспортные артерии находятся совсем рядом, сочетая насыщенность городской жизни с возможностью уединения. Эти роскошные апартаменты на продажу в Амстердаме воплощают современную голландскую архитектуру и тщательно продуманный городской стиль жизни.

Исследуйте Amsterdam с Baerz, вашим надежным личным консультантом по недвижимости

Работа на рынке элитной недвижимости в Амстердаме невозможна без глубоких знаний локальных особенностей, деликатности и мастерства ведения переговоров. Лучшие советники обеспечивают доступ к приватным предложениям, поясняют нюансы права собственности, находят скрытую ценность там, где объекты редко выходят на широкий рынок. Команды экспертов ведут тщательную проверку активов и профессиональное представление клиента, усиливая его позиции на переговорах, обеспечивая прозрачность сделки и полную конфиденциальность.

Избегайте распространенных ошибок

Международные покупатели часто тратят драгоценное время на дублирующиеся, устаревшие или вводящие в заблуждение онлайн-объявления, особенно учитывая, что почти 30% роскошных домов никогда не появляются на открытом рынке. Агенты продавца представляют интересы продавца, а не покупателя. Даже запрос информации о недвижимости может привести к тому, что агент продавца зарегистрирует вас как своего «клиента» без вашего согласия.
С Baerz Property Finders & Advisors вы полностью избегаете всех этих ошибок. Мы работаем исключительно в ваших интересах, предлагая независимое представительство, четкое руководство и доступ ко всем доступным объектам, включая возможности вне рынка, которые другие никогда не увидят.

Интересует Личный Консультант по Недвижимости?

Мы показываем вам все доступные дома в одном месте. Не стесняйтесь связаться с нами, чтобы узнать, как мы можем удовлетворить ваши потребности и защитить ваши интересы исключительно.

Особенности

Передача права собственности
Запрашиваемая цена
€ 1.850.000 k.k.
Статус
beschikbaar
Принятие
in overleg
Строительство
Тип дома
Bovenwoning
Тип здания
appartement
Период строительства
2021
Энергетический рейтинг
A++
Тип крыши
plat dak
Спальни
3
Ванные комнаты
2
Площадь и объем
Жилая площадь
157 m2
Другое внутреннее пространство
0 m2
Внешнее пространство, прилегающее к зданию
22 m2
Внешнее складское пространство
18 m2
Объем в кубических метрах
623 m3
Размер участка
2974 m2
Удобства
Tv kabel
Balansventilatie
Aan water
Vrij uitzicht
Baerz & Co Property Brochure

Брошюра

Видео

Планы этажей

Heeren Makelaars

Stadionweg 75
1077 SE Amsterdam

info@heerenmakelaars.nl
+31 204702255

www.heerenmakelaars.nl

Запрос информации / просмотра

Eran Hausel profile image
Eran Hausel
Real estate agent

Покупка элитной недвижимости в Amsterdam

Амстердам предлагает космополитичный образ жизни, определяемый историческим наследием, связностью и утончённой роскошью. Жителей ждёт развитое международное сообщество, персонализированные сервисы и яркая культура. Главный залог привлекательности города — гармония истории, респектабельности и прогрессивных идей.