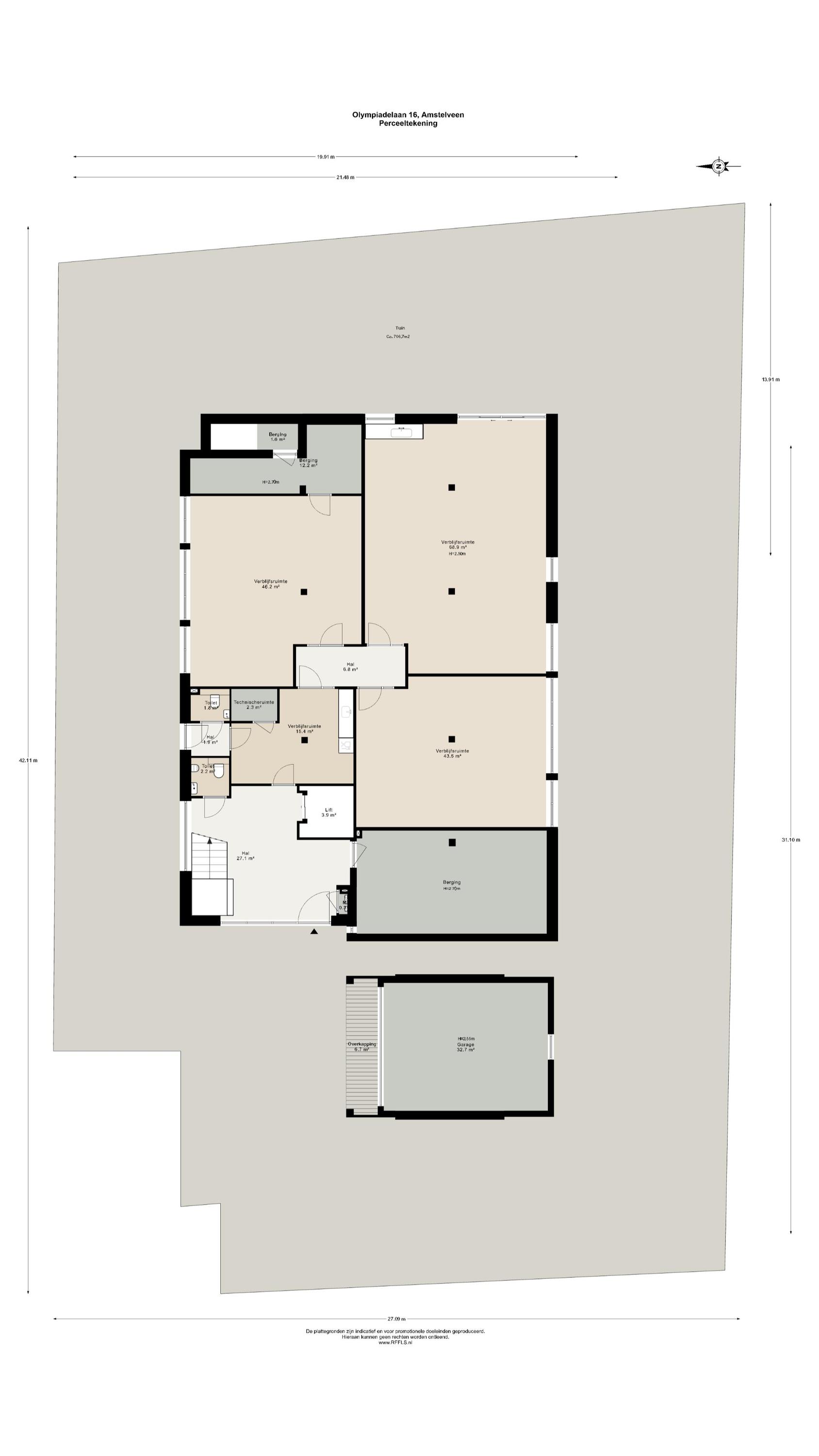
Отдельно стоящая вилла Amstelveen элегантно вписывается в архитектурный облик по адресу Olympiadelaan 16, на самой границе природного заповедника Middelpolder. Площадь резиденции составляет примерно 643 м², распределённых по нескольким уровням; здесь ощущается исключительная просторность и уединённость. Ландшафтный сад площадью около 707 м² и несколько террас создают атмосферу для созерцания или изысканных приёмов, позволяя наслаждаться панорамными видами на окружающие пейзажи каждый день.
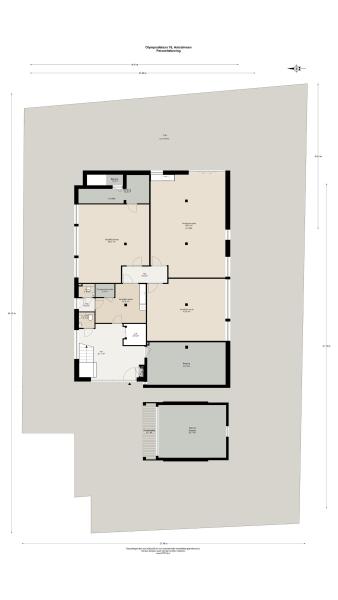
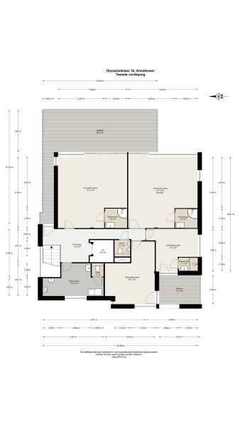
На первом этаже три просторные гостиные зоны с панорамными окнами формируют ощущение свободы. Доступность усиливается благодаря частному лифту, а продуманная организация пространства и систем хранения открывают возможности для комфортного проживания и работы. На основном этаже гостиная выходит на балкон с видом на нетронутую природу, рядом расположены кухня и большая спальня с отдельной ванной комнатой. На втором этаже четыре дополнительных помещения могут использоваться гибко; три из них оборудованы собственными ванными комнатами, что обеспечивает приватность и лёгкость приёмов гостей или смены функций. Две террасы на крыше открывают приватные виды на окрестности.
К числу удобств объекта относятся отдельно стоящий гараж площадью около 33 м² на две машины, класс энергоэффективности А, солнечные панели, современные системы вентиляции и сигнализации. Вилла уединенно расположена в востребованном районе Kostverloren, в шаговой доступности от пешеходных и велосипедных маршрутов вдоль реки Амстел и недалеко от эксклюзивных магазинов в Амстелвене и Amsterdam Zuid. Превосходное транспортное сообщение (трамвай, автобус, автомагистраль) обеспечивает быстрый доступ в центр города, аэропорт и за его пределы.
Эта элитная вилла на продажу в Амстелвене — редкая гармония природы, уединения и роскоши, всего в нескольких минутах от центра Амстердама.
Исследуйте Amstelveen вместе с Baerz — вашим надежным советником и личным поисковиком недвижимости
Эффективная работа на закрытом и конкурентном рынке Амстелвена требует расширенной экспертизы. Опытные консультанты открывают доступ к приватным продажам, тонко понимают особенности районов и умеют структурировать индивидуальные сделки. Их знания обеспечивают детальную проверку, выгодные переговоры и безупречное сопровождение международных операций, защищая интересы клиентов с большими активами.
Избегайте распространённых ошибок
Международные покупатели часто тратят ценное время на изучение дублирующихся, устаревших или вводящих в заблуждение онлайн-объявлений, особенно учитывая, что почти 30% объектов элитной недвижимости вообще не появляются на открытом рынке.
Агенты продавца представляют интересы продавца, а не ваши, и даже простой запрос о недвижимости может привести к тому, что агентство зарегистрирует вас как своего “клиента” без вашего согласия.
С Baerz Property Finders & Advisors вы полностью избегаете этих подводных камней.
Мы действуем исключительно в ваших интересах, предоставляя независимое представительство, прозрачные рекомендации и доступ ко всем доступным объектам, включая частные и вне-рыночные предложения, которых другие никогда не увидят.
Хотите узнать, как получить собственного персонального консультанта по недвижимости? Свяжитесь с нами, чтобы узнать, как мы можем представлять ваши интересы и открыть вам весь рынок.