Tweede Jan van der Heijdenstraat 82-1, 1074 XX Amsterdam
Zeer charmant, licht en open appartement (ca. 223 m²) verdeeld over drie woonlagen plus riant dakterras! Dit royale appartement is gelegen aan één van de meest prestigieuze straten van de Pijp en beschikt over hoge plafonds, een ruime woonkamer en keuken voorzien van luxe inbouwapparatuur, vier slaapkamers, twee balkons, een inloopkast én een kantoorruimte! Het dakterras (ca. 23 m²) is de ideale plek om tot in de late uren te kunnen genieten van de zon en biedt prachtig uitzicht over zowel de stad als de Amstel. Bovendien is de woning gelegen op eigen grond dus betreft geen erfpacht.
Ligging & Bereikbaarheid
De Tweede Jan van der Heijdenstraat bevindt zich midden in de levendige Pijp, een van de populairste wijken van Amsterdam. De straat ligt op steenworp afstand van het Sarphatipark en de beroemde Albert Cuypmarkt, waar u dagelijks terecht kunt voor verse producten en streetfood. In de directe omgeving zijn talloze hippe horecagelegenheden te vinden, zoals CT Coffee & Coconuts, Brouwerij Troost, Little Collins, Spaghetteria en De Japanner, waar buurtbewoners graag samenkomen voor koffie, brunch of diner. De bereikbaarheid is uitstekend: op loopafstand vindt u de Noord/Zuidlijn die een directe verbinding biedt met Centraal Station en de Zuidas, en ook diverse tram- en buslijnen doorkruisen de wijk. Met de fiets bereikt u binnen tien minuten het centrum of het Museumplein. Parkeren is vergunningsplichtig in deze zone (Zuid 3.1), maar in de omgeving zijn meerdere parkeergarages beschikbaar, zoals de Albert Cuyp garage en Q-Park Museumplein, en er zijn op straat voldoende betaalde parkeerplekken voor bezoekers.
Indeling
Eigen entree op de begane grond, een trap naar boven leidt u naar het appartement.
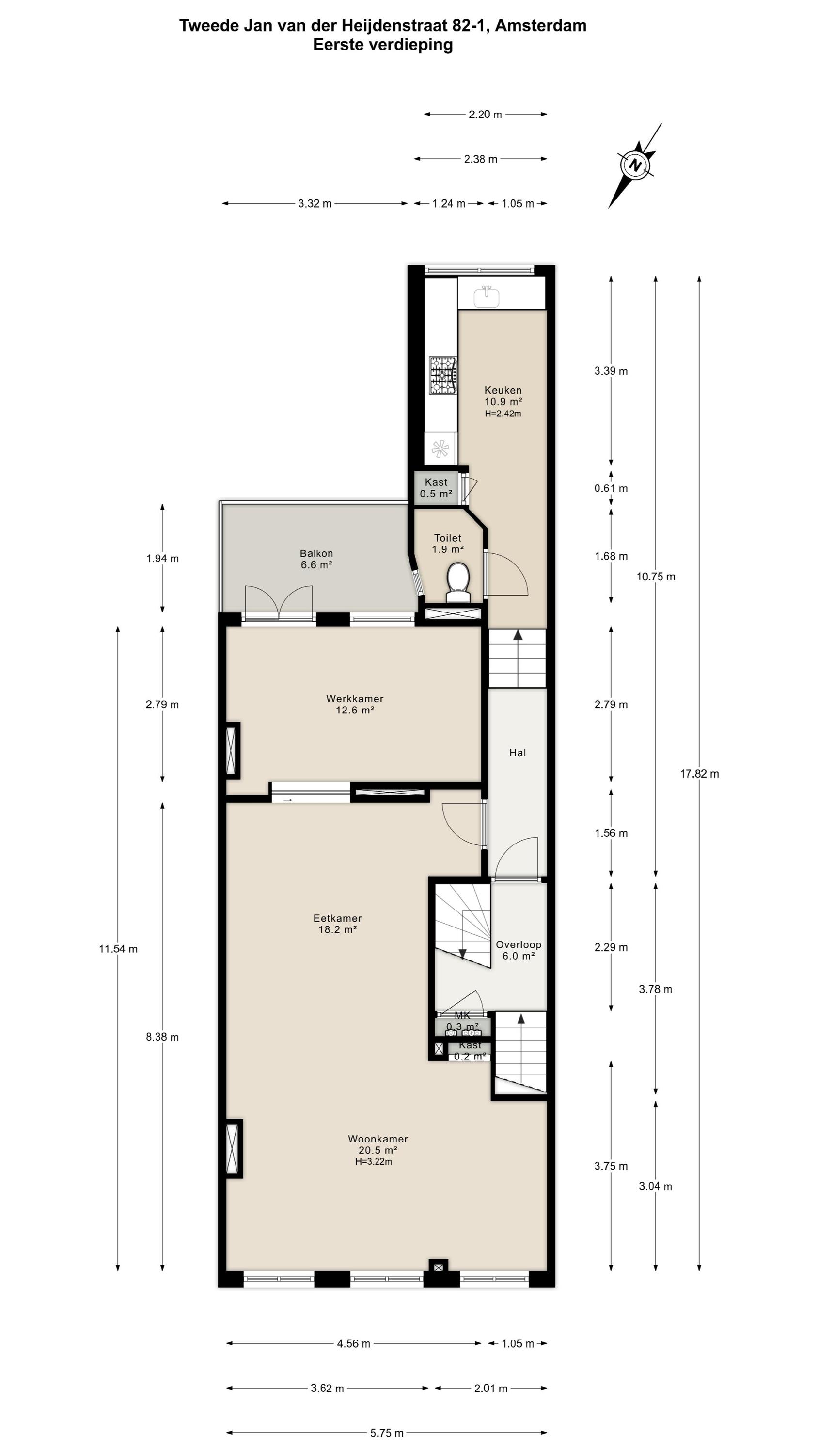
Eerste verdieping
Vanuit de uitgestrekte hal heeft u toegang tot de royale woonkamer, gelegen aan de voorzijde van het appartement. De woonkamer beschikt over hoge plafonds met fraaie details en grote raampartijen, de eerste slaapkamer bevindt zich en-suite. Middels ingebouwde schuifdeuren bereikt u vanuit de woonkamer deze slaapkamer, gelegen aan de achterzijde van de woning. Deze slaapkamer biedt tevens toegang tot het diepe balkon van circa 7 m², gelegen op het zuid oosten. De keuken bevindt zich evenals aan de achterzijde en beschikt over luxe inbouwapparatuur zoals een 5-pits gasfornuis met afzuiger en een brede oven, een koel- en vriescombinatie en een vaatwasser. Aan de gehele achterzijde van het appartement beschikt u over elektrische rolluiken. Naast de keuken treft u nog een separaat toilet met fontein en een handige berging.
Tweede verdieping
Een trap naar boven leidt u naar de overloop op de tweede verdieping. Aan de voorzijde van de tweede verdieping bevindt zich de tweede goed bemeten slaapkamer, welke is voorzien van praktische inbouwkasten en een airco-installatie. Tevens biedt deze slaapkamer toegang tot de riante inloopkast van ca. 9 m², evenals gelegen aan de voorzijde van het appartement en bereikbaar via de centrale overloop. Aan de achterzijde bevindt zich de master bedroom voorzien van openslaande deuren richting het heerlijke balkon, gelegen op het zuid oosten. Vanuit de slaapkamer treft u via de overloop de verhoogde badkamer aan de achterzijde. De badkamer beschikt over een ruim ligbad, inloopdouche, dubbele wastafel met meubel, een toilet, urinoir en aansluitingen voor wasmachine en droger. Deze verdieping beschikt aan de achterzijde tevens over elektrische rolluiken. De twee slaapkamers op deze verdieping zijn verbonden middels een centrale overloop voorzien van ruime ingebouwde kasten. Een tweede trap op deze verdieping brengt u naar de derde verdieping, tevens de bovenste verdieping van het appartement.
Derde verdieping
Via de tweede trap loopt u direct naar de woonkamer op de derde verdieping, voorzien van een kitchenette, twee ruime bergingen, airco en een extra badkamer. Deze badkamer is voorzien van een wastafel met meubel, een douche en een toilet. Aan de voorzijde van deze verdieping treft u nog een vierde goed bemeten slaapkamer, met aangrenzend een fijne kantoorruimte en voorzien van een airco-installatie. Beide vertrekken zijn te bereiken middels het centrale trappenhuis aan de rechterzijde van de woning. Vanuit de woonkamer loopt u naar boven naar het zonovergoten dakterras, waar u tot in de late uren heerlijk kunt genieten van de zon. Het dakterras heeft een oppervlakte van meer dan 23m2, uitzonderlijk in de stad!
Bijzonderheden:
- Appartementsrecht van ca. 223 m² (gemeten conform NEN2580 meetinstructie)
- Verdeeld over drie verdiepingen
- Vier goed bemeten slaapkamers
- Heerlijk dakterras (ca. 23 m²)
- Twee balkons (ca. 13 m² bij elkaar)
- Voorzien van dubbel glas
- Gelegen op eigen grond, dus géén erfpacht
- Funderingsherstel 2012
- Gezonde VvE, bestaande uit 2 leden
- MJOP aanwezig
- VvE bijdrage: € 237,48 per maand
- Oplevering in overleg
Deze informatie is door ons met de nodige zorgvuldigheid samengesteld. Onzerzijds wordt echter geen enkele aansprakelijkheid aanvaard voor enige onvolledigheid, onjuistheid of anderszins, dan wel de gevolgen daarvan. Alle opgegeven maten en oppervlakten zijn indicatief. Koper heeft zijn eigen onderzoek plicht naar alle zaken die voor hem of haar van belang zijn. Met betrekking tot deze woning is de makelaar adviseur van verkoper. Wij adviseren u een deskundige (NVM-)makelaar in te schakelen die u begeleidt bij het aankoopproces. Indien u specifieke wensen heeft omtrent de woning, adviseren wij u deze tijdig kenbaar te maken aan uw aankopend makelaar en hiernaar zelfstandig onderzoek te (laten) doen. Indien u geen deskundige vertegenwoordiger inschakelt, acht u zich volgens de wet deskundige genoeg om alle zaken die van belang zijn te kunnen overzien.