Koninginneweg 164 D, 1075 EG AMSTERDAM
Aan de geliefde Koninginneweg in Amsterdam Oud-Zuid ligt dit elegant afgewerkte appartement van 87,7 m², gelegen op de derde verdieping. De woning onderscheidt zich door een royale, open leefruimte, hoge plafonds en een rustige ligging met uitzicht over groen aan de achterzijde. Met twee slaapkamers, twee badkamers en een overdekt balkon is dit een verfijnde en comfortabele woonplek in de directe nabijheid van het Vondelpark en het Museumkwartier.
Bereikbaarheid & ligging
De woning is gelegen in het prestigieuze Amsterdam Oud-Zuid, aan de prachtige Koninginneweg. Deze groene en brede straat is recent volledig gerenoveerd, waarbij zowel de inrichting als de verkeersveiligheid aanzienlijk zijn verbeterd. Voor exclusief winkelen kunt u terecht in de Cornelis Schuytstraat, de Van Baerlestraat en de P.C. Hooftstraat, die zich op loopafstand bevinden in het chique Museumkwartier. Voor de dagelijkse boodschappen vindt u diverse winkels aan de nabijgelegen Amstelveenseweg en Stadionweg, evenals verschillende speciaalzaken. In de directe omgeving van de woning liggen bovendien scholen, kinderopvang en sportfaciliteiten, evenals culturele en uitgaansgelegenheden. Het Vondelpark ligt op slechts enkele minuten loopafstand. De woning is uitstekend bereikbaar per openbaar vervoer, met diverse tram- en bushaltes om de hoek. De ringweg A10 bevindt zich op slechts 5 minuten afstand. Parkeren geschiedt via het vergunningensysteem.
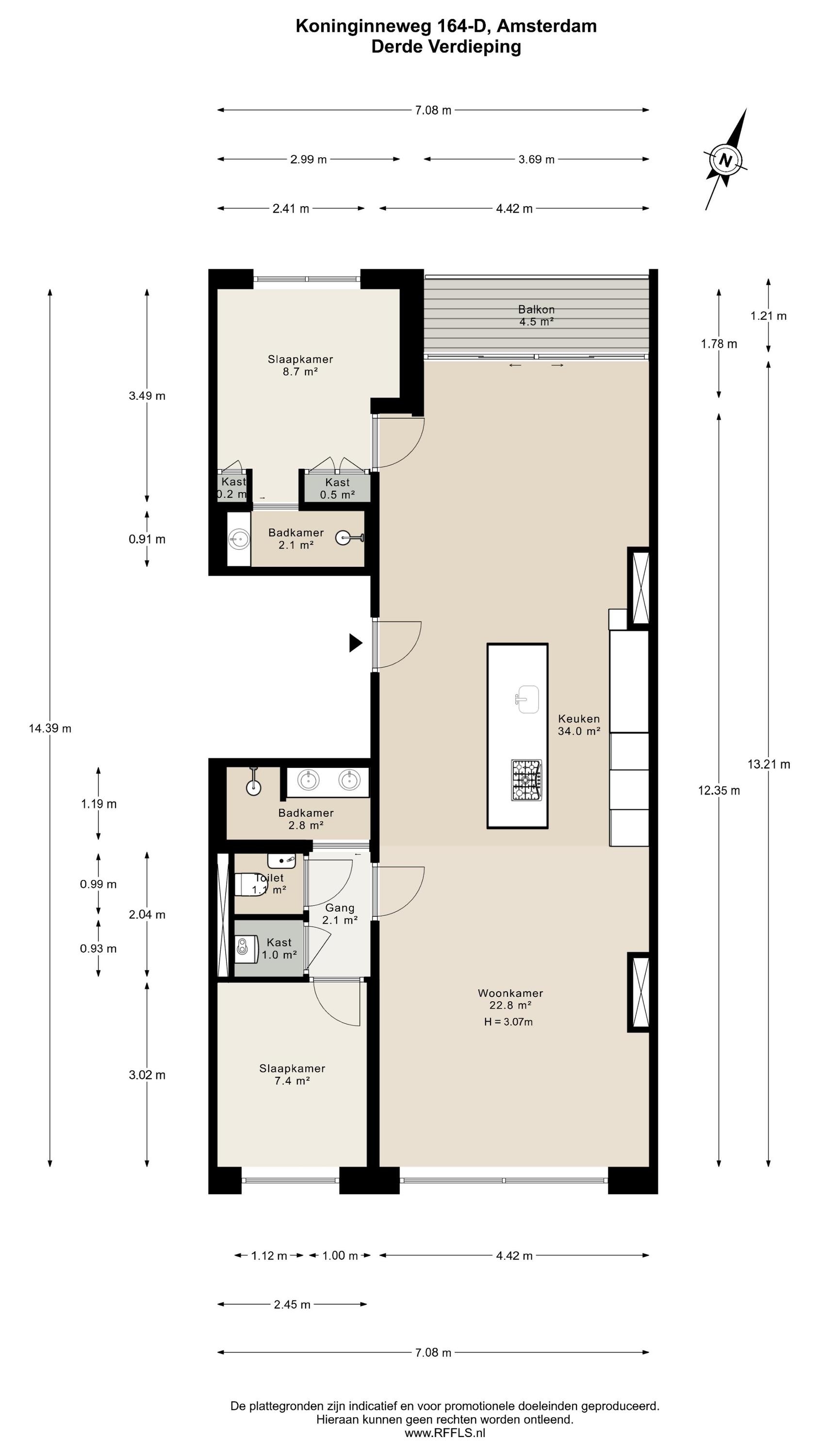
Indeling
Dit luxe appartement is gelegen op de derde verdieping en wordt gekenmerkt door een ruime en open indeling, met grote raampartijen aan zowel de voor- als achterzijde die zorgen voor een prettige lichtinval. De woning is hoogwaardig afgewerkt en biedt een comfortabele woonomgeving met een rustige, verfijnde uitstraling. De woonkamer is gesitueerd aan de voorzijde van het appartement en beschikt over een plafondhoogte van circa 3,07 meter. De woonruimte vormt samen met de keuken en eetkamer één grote, open leefruimte. De luxe keuken is centraal in de woning gelegen en uitgevoerd met een royaal spoel- en kookeiland, voorzien van een inductiekookplaat, spoelbak en Quooker. Daarnaast beschikt de keuken over een koelkast, vriezer, combi-oven, klimaatkast en voldoende kastruimte. Het kookeiland fungeert tevens als comfortabele bar. Aan de achterzijde van het appartement bevindt zich het overdekte balkon, dat een fraai uitzicht biedt over de groene tuinen aan de achterzijde en een rustige plek vormt om buiten te zitten. Aan de voorzijde van de woning bevindt zich de gang, vanwaar toegang is tot de eerste slaapkamer, het separate toilet, de wasruimte/berging en de eerste badkamer. Deze badkamer is uitgerust met een inloopdouche en een dubbele wastafel met meubel. De tweede slaapkamer is gelegen aan de achterzijde van het appartement en beschikt over vaste kastruimte en een ensuite badkamer, voorzien van een inloopdouche en een wastafel met meubel.
Een luxe en goed doordacht appartement met een open leefruimte, hoogwaardige afwerking en een rustig gelegen balkon met uitzicht over groen.
Bijzonderheden
- Gebruiksoppervlakte woning 87.7 m² (gemeten conform NEN2580 meetinstructie)
- Twee slaapkamers;
- Twee badkamers;
- Hoge plafonds;
- Energielabel A;
- Vloerverwarming door de gehele woning aanwezig;
- Kleine VvE in eigen beheer;
- Servicekosten: € 75 per maand
- Gelegen op eigen grond, GEEN erfpacht;
- Oplevering in overleg.
Deze informatie is door ons met de nodige zorgvuldigheid samengesteld. Onzerzijds wordt echter geen enkele aansprakelijkheid aanvaard voor enige onvolledigheid, onjuistheid of anderszins, dan wel de gevolgen daarvan. Alle opgegeven maten en oppervlakten zijn indicatief. Koper heeft zijn eigen onderzoek plicht naar alle zaken die voor hem of haar van belang zijn. Met betrekking tot deze woning is de makelaar adviseur van verkoper. Wij adviseren u een deskundige (NVM-)makelaar in te schakelen die u begeleidt bij het aankoopproces. Indien u specifieke wensen heeft omtrent de woning, adviseren wij u deze tijdig kenbaar te maken aan uw aankopend makelaar en hiernaar zelfstandig onderzoek te (laten) doen. Indien u geen deskundige vertegenwoordiger inschakelt, acht u zich volgens de wet deskundige genoeg om alle zaken die van belang zijn te kunnen overzien.