Ons kantoor is lid van Baerz & Co Luxury Homes; een internationaal platform dat exclusieve woningmakelaars met elkaar verbindt. Neem contact op met ons secretariaat voor meer informatie over het landelijke aanbod, waarvan u hieronder een selectie kunt bekijken.

BERGSCHENHOEK
Oltmansstraat 17 - 2662 AA
Les Pays-Bas

Dominique Blom profile image
Dominique Blom
Register Makelaar Taxateur
€998,000 k.k.
Surface habitable
174m2
Superficie du terrain
635m2
Chambres
4

Description

Cette maison mitoyenne à Bergschenhoek offre un équilibre subtil entre volumes et lumière, proposant 174 m² d’espaces de vie soigneusement aménagés. Le jardin exposé à l’ouest, baigné de soleil et bordé par un cours d’eau, confère à la propriété une agréable quiétude et une intimité rare dans un contexte familial. La maison bénéficie d’un emplacement paisible au sein d'une impasse résidentielle propice aux familles, tout en restant à proximité du centre animé de Bergschenhoek.

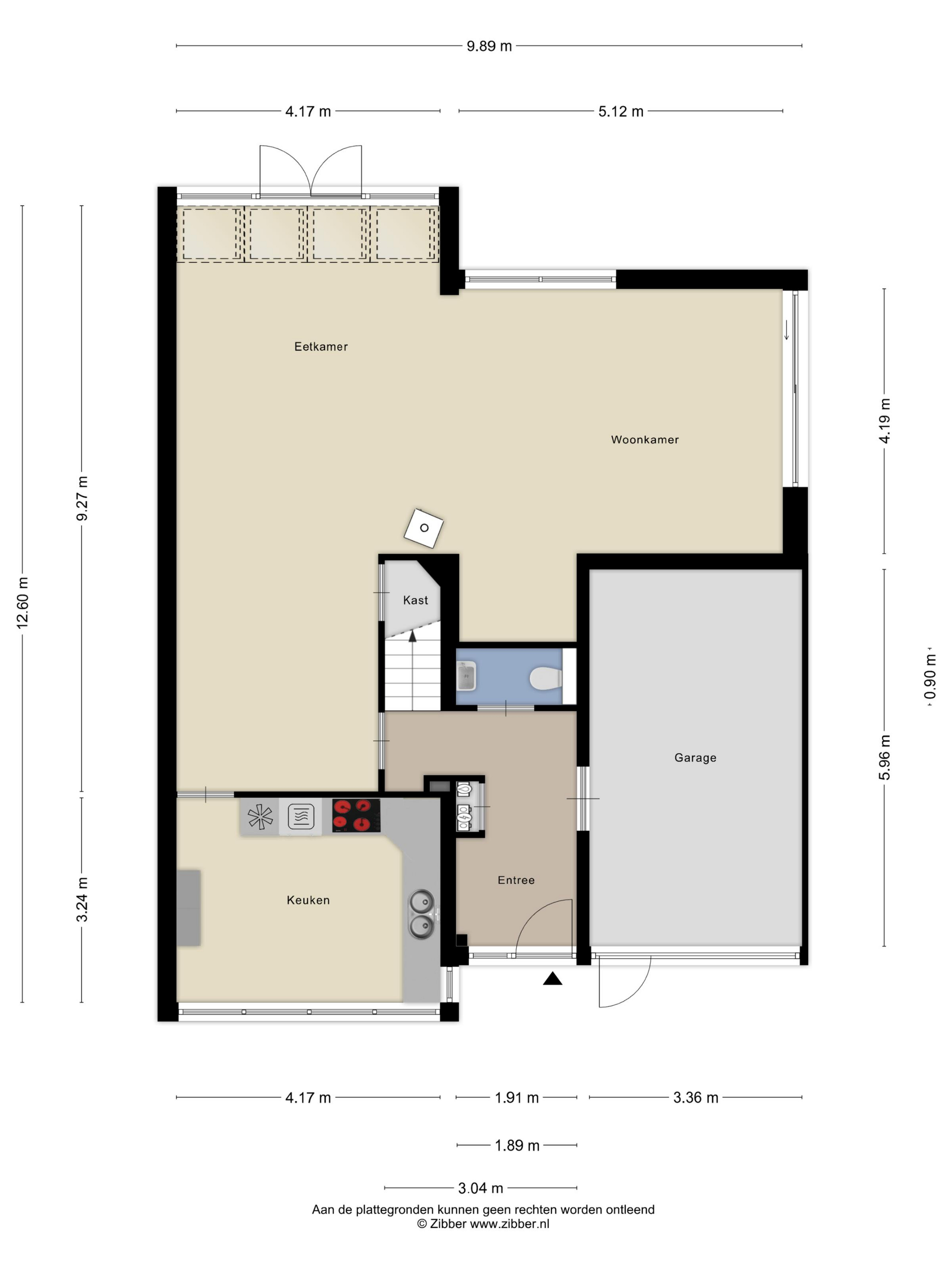
Dès l’entrée, un hall carrelé mène à un vaste séjour où le chauffage au sol et les portes-fenêtres invitent à la détente dans une atmosphère lumineuse et sereine. La cuisine en L, récemment rénovée, dispose d’électroménagers intégrés et d’un double évier, alliant ainsi fonctionnalité et raffinement. L’accès direct à la terrasse extérieure assure une continuité harmonieuse avec le jardin privé.

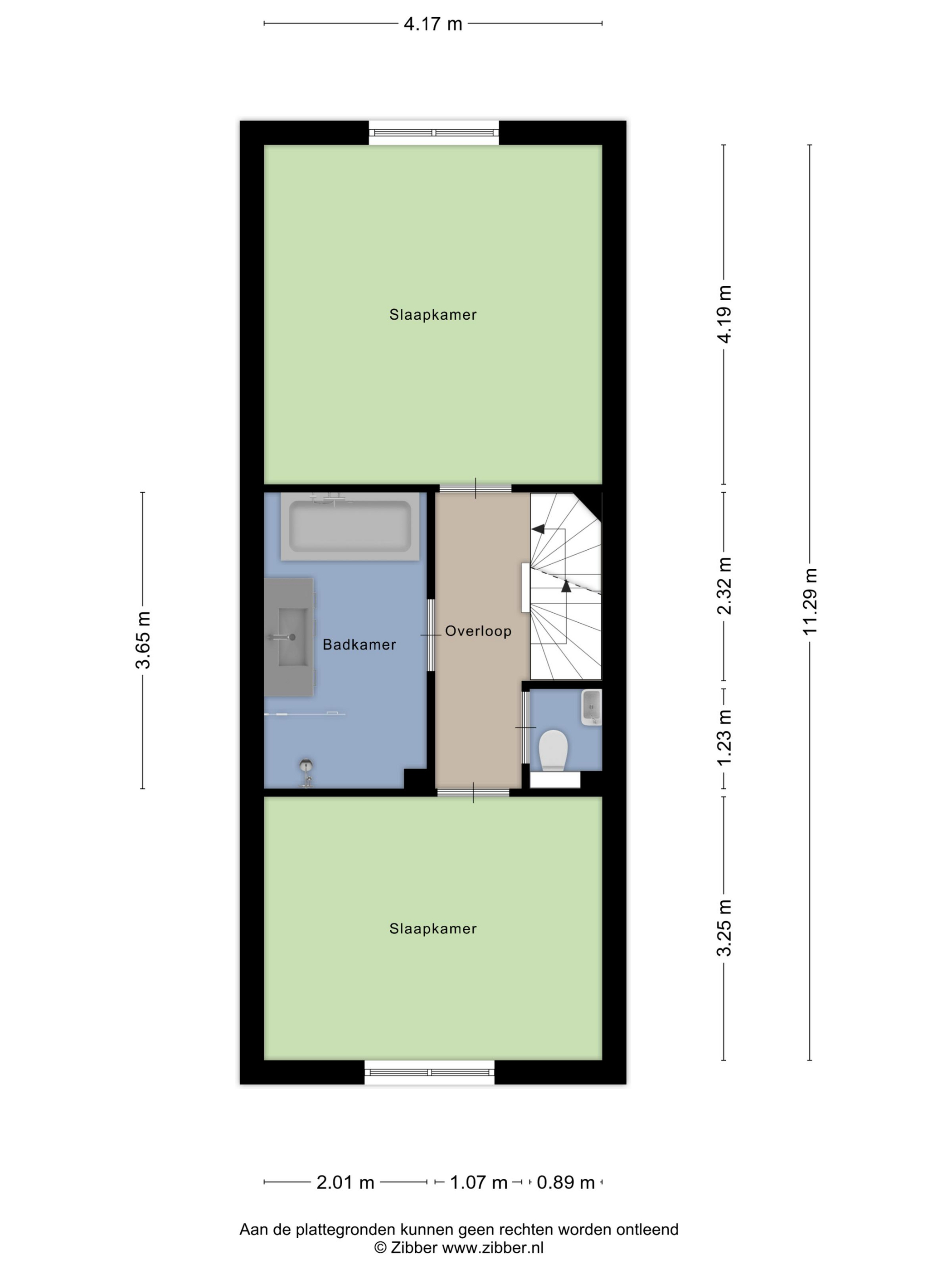
Quatre chambres, toutes dotées d’un balcon à la française, offrent des espaces polyvalents pour la famille ou les invités. La salle de bains moderne se distingue par une baignoire, une douche à l’italienne, le chauffage au sol et des finitions choisies avec soin. Au deuxième étage, rangements et buanderie sont organisés de façon optimale, tandis que des détails tels que volets motorisés et protections solaires extérieures témoignent du souci du confort. Sur une parcelle de 635 m², on bénéficie d’une allée privée pour trois voitures et d’un garage attenant. Écoles, parcs et transports en commun sont facilement accessibles, facilitant un quotidien fluide et connecté. Pour ceux qui recherchent une maison mitoyenne à vendre à Bergschenhoek, cette propriété incarne une adresse discrète et accueillante.

Découvrez Bergschenhoek avec Baerz, votre conseiller et chasseur immobilier personnel de confiance



Évitez les pièges courants

Les acheteurs internationaux perdent souvent un temps précieux à naviguer entre des annonces en ligne dupliquées, obsolètes ou trompeuses, d’autant que près de 30% des propriétés de luxe ne sont jamais mises sur le marché.
Les agents du vendeur représentent les intérêts du vendeur, pas les vôtres, et une simple demande d’information peut entraîner votre inscription comme “client” auprès d’une agence sans votre consentement.
Avec Baerz Property Finders & Advisors, vous évitez totalement ces écueils.
Nous agissons exclusivement en votre nom, en vous offrant une représentation indépendante, des conseils transparents et un accès à toutes les propriétés disponibles, y compris les opportunités privées et off-market que les autres ne voient jamais.

Curieux de savoir comment obtenir votre propre Conseiller Immobilier Personnel ? Contactez-nous pour découvrir comment nous pouvons défendre vos intérêts et vous ouvrir l’accès à l’ensemble du marché.

Caractéristiques

Transfert de propriété
Prix demandé
€ 998.000 k.k.
Statut
beschikbaar
Acceptation
in overleg
Construction
Type de maison
Eengezinswoning
Type de bâtiment
geschakelde woning
Période de construction
2001
Classe énergétique
A
Type de toit
lessenaardak
Chambres
4
Salles de bains
1
Surfaces et volumes
Surface habitable
174 m2
Autre espace intérieur
20 m2
Espace de stockage externe
2 m2
Volume en mètres cubes
685 m3
Superficie du terrain
635 m2
Équipements
Mechanische ventilatie
Rolluiken
Buitenzonwering
Frans balkon
Glasvezel kabel
Aan water
In woonwijk
Beschutte ligging
Baerz & Co Property Brochure

Brochure

Vidéos

DB Makelaars

Dorpsstraat 79
2661 CE Bergschenhoek

dominique@dbmakelaars.nl
+31 107850833

www.dbmakelaars.nl

Demande d'information / de visite

Dominique Blom profile image
Dominique Blom
Register Makelaar Taxateur