Ons kantoor is lid van Baerz & Co Luxury Homes; een internationaal platform dat exclusieve woningmakelaars met elkaar verbindt. Neem contact op met ons secretariaat voor meer informatie over het landelijke aanbod, waarvan u hieronder een selectie kunt bekijken.

AMSTERDAM
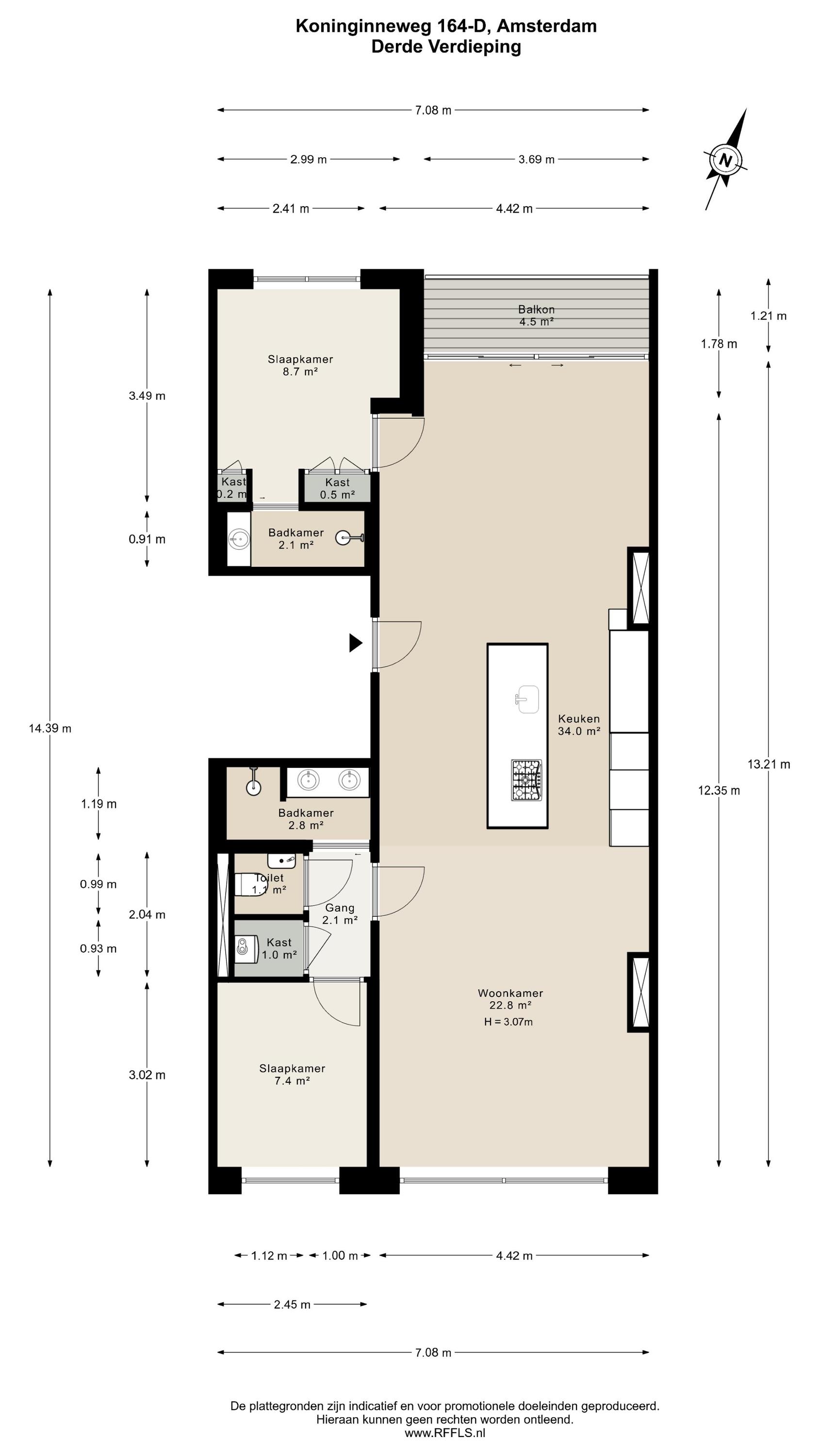
Koninginneweg 164 D - 1075 EG
Les Pays-Bas

Eran Hausel profile image
Eran Hausel
Real estate agent
€1,050,000 k.k.
Surface habitable
88m2
Superficie du terrain
N/A
Chambres
2

Description

L’appartement Amsterdam Oud-Zuid incarne un équilibre réfléchi entre proportions classiques et confort raffiné. Située sur la prestigieuse Koninginneweg, cette résidence au troisième étage offre 88 m² d’espaces de vie élégamment aménagés. Ce bien vous place au cœur culturel d’Amsterdam, à deux pas du Vondelpark et du Quartier des Musées, avec des boutiques exclusives et toutes les commodités du quotidien à portée de main.

L’espace de vie ouvert se distingue par une lumière naturelle généreuse, grâce aux grandes fenêtres en façade et à l’arrière, soulignée par une hauteur sous plafond d’environ 3,07 mètres. La cuisine haut de gamme constitue le cœur convivial de l’appartement, avec un îlot spacieux doté de plaques à induction, d’un robinet Quooker, d’électroménagers intégrés et d’un espace bar propice aux conversations détendues. Deux chambres et deux salles de bains offrent intimité et confort ; la suite principale dispose d’armoires encastrées et d’une salle d’eau privative avec douche à l’italienne. La seconde salle de bains a été pensée pour accueillir famille et invités.

Un balcon couvert surplombant les jardins verdoyants invite à la quiétude, offrant une parenthèse loin du rythme citadin. Le chauffage au sol, une isolation avancée et un label énergétique A témoignent d’un engagement envers confort et efficacité. Cet appartement associe luxe discret et fonctionnalité au quotidien, bénéficiant d’une petite copropriété bien gérée (VvE) et d’une pleine propriété. Un accès direct aux plus belles boutiques, établissements culturels et espaces verts d’Amsterdam parachève un cadre de vie cosmopolite.

Découvrez Amsterdam avec Baerz, votre conseiller et chasseur immobilier personnel de confiance

Pour naviguer le marché de prestige d’Amsterdam, il faut s’appuyer sur une connaissance pointue de la ville, la discrétion et des compétences avérées en négociation. Les meilleurs conseillers accèdent à des biens confidentiels, expliquent les subtilités réglementaires et identifient la valeur où l’opportunité ne se montre que rarement. Les équipes conseil opèrent une sélection poussée et assurent la représentation, renforçant votre position, assurant le bon déroulé de la transaction et veillant au respect de votre vie privée à chaque étape.

Évitez les pièges courants

Les acheteurs internationaux perdent souvent un temps précieux à naviguer entre des annonces en ligne dupliquées, obsolètes ou trompeuses, d’autant que près de 30% des propriétés de luxe ne sont jamais mises sur le marché.
Les agents du vendeur représentent les intérêts du vendeur, pas les vôtres, et une simple demande d’information peut entraîner votre inscription comme “client” auprès d’une agence sans votre consentement.
Avec Baerz Property Finders & Advisors, vous évitez totalement ces écueils.
Nous agissons exclusivement en votre nom, en vous offrant une représentation indépendante, des conseils transparents et un accès à toutes les propriétés disponibles, y compris les opportunités privées et off-market que les autres ne voient jamais.

Curieux de savoir comment obtenir votre propre Conseiller Immobilier Personnel ? Contactez-nous pour découvrir comment nous pouvons défendre vos intérêts et vous ouvrir l’accès à l’ensemble du marché.

Caractéristiques

Transfert de propriété
Prix demandé
€ 1.050.000 k.k.
Statut
beschikbaar
Acceptation
in overleg
Construction
Type de maison
Tussenverdieping
Type de bâtiment
appartement
Période de construction
1913
Classe énergétique
A
Type de toit
plat dak
Chambres
2
Salles de bains
2
Surfaces et volumes
Surface habitable
88 m2
Autre espace intérieur
0 m2
Espace extérieur attenant au bâtiment
5 m2
Volume en mètres cubes
335 m3
Équipements
Mechanische ventilatie
Tv kabel
In centrum
In woonwijk
Baerz & Co Property Brochure

Brochure

Vidéos

Heeren Makelaars

Stadionweg 75
1077 SE Amsterdam

info@heerenmakelaars.nl
+31 204702255

www.heerenmakelaars.nl

Demande d'information / de visite

Eran Hausel profile image
Eran Hausel
Real estate agent