Ons kantoor is lid van Baerz & Co Luxury Homes; een internationaal platform dat exclusieve woningmakelaars met elkaar verbindt. Neem contact op met ons secretariaat voor meer informatie over het landelijke aanbod, waarvan u hieronder een selectie kunt bekijken.

LISSE
Heereweg 304 - 2161 BV
Países Bajos

Miranda van der Wagt-Waasdorp profile image
Miranda van der Wagt-Waasdorp
Real estate agent
€1,695,000 k.k.
Área de estar
321m2
Tamaño del terreno
610m2
Dormitorios
4

Descripción

La Townhouse Lisse es un monumento municipal que ofrece 321 m² de sofisticado espacio habitable sobre una parcela de 610 m² en el corazón del pueblo. Esta elegante propiedad independiente ha sido renovada de forma integral respetando su carácter, conservando detalles originales e incorporando los más altos estándares de confort contemporáneo.

Al acceder, una impactante puerta principal alta se abre a un largo vestíbulo con un suelo original de granito, que conduce a una amplia cocina-comedor. En este espacio, un diseño a medida en blanco mate con barra de desayuno de madera, electrodomésticos integrados y vinoteca da vida al corazón de la casa, realzado por una chimenea de gas y puertas francesas que se abren al soleado jardín. A continuación, un salón formal y una estancia flexible en la planta superior, ideal como despacho o sala de juegos, completan la experiencia en planta baja. Un estudio exquisitamente realizado, la bodega original restaurada y un gran garaje interior aportan valor a la funcionalidad diaria.

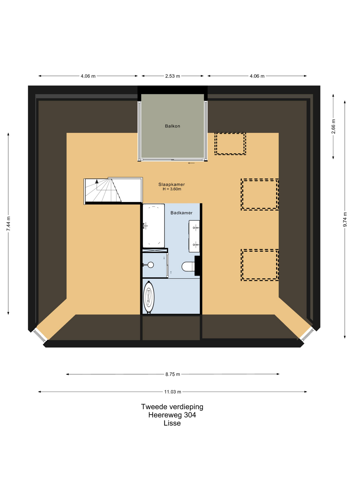
En la primera planta se encuentran tres dormitorios generosos, un baño de lujo con ducha a ras de suelo, bañera exenta y doble lavabo, junto con un espacio versátil para lavandería o trabajo. Todo el piso superior se ha concebido como una serena suite principal, con logia orientada al oeste, vestidor y un segundo baño privado.

Rodeando la vivienda, una cerca de hierro forjado, hayas maduras y un paisajismo estructurado proporcionan privacidad y tranquilidad. Entre las medidas de sostenibilidad se incluyen aislamiento de muros y cubierta, acristalamiento aislante, 32 paneles solares y dos calderas de alto rendimiento. Un sistema de alarma, focos empotrados, muebles a medida en todas las estancias y suelos de roble finamente acabados reflejan una reforma esmerada, que culmina en una vivienda en Lisse que armoniza el legado histórico con la vida sofisticada.

Explora Lisse con Baerz, tu asesor y buscador personal de propiedades de confianza

El mercado exclusivo de Lisse se caracteriza por la escasez y relaciones matizadas entre compradores y vendedores. Los asesores personales aportan valor fundamental: abren el acceso a propiedades fuera de mercado y gestionan negociaciones discretas. Sus conocimientos aseguran privacidad, calidad y plazos adecuados, además de proteger intereses mediante due diligence rigurosa y contratos a medida.

Evite errores comunes

Los compradores internacionales a menudo desperdician tiempo valioso navegando por anuncios duplicados, desactualizados o engañosos, especialmente porque casi el 30% de las propiedades de lujo nunca aparecen en el mercado.
Los agentes del vendedor representan los intereses del vendedor, no los suyos, y simplemente solicitar información sobre una propiedad puede hacer que las agencias lo registren como su “cliente” sin su consentimiento.
Con Baerz Property Finders & Advisors, evita completamente estos problemas.
Actuamos únicamente en su nombre, ofreciendo representación independiente, orientación transparente y acceso a todas las propiedades disponibles, incluidas oportunidades privadas y fuera de mercado que otros nunca ven.

¿Le gustaría saber cómo asegurar su propio Asesor Personal de Propiedades? Contáctenos para descubrir cómo podemos representar sus intereses y abrirle el mercado completo.

Características

Paneles solares
Alarm system
Transferencia de propiedad
Precio de Venta
€ 1.695.000 k.k.
Estado
beschikbaar
Aceptación
in overleg
Construcción
Tipo de casa
Herenhuis
Tipo de edificio
vrijstaande woning
Período de construcción
1898
Calificación energética
C
Dormitorios
4
Baños
2
Superficies y Volumen
Área de estar
321 m2
Otro espacio interior
62 m2
Espacio exterior adjunto al edificio
9 m2
Volumen en metros cúbicos
1349 m3
Tamaño del terreno
610 m2
Instalaciones
Mechanische ventilatie
Alarminstallatie
Zonnepanelen
In centrum
Baerz & Co Property Brochure

Folleto

Vídeos

Wilbrink & v.d. Vlugt Makelaars

Heereweg 231
2161 BG Lisse

info@wilbrinkvandervlugt.nl
+31 252 41 90 49

www.onsaanbod.nl

Solicitud de información / Visita

Miranda van der Wagt-Waasdorp profile image
Miranda van der Wagt-Waasdorp
Real estate agent