Baerz & Co is een landelijk samenwerkingsverband van zorgvuldig geselecteerde boutique luxury makelaars. Samen vormen wij één netwerk, met één gedeeld aanbod. De woningen die u op onze website ziet, zijn afkomstig van alle aangesloten kantoren binnen Baerz & Co. Daardoor is niet ieder object rechtstreeks door ons kantoor in verkoop, maar door een gespecialiseerde collega binnen ons netwerk. Heeft u een woning gevonden die u aanspreekt en wilt u meer informatie? Dan brengen wij u graag persoonlijk in contact met de betreffende verkoopmakelaar, zodat u direct en zorgvuldig wordt begeleid.

ZALTBOMMEL
Steenweg 39 - 5301 HJ
Netherlands

€1,299,000
Living Area
220m2
Plot Size
860m2
Bedrooms
6

Description

Near the historic centre of Zaltbommel stands this luxurious, pre-war detached villa, offering six bedrooms, two bathrooms and a multifunctional outbuilding, all set within a sun-drenched garden with a swimming pool.

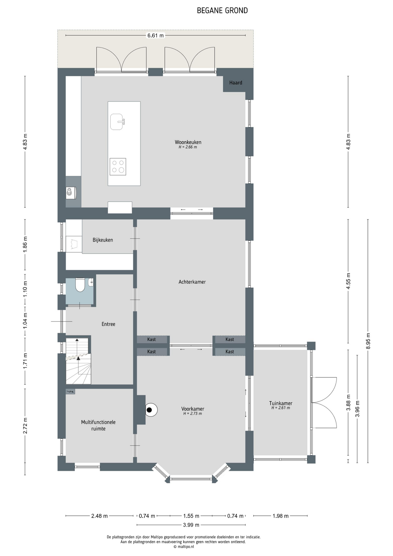
The ground floor comprises an entrance hall with toilet, a bright living room en suite with conservatory, a music/study room, utility room, wine cellar and a garden-facing kitchen-diner with fitted kitchen and gas fireplace.
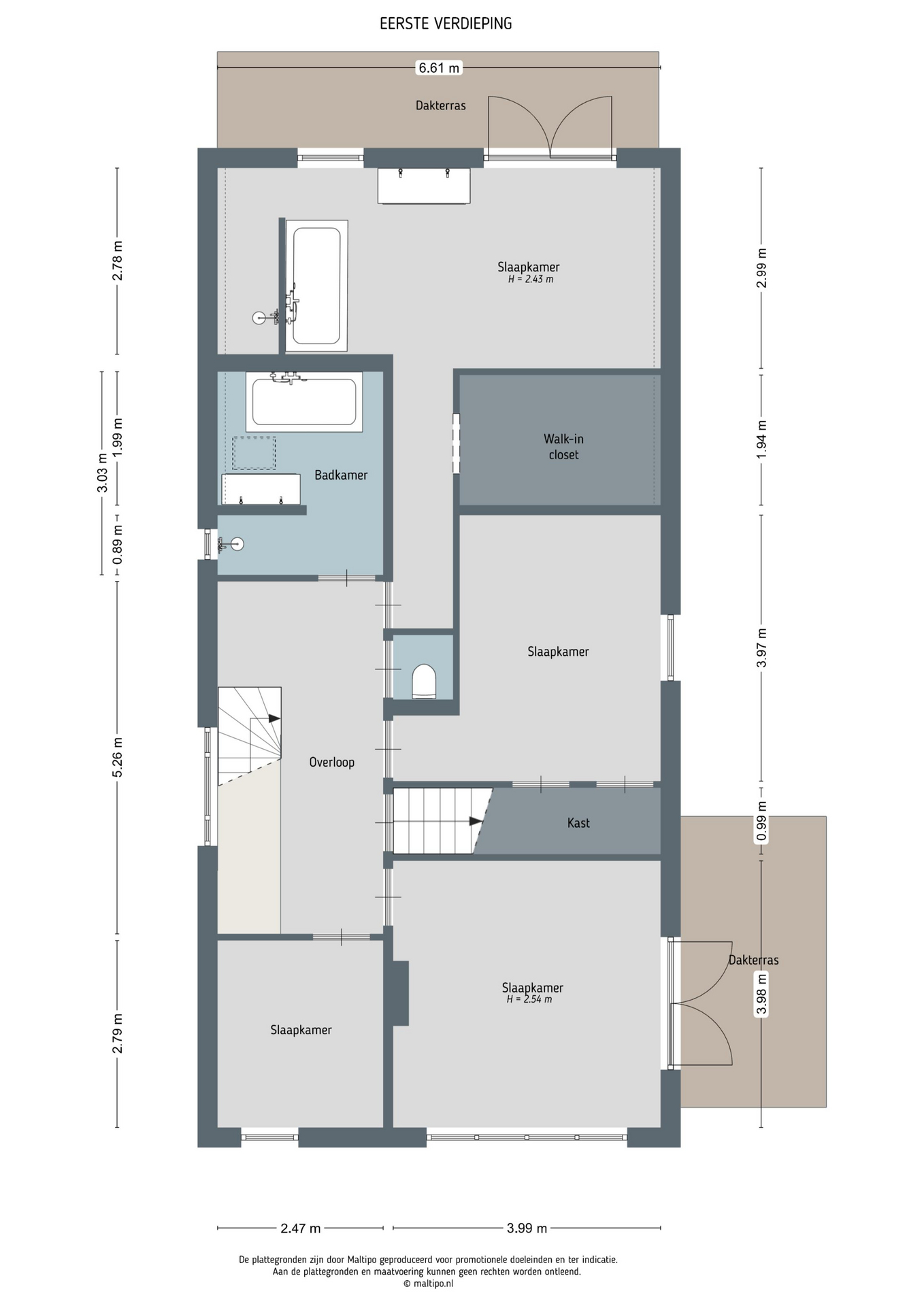
The first floor features a landing with toilet, four bedrooms, two bathrooms and a walk-in closet.
On the second floor there are two further bedrooms beneath the insulated roof.

Gross volume: 795 m³
Living area: 220 m²
Plot size: 860 m²
Year of construction: 1929

Layout ground floor:
The side entrance is accessed via the wide driveway. The entrance hall provides access to the living room en suite, the cloakroom and the wine cellar. The terrazzo floor, staircase and beautifully preserved panelled doors with traditional ironmongery are fine examples of the original pre-war craftsmanship.

The living room en suite is wonderfully bright, with windows facing south at both the front and rear. The front room features a fireplace with wood-burning stove, a high plastered ceiling with decorative mouldings and a bay window with stained-glass transoms. From here there is access to the music/study and the enclosed conservatory. In the conservatory, double doors open onto the side garden, where the stained-glass transoms have also been retained.

Double en suite doors with stained glass, flanked by built-in cupboards, lead to the rear room, which connects directly to the kitchen-diner. This kitchen-diner is located in the extension completed in 2021/2022 and is fully oriented towards the garden. It forms the heart of the home, with views of the garden and direct access outside.

The kitchen is finished to a high standard, featuring a wide wall of cabinetry with premium built-in appliances and a large island with a Dekton worktop. On the dining side, the island incorporates a breakfast bar near the coffee corner. Adjacent to the gas fireplace there is space for a large dining table. Two sets of French doors provide an abundance of natural light and direct access to the full-width terrace and garden.

The practical utility room is accessible from the rear room and is equipped with an additional dishwasher, refrigerator and connections for a washing machine. The kitchen-diner is finished with a herringbone PVC floor with underfloor heating; the living room, music room and conservatory feature natural stone flooring, also with underfloor heating.

Layout first floor:
The landing reflects the care and attention given to the renovation. The new extension blends seamlessly with the original architecture. There is also a separate toilet on this level. In the rear extension is a bedroom with balcony, a luxurious open bathroom and a walk-in closet. The bathroom is fitted with a semi-freestanding bathtub, a spacious walk-in shower with rainfall shower and a stylish vanity unit. The wall behind the vanity is finished with hexagonal mosaic tiles, while the shower and bath areas feature concrete ciré finishes. Thanks to its east-facing position, the morning sun enters here, and the balcony is directly accessible from the bedroom.

The original main house comprises a total of five bedrooms, three of which are located on this floor. Two are currently used as bedrooms and one as a study. One of the bedrooms provides access to the balcony above the conservatory. These rooms share a second fully fitted bathroom with bathtub, shower cabin with rainfall shower and a double vanity unit. A large roof window provides pleasant natural light. The entire floor is finished with a herringbone PVC floor.

Layout second floor:
This floor offers two additional bedrooms, both located beneath the insulated roof and finished with smooth plasterwork. The front bedroom features a wide dormer window, while the rear bedroom is fitted with two roof windows. The floor is finished with PVC.

Outbuilding:
The fully insulated outbuilding (2016) is equipped with connections for gas, water, electricity and drainage. The ground floor consists of an open space suitable for parking multiple vehicles or use as a workshop, enhanced by its generous ceiling height.
The outbuilding is therefore highly suitable for use as a studio, workspace or guest accommodation. The upper floor is accessed via a fixed staircase and offers a pleasant, light workspace beneath the roof, which can be heated electrically.

Particulars:
This striking white villa, named Vinkenburg, was built in 1929 to a design by municipal architect De Groot. Characteristic features from the period have been carefully preserved, including the wide overhangs, bay window, conservatory, stained-glass transoms and panelled doors with traditional ironmongery.
The electrical installation has been completely renewed, incorporating retro-style switches combined with Philips Hue lighting. Twelve solar panels have been installed on the flat roof, and the main roof was fully renovated in 2024, including new battens and tiles. The zinc work had already been renewed the year before.
The property is heated by a gas-fired central heating system with a Nefit HR boiler from 2022. In addition, the main bedroom is equipped with air conditioning.
Adjacent to the terrace is the swimming pool, a beautifully constructed composite pool heated via a heat pump system located in the outbuilding. The garden adjoining the terrace is laid out as a lawn.

For those seeking a spacious and characterful family home in a distinctive location within walking distance of the centre of Zaltbommel, this villa offers an exceptionally complete package.

Features

Swimming pool
Solar panels
Air conditioning
Transfer of ownership
Asking Price
€ 1.299.000
Status
beschikbaar
Acceptance
in overleg
Construction
Kind of house
Villa
Building type
vrijstaande woning
Construction period
1929
Energy rating
C
Roof type
samengesteld dak
Bedrooms
6
Bathrooms
2
Surface Areas And Volume
Living Area
220 m2
Other indoor space
10 m2
Exterior space attached to the buildinge
29 m2
External storage space
80 m2
Volume in cubic meters
795 m3
Plot Size
860 m2
Facilities
Zwembad
Airconditioning
Rookkanaal
Dakraam
Glasvezel kabel
Domotica
Zonnepanelen
Buiten bebouwde kom
Baerz & Co Property Brochure

Brochure

Videos

360 Panoramas

360°
360 Panorama - Steenweg 39
360°
360 Panorama - Steenweg 39
360°
360 Panorama - Steenweg 39
360°
360 Panorama - Steenweg 39
360°
360 Panorama - Steenweg 39
360°
360 Panorama - Steenweg 39
360°
360 Panorama - Steenweg 39
360°
360 Panorama - Steenweg 39
360°
360 Panorama - Steenweg 39

Floor Plans

Beeuwkes Makelaardij

Van Alkemadelaan 338
2597 AS Den Haag

info@beeuwkes.nl
+31 703143000

www.beeuwkes.nl

Information / Viewing request

Sjoerd Bouma profile image
Sjoerd Bouma
Real Estate Agent

Buying a Luxury Property in Zaltbommel

Zaltbommel provides an exclusive community, enriched by heritage, natural beauty, and refined amenities. Residents benefit from a timeless lifestyle, discreet services, and a secure yet inviting atmosphere, all positioned to attract a global clientele seeking authenticity and tranquility.