Ons kantoor is lid van Baerz & Co Luxury Homes; een internationaal platform dat exclusieve woningmakelaars met elkaar verbindt. Neem contact op met ons secretariaat voor meer informatie over het landelijke aanbod, waarvan u hieronder een selectie kunt bekijken.

VENLO
Negen-novemberweg 27 - 5916 LD
Netherlands

Sjoerd Bouma profile image
Sjoerd Bouma
Real Estate Agent
€839,000 k.k.
Living Area
227m2
Plot Size
754m2
Bedrooms
6

Description

Space, Comfort and Sustainability Combined: Future-Proof Home with 6 Bedrooms and Energy Label A++

This spacious and future-ready home offers exceptional living comfort. Designed with sustainability in mind, the property combines an energy-efficient layout with abundant space and tranquility. The master bedroom and bathroom are conveniently located on the ground floor. Upstairs, you will find an additional five generous bedrooms and a second bathroom – perfect for a large family, visiting guests, working from home, or pursuing hobbies.

Equipped with a hybrid heat pump, 16 solar panels, excellent insulation, and an A++ energy label, this home is built for the future. The underfloor heating on the ground floor also functions as cooling, ensuring a pleasant indoor climate throughout all seasons. A spacious living room, open-plan kitchen, utility room, and a landscaped private garden complete the picture.

Located in a quiet residential area on the Dutch-German border, close to the Groote Heide nature reserve and beautiful forests, the property is also within walking distance of sports facilities. Within just 10 minutes you can reach Venlo’s lively city centre or access the main roads towards Eindhoven and Germany.

Combining nature and connectivity, this home offers the best of both worlds: peace and accessibility. A unique opportunity for those seeking a sustainable, comfortable, and spacious family home with a long-term vision.

Basement
From the hallway on the ground floor, a staircase leads to a cellar of approx. 20 m² – ideal for wine storage.

Ground Floor
Nearly the entire ground floor is fitted with energy-efficient underfloor heating that also cools.

Enjoy a bright and spacious living room of 62 m² with a beautiful view of the landscaped garden. The living room features a bay window, a TV corner with striking architecture highlighted by a roof window, and a fireplace.

From here, sliding doors open onto the large, partly covered terrace and garden. Windows are fitted with automatic sunshades.

The ground floor also offers a large bedroom (approx. 16 m²) with an en-suite bathroom, a generous kitchen (11 m²), and a utility room (7 m²) with laundry connections.

The garage (approx. 21 m²) is accessible from the utility room and features heating, a sink, and electricity. A large sectional door provides access to the driveway with space for 2 cars, while a separate side door leads to the garden.

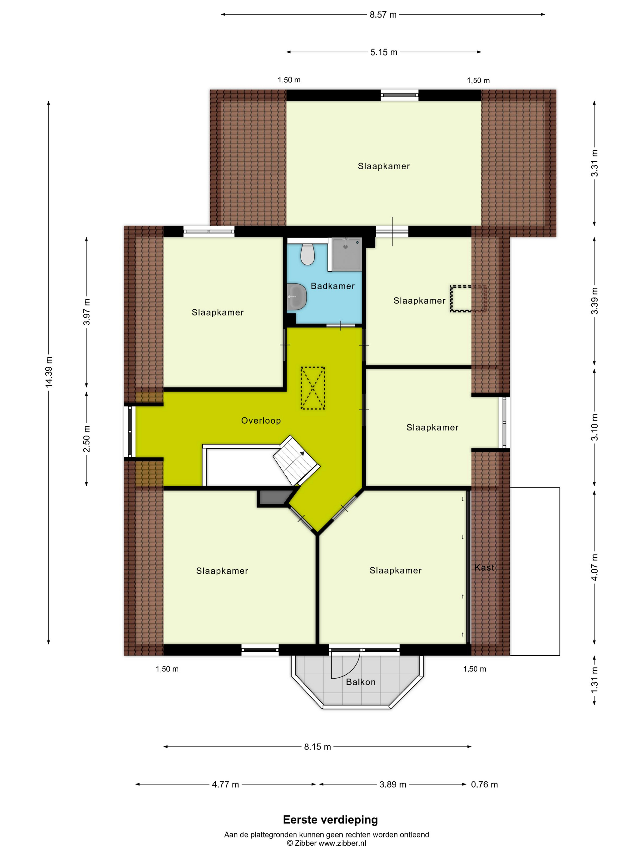
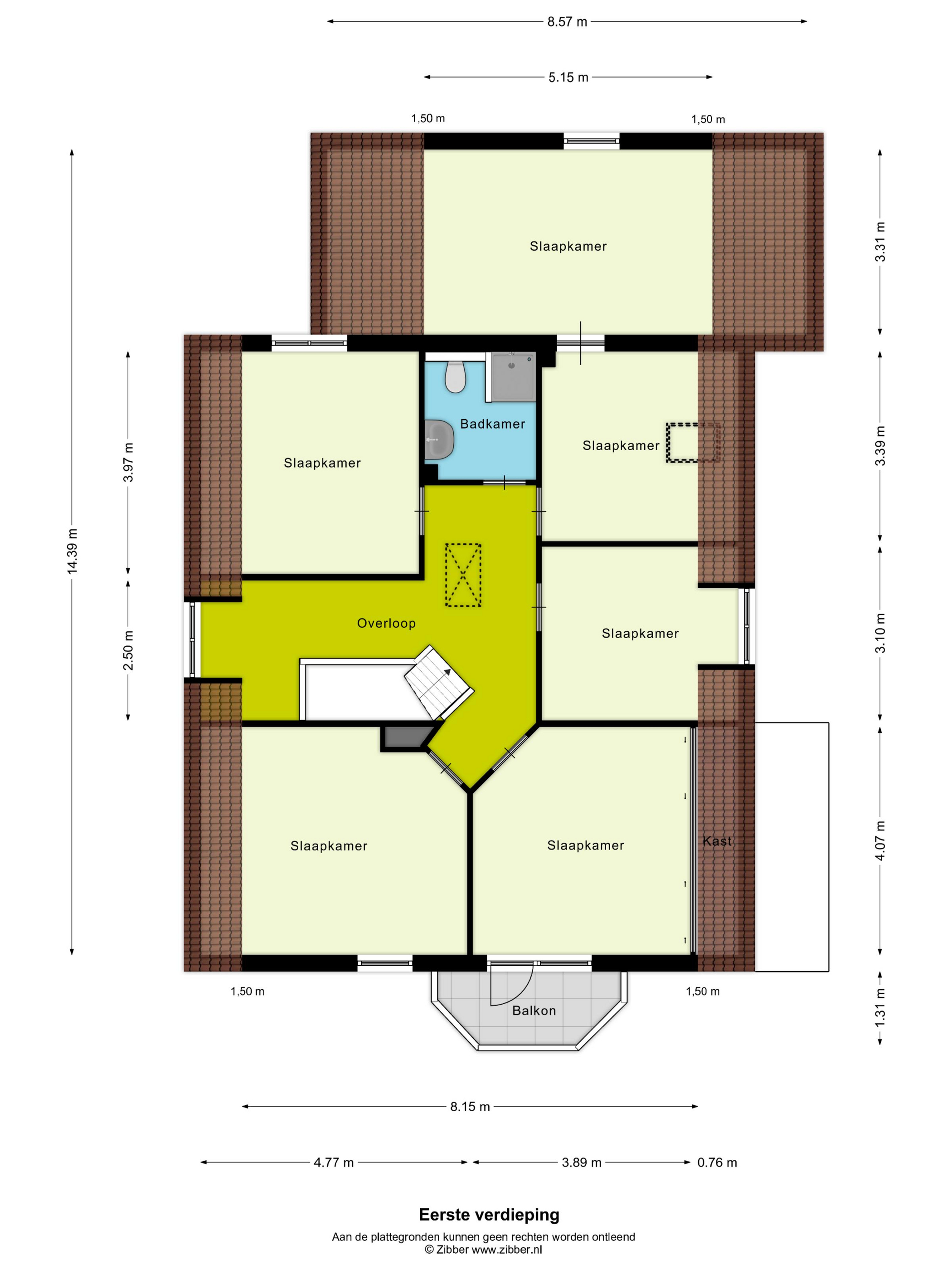
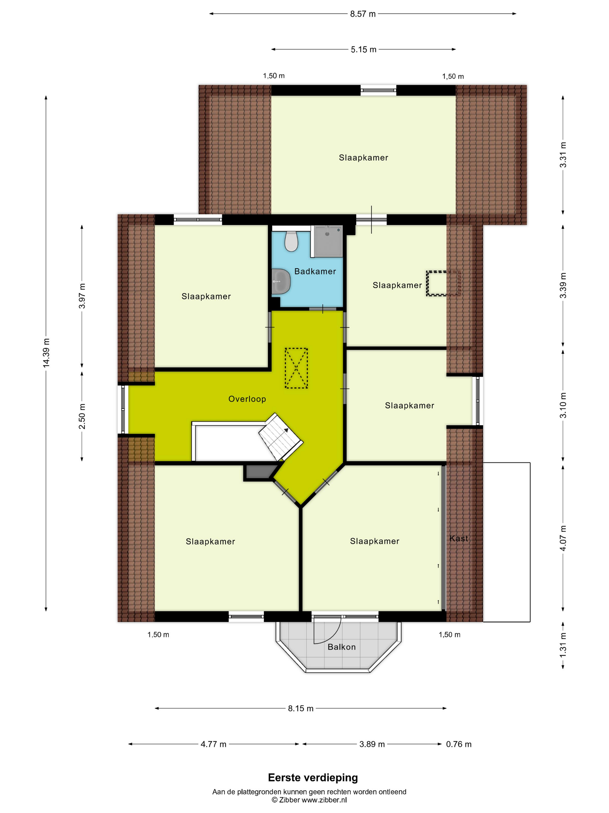
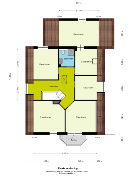
First Floor
A spacious landing gives access to 5 bedrooms (approx. 10 m², 15 m², 16 m², 16 m² and 17 m²) and a second bathroom (approx. 4 m²).

One of the bedrooms offers access to an additional room, ideal for conversion into a sauna or wellness area. Another bedroom provides access to a balcony.

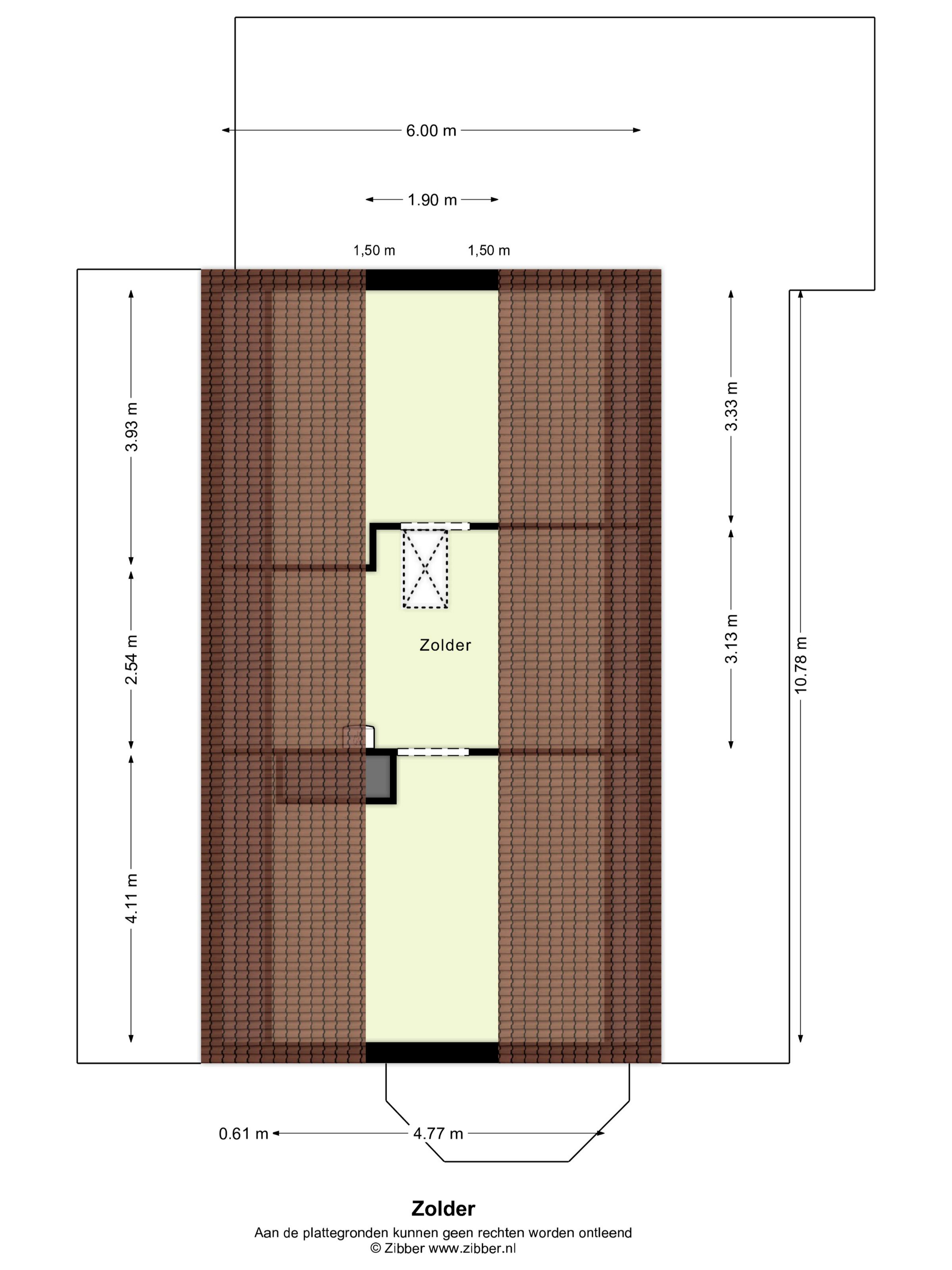
Attic
Large storage attic with multiple sections, accessible via loft ladder from the first-floor landing.

Garden
The home boasts a beautifully landscaped rear garden with plenty of greenery and privacy, featuring a lawn, borders with planting, and several mature trees. Multiple seating areas create the perfect setting for peaceful outdoor living.

Key Features
- Nearly entire ground floor with energy-efficient underfloor heating (also cooling)
- 16 solar panels
- 6 spacious bedrooms
- 2 bathrooms and 3 toilets
- Driveway with parking for 2 cars
- Hardwood window frames
- Mechanical ventilation (toilets, bathrooms, kitchen)
- Recently renewed 3-phase electricity cabinet (2023)
- Recently repainted exterior woodwork
- Advance energy costs just €160 per month

Features

Solar panels
Alarm system
Transfer of ownership
Asking Price
€ 839.000 k.k.
Status
verkocht onder voorbehoud
Acceptance
in overleg
Construction
Kind of house
Landhuis
Building type
vrijstaande woning
Construction period
1989
Energy rating
A++
Roof type
zadeldak
Bedrooms
6
Bathrooms
2
Surface Areas And Volume
Living Area
227 m2
Other indoor space
70 m2
Exterior space attached to the buildinge
8 m2
Volume in cubic meters
1100 m3
Plot Size
754 m2
Facilities
Mechanische ventilatie
Alarminstallatie
Tv kabel
Buitenzonwering
Schuifpui
Dakraam
Zonnepanelen
Aan bosrand
In woonwijk
Baerz & Co Property Brochure

Brochure

Videos

Floor Plans

Beeuwkes Makelaardij

Van Alkemadelaan 338
2597 AS Den Haag

info@beeuwkes.nl
+31 703143000

www.beeuwkes.nl

Information / Viewing request

Sjoerd Bouma profile image
Sjoerd Bouma
Real Estate Agent

Buying a Luxury Property in Venlo

Venlo delivers a harmonious blend of heritage, modernity, and international connectivity. Its vibrant community, cultural vitality, and tailored real estate services meet the demands of global buyers and families seeking refined living.