Ons kantoor is lid van Baerz & Co Luxury Homes; een internationaal platform dat exclusieve woningmakelaars met elkaar verbindt. Neem contact op met ons secretariaat voor meer informatie over het landelijke aanbod, waarvan u hieronder een selectie kunt bekijken.

RHENEN
Hofstraat 6 - 3911 KX
Netherlands

Wistik Zonnenberg profile image
Wistik Zonnenberg
Register Makelaar Taxateur/ Eigenaar
€875,000 k.k.
Living Area
240m2
Plot Size
217m2
Bedrooms
3

Description

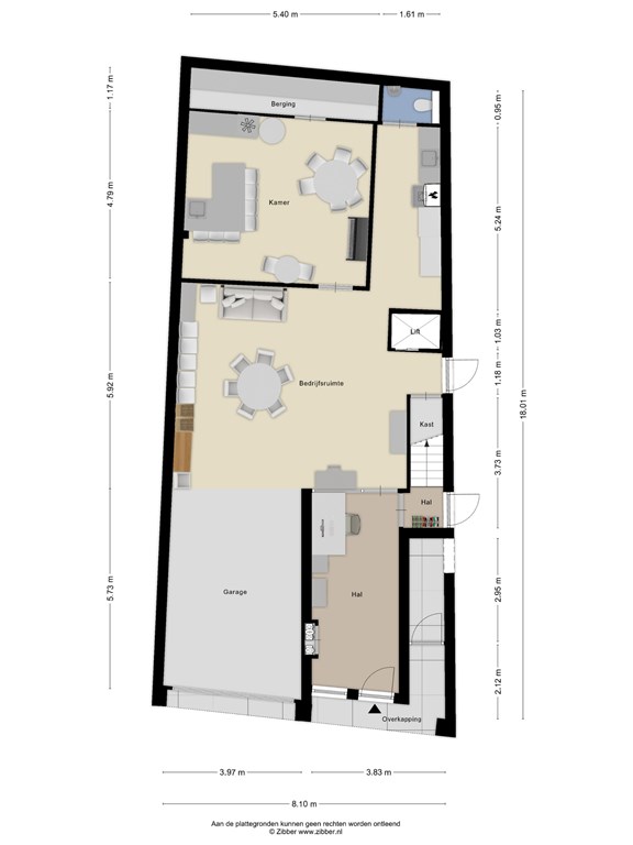
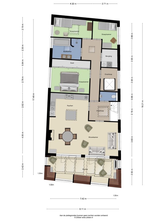
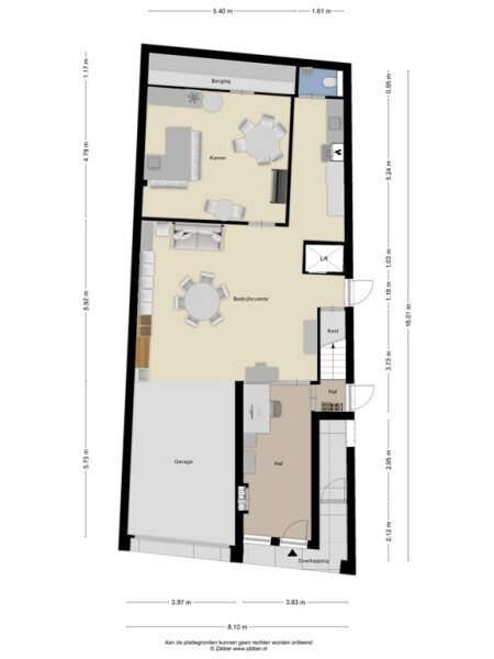
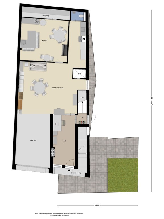
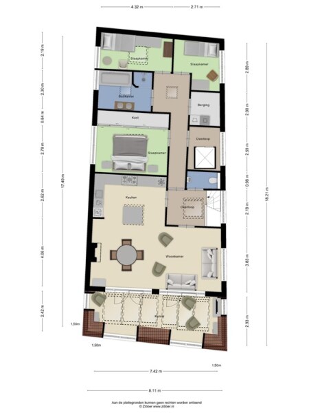
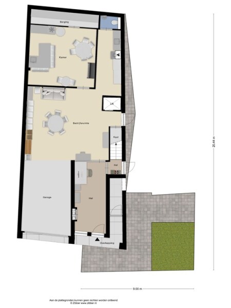
This penthouse Rhenen offers contemporary city living with 240 m² of thoughtfully designed interiors, a private city garden, and secure parking including a ground floor garage and two additional spaces. Set on a tranquil street within the heart of Rhenen, the property blends privacy with immediate access to the town’s vibrant amenities. The residence is fully wheelchair accessible, featuring step-free entry and an internal lift which create seamless movement across all levels.

The multifunctional ground floor adapts easily as a guest apartment or office space. A secure garage with electric entry, kitchenette, and utility area ensures flexibility for daily life. Ascending to the main floor, an open plan living space is anchored by a natural stone floor and a luxury kitchen with Boretti appliances. Glass doors create a bright transition to a multipurpose conservatory, benefiting from skylight and broad windows with external shading. Three bedrooms, each outfitted with air conditioning, and a spacious bathroom with a rain shower, whirlpool bath, double vanity, and underfloor heating, signal an attention to comfort and quality.

The penthouse’s south-west facing city garden is a private retreat, with a tiled terrace, outdoor fireplace, and artificial lawn for versatile enjoyment. Solar panels, fiber optic connectivity, and advanced insulation complement the property’s energy class B, ensuring efficient modern living. This luxury penthouse for sale in Rhenen merges the sophistication and scale of a city home with the serene pace and discretion valued by international buyers.

Explore Rhenen with Baerz, Your Trusted Personal Property Finder & Advisor

Navigating exclusive Rhenen real estate requires more than market listings. Advisors grant privileged access to discreet transactions and heritage estates, often unavailable publicly. Their expertise in assessing authenticity, architectural potential, and vendor motivation ensures buyers and sellers make confident, strategic decisions. With deep local insight and negotiation finesse, professional guidance streamlines acquisition processes and protects interests throughout complex transactions.

Special Features

Alarm system
Garage

Features

Transfer of ownership
Asking Price
€ 875.000 k.k.
Status
Available
Acceptance
In Concert
Reference
08077
Construction
Kind of house
Apartment
Building type
Penthouse
Construction period
2005
Energy rating
B
Roof type
composite
Bedrooms
3
Bathrooms
1
Surface Areas And Volume
Living Area
240 m2
Other indoor space
23 m2
Exterior space attached to the buildinge
10 m2
Volume in cubic meters
931 m3
Plot Size
217 m2
Facilities
Airco
Alarm
Cable Tv
Elevator
Fluetube
Not Furnished
Garage
Garden
Internetconnection
Outdoorawnings
Phoneline
Skylight
Not Upholstered
Ventilation
Baerz & Co Property Brochure

Brochure

Videos

Floor Plans

Zonnenberg Makelaardij

Kerkewijk 108
3904 JG Veenendaal

info@zonnenbergmakelaardij.nl
+31 318 559600

www.zonnenbergmakelaardij.nl

Information / Viewing request

Wistik Zonnenberg profile image
Wistik Zonnenberg
Register Makelaar Taxateur/ Eigenaar