Ons kantoor is lid van Baerz & Co Luxury Homes; een internationaal platform dat exclusieve woningmakelaars met elkaar verbindt. Neem contact op met ons secretariaat voor meer informatie over het landelijke aanbod, waarvan u hieronder een selectie kunt bekijken.

Woonboerderij for sale in OBDAM

OBDAM Dorpsstraat 3 - 1713 HA The Netherlands


Romy van de Leygraaf profile image
Romy van de Leygraaf
Real Estate Agent
+31 72 51 14 318
romy@leygraafmakelaars.nl

Leygraaf Makelaars
Kennemerstraatweg 67
1814 GC Alkmaar
NETHERLANDS
+31 725114318
www.leygraafmakelaars.nl
informatie@leygraafmakelaars.nl

Living area
625m2
Plot size
7500m2
Bedrooms
5

Description

Luxurious North Holland ‘Stolp’ Farmhouse with Swimming Pool on Expansive Estate!

In a serene and spacious rural setting, this stately and luxuriously built farmhouse stands proudly. A true North Holland 'stolp' farmhouse, offering the charm and comfort of country living with a park-like garden, spacious driveway, double garage, and a detached covered swimming pool. This stunning property offers endless possibilities—whether you’re looking for generous family living or a home office, this property has it all.

A major highlight is its idyllic location just outside the village of Obdam, with uninterrupted views over the meadows to the rear. Heerhugowaard is within easy cycling distance, and Alkmaar is also nearby. Amsterdam is just a 30-minute drive away. The farmhouse underwent a high-quality renovation in 1997, using first-class materials while preserving authentic elements. It features a cozy country-style kitchen, spacious living room, ground-floor bedroom with ensuite bathroom, at least four bedrooms on the first floor, and a separate wellness area with covered swimming pool, fitness room, and sauna.

LAYOUT

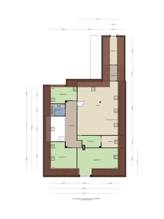
Ground Floor
A grand entrance hall with impressive mezzanine welcomes you, leading through double doors into the light-filled living room with large windows overlooking the garden. The entire ground floor features underfloor heating and continuous wooden flooring. At the front of the house are the billiard room and two office spaces, which can easily serve other purposes. A characteristic feature of a ‘stolp’ farmhouse is the central square structure—still original here—around which you can walk seamlessly from one room to another.

The living room offers multiple seating areas and connects to the dining room, which opens to a sheltered part of the garden through French doors. The kitchen is arranged in a corner layout, equipped with all necessary built-in appliances, and connects to the utility room.

At the rear of the house, a hallway leads to the spacious master bedroom, complete with ensuite bathroom featuring a bathtub, double washbasin, shower, bidet, separate toilet, walk-in closet, and garden access. From here, you walk straight into the wellness building where you can enjoy laps in the indoor pool, relax in the sauna, or unwind on the terrace while taking in the garden and meadow views.

First Floor
This floor features four generously sized bedrooms, all accessible via a landing with a view of the mezzanine. Natural light floods each room. There is also a bathroom with a bathtub, shower, toilet, bidet, and sink. The layout allows for the potential to create additional bedrooms if desired.

Second Floor
A fixed staircase leads to a vast, open attic. This fully walkable space showcases the impressive roof structure and offers ample storage or conversion potential.

EXTERIOR
This elegant farmhouse sits on a beautifully landscaped plot of approximately 7,500 m². Additionally, a private water storage area increases the total property size to 29,240 m². A charming driveway lined with chestnut trees and laid with brick paving leads to the double garage with electric doors and large attic space.

The ornamental garden features a harmonious mix of planting, ponds, and lawns, creating a park-like atmosphere complete with winding paths and quaint bridges. A peaceful rosarium provides the perfect place to relax while listening to birdsong.

FEATURES

* Beautiful rural setting near the village amenities of Obdam and the urban conveniences of Heerhugowaard and Alkmaar
* Traditional architecture with modern comfort and high-end materials
* Covered swimming pool with fitness area
* Exquisitely landscaped garden with water features and a rosarium
* Abundant natural light throughout the home

About Obdam:
Obdam is part of the municipality of Koggenland, which has approximately 21,500 residents, nearly 6,800 of whom live in Obdam. Thanks in part to recent new housing developments, Obdam is a vibrant village with several sports facilities, primary schools, clubs, and shops for daily needs. Cities such as Heerhugowaard, Alkmaar, and Schagen are all close by, offering a full range of amenities. Notably, Obdam also has its own train station with direct (or mostly direct) connections to Alkmaar, Haarlem, The Hague, and Amsterdam.

Features

Transfer of ownership
price
€ 2.195.000 k.k.
Status
beschikbaar
Acceptance
in overleg
Construction
Kind of house
Woonboerderij
Building type
vrijstaande woning
Construction period
1863
Energy rating
B
Roof type
samengesteld dak
Bedrooms
5
Bathrooms
2
Surface Areas And Volume
Living area
625 m2
Other indoor space
0 m2
External storage space
208 m2
Volume in cubic meters
879 m3
Plot size
7500 m2
facilities
Mechanische ventilatie
Alarminstallatie
Tv kabel
Buitenzonwering
Zwembad
Airconditioning
Rookkanaal
Dakraam
Sauna
Natuurlijke ventilatie
Aan water
Aan rustige weg
Vrij uitzicht
Buiten bebouwde kom
Landelijk gelegen
Baerz & Co Property Brochure

Brochure

Information / Viewing request

Photos

Floor Plans