Baerz & Co is een landelijk samenwerkingsverband van zorgvuldig geselecteerde boutique luxury makelaars. Samen vormen wij één netwerk, met één gedeeld aanbod. De woningen die u op onze website ziet, zijn afkomstig van alle aangesloten kantoren binnen Baerz & Co. Daardoor is niet ieder object rechtstreeks door ons kantoor in verkoop, maar door een gespecialiseerde collega binnen ons netwerk. Heeft u een woning gevonden die u aanspreekt en wilt u meer informatie? Dan brengen wij u graag persoonlijk in contact met de betreffende verkoopmakelaar, zodat u direct en zorgvuldig wordt begeleid.

NEEDE
Polhaarweg 7 - 7161 MC
Netherlands

Sjoerd Bouma profile image
Sjoerd Bouma
Real Estate Agent
€985,000 k.k.
Living Area
225m2
Plot Size
6180m2
Bedrooms
4

Description

Detached living surrounded by nature – peace, space and comfort
Where the Achterhoek meets Twente, this well?maintained detached home stands in a lush natural setting, complete with several outbuildings, a guesthouse/B&B and two horse stables, all situated on a generous plot of 6,180 m². Surrounded by mature trees and a beautifully landscaped garden, this property offers exceptional privacy, abundant space and a deep connection with nature.

A wonderful place for anyone who dreams of living freely and privately in a green environment.

The Residence
The house has a charming appearance, featuring a characteristic roofline and an appealing mix of wood and brickwork. Large windows allow plenty of natural light and create a seamless connection with the surrounding greenery. Built in 1978 using high?quality materials, the home still offers solid and comfortable living today. Solar panels contribute to energy?efficient living.
With a living area of approximately 225 m² and a volume of around 1,040 m³, the property provides generous space for the entire family.

Layout
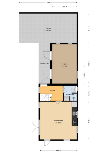
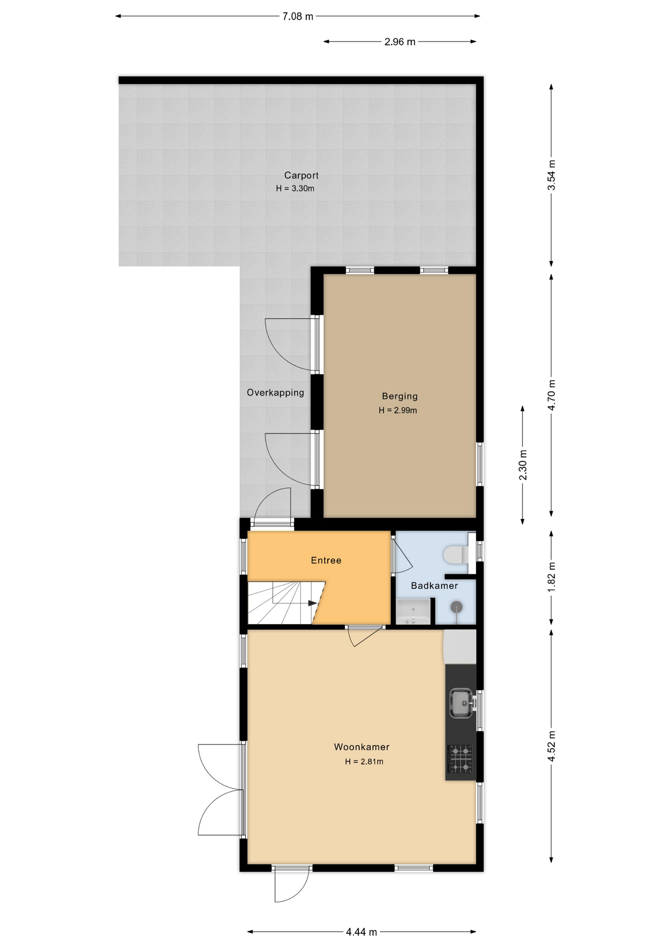
Ground Floor
Through the covered entrance you enter the spacious hallway with cloakroom, toilet and a bathroom equipped with a shower and washbasin. The bright living room offers beautiful views of the green surroundings, and the sliding doors lead to the covered terrace — a delightful spot to enjoy long evenings outdoors.
Adjacent to the living room, an open office space provides an ideal area for working from home. The kitchen is fitted with built?in appliances and offers space for informal dining. For larger gatherings, the area between the kitchen and living room is particularly suitable.
The ground floor also includes:
• A utility room with sink and rear entrance
• An additional room previously used as a practice space, suitable for various purposes
• A storage area/former stable/garage
• A second utility room with washing machine connection

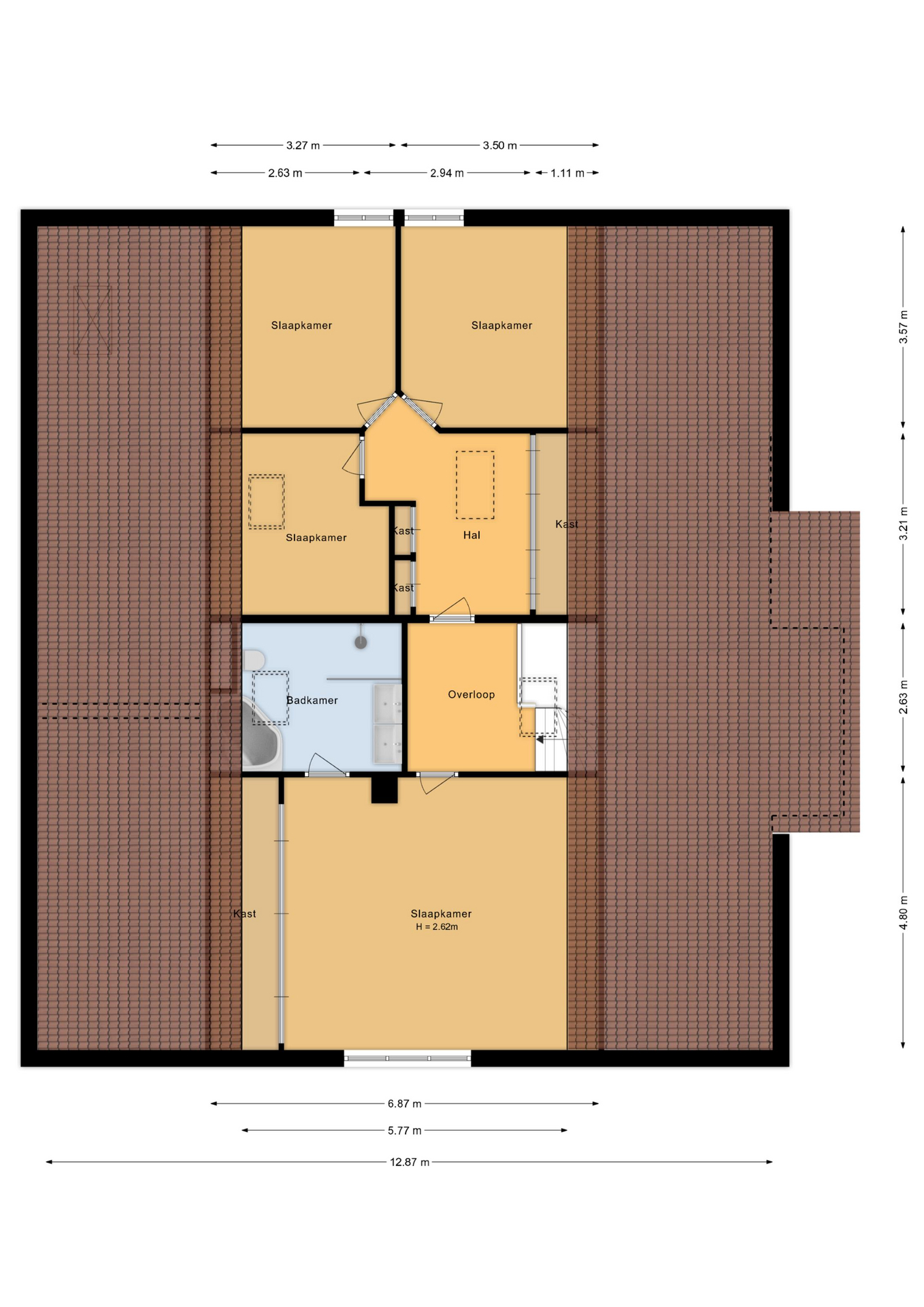
First Floor
The landing provides access to a room with built?in wardrobes. The spacious master bedroom features a built?in wardrobe and a private bathroom with bathtub, shower, double washbasin and toilet. In addition, there are three more generously sized bedrooms — ideal for family, guests or hobbies.
A loft ladder leads to a large attic storage area.

Guesthouse / B&B
At the rear of the main house stands a detached outbuilding containing a cosy holiday home with a floor area of 50 m². The ground floor includes an entrance hall with staircase, living/dining room with open kitchen, and a bathroom with shower, toilet and washbasin. The first floor offers two bedrooms.
A permit granted in 2018 allows the building to be used as a recreational residence. Perfect for hosting guests in comfort and privacy — and ideal for recreational rental.

Outbuildings
Attached to the guesthouse is an extension housing two horse stables and space for storing a camper.
The property also includes a garage, carport, garden shed and various storage areas for firewood — plenty of storage options throughout the grounds.

Outdoor Space
The grounds surrounding the home are spacious, green and wonderfully private. Mature trees border the plot and the carefully landscaped garden features a variety of shrubs and flowering plants. Large lawns and several terraces offer inviting spots to enjoy sun or shade at any time of day. The wide driveway provides ample parking on private property.

Thanks to the open setting, you can enjoy views of the surrounding landscape and a wonderful sense of freedom. While the garden is neatly maintained, it also offers opportunities for personal touches — such as additional terraces, a vegetable garden or a play area for children. A true haven for nature lovers and those seeking tranquillity.

Location & Surroundings
The property is located in the peaceful and green outskirts of Neede, in the municipality of Berkelland, surrounded by meadows, wooded banks and rural vistas. It is an ideal environment for walking and cycling.
Despite the rural setting, the centre of Neede is just a short distance away, offering shops, supermarkets, cafés, schools and other daily amenities. Within a few minutes’ drive you also reach Diepenheim — known as Het Stedeke — a picturesque village with charming shops and restaurants, surrounded by historic estates and castles.
Nearby cities such as Hengelo, Enschede, Haaksbergen, Lochem and Zutphen are easily accessible, providing an excellent balance between rural living and practical convenience.

In summary
A beautifully presented detached home in a lush, peaceful setting — offering space, privacy and comfort, with all essential amenities close by.
This presentation is informative and non-binding. Drawings, dimensions, area and volume are indicative and not legally binding.

Features

Solar panels
Transfer of ownership
Asking Price
€ 985.000 k.k.
Status
beschikbaar
Acceptance
in overleg
Construction
Kind of house
Landhuis
Building type
vrijstaande woning
Construction period
1978
Energy rating
C
Roof type
zadeldak
Bedrooms
4
Bathrooms
2
Surface Areas And Volume
Living Area
225 m2
Other indoor space
45 m2
Exterior space attached to the buildinge
18 m2
External storage space
21 m2
Volume in cubic meters
1040 m3
Plot Size
6180 m2
Facilities
Schuifpui
Glasvezel kabel
Zonnepanelen
Baerz & Co Property Brochure

Brochure

Videos

Beeuwkes Makelaardij

Van Alkemadelaan 338
2597 AS Den Haag

info@beeuwkes.nl
+31 703143000

www.beeuwkes.nl

Information / Viewing request

Sjoerd Bouma profile image
Sjoerd Bouma
Real Estate Agent

Buying a Luxury Property in Neede

Neede’s tranquil setting, refined residential options, and attentive local services attract a discerning international community. The balance of heritage, privacy, and cultured living make it valued by buyers, owners, and their trusted advisors.