Ons kantoor is lid van Baerz & Co Luxury Homes; een internationaal platform dat exclusieve woningmakelaars met elkaar verbindt. Neem contact op met ons secretariaat voor meer informatie over het landelijke aanbod, waarvan u hieronder een selectie kunt bekijken.

MIJDRECHT
Aan Het Spoor 5 - 3641 SZ
Netherlands

Sjoerd Bouma profile image
Sjoerd Bouma
Real Estate Agent
€845,000 k.k.
Living Area
158m2
Plot Size
283m2
Bedrooms
4

Description

Stylish Living in the Heart of Mijdrecht’s Brand-New Residential Area!

Discover this stunning detached villa (“garden wall villa”), beautifully situated along ornamental water with a unique view of the iconic Kompastoren. Just around the corner lies the characteristic Spoorhuis, and you’ll be living in Spoorpark – Mijdrecht’s newest and most popular neighborhood. Here, you’ll enjoy the perfect combination of peace, space, and accessibility. The vibrant center of Mijdrecht, with its shops, restaurants, health center, lively weekly market, and annual events such as the braderie, is within walking distance. Thanks to excellent public transport connections and proximity to major cities like Amsterdam, Utrecht, and Hilversum, you can reach your destination in no time. Schiphol Airport and the Vinkeveense Plassen are practically around the corner. A prime location where the best of city and nature come together.

Recently built, fully sustainable, and designed with contemporary architecture, this garden wall villa offers high-quality construction, clean lines, a flat roof, and above all: a comfortable home.

Layout

GROUND FLOOR – space, light, and comfort
The spacious anthracite gravel driveway offers parking for two cars and includes a private charging station. From here you reach the stylish entrance of the villa. Inside, the generous hall with a large corner window immediately catches the eye, flooding the space with natural light. From the hall, you have access to various rooms and the staircase to the first floor.

To the left of the entrance is a versatile room currently used as an office, also ideal as a hobby room or indoor storage. This room even has its own entrance from the front. Adjacent is the meter cupboard with fiber-optic connection, followed by a modern guest toilet in grey-white tones with wash basin. A practical storage closet sits under the stairs, with plenty of space for coats and shoes.

At the end of the hall, a paneled glass door with side window opens into the spacious living room with open kitchen. Large windows all around – equipped with both manual and electric sunshades – provide an abundance of light and panoramic views. The modern anthracite-gray kitchen features a stylish worktop, a large island with drawers and breakfast bar, and top-quality Siemens built-in appliances: dishwasher, induction cooktop with integrated extractor, combi-steam oven, and fridge/freezer.

The living area is generous, allowing for multiple seating arrangements, and from the kitchen, French doors open into the back garden, where an electric awning provides shade. The dining area flows seamlessly into the kitchen, with the cozy sitting area beyond. Here too, French doors lead out to the sunny south-facing side garden. The entire ground floor is finished with a low-maintenance wood-look PVC floor with underfloor heating. All windows and doors are fitted with insect screens – a thoughtful detail that enhances comfort.

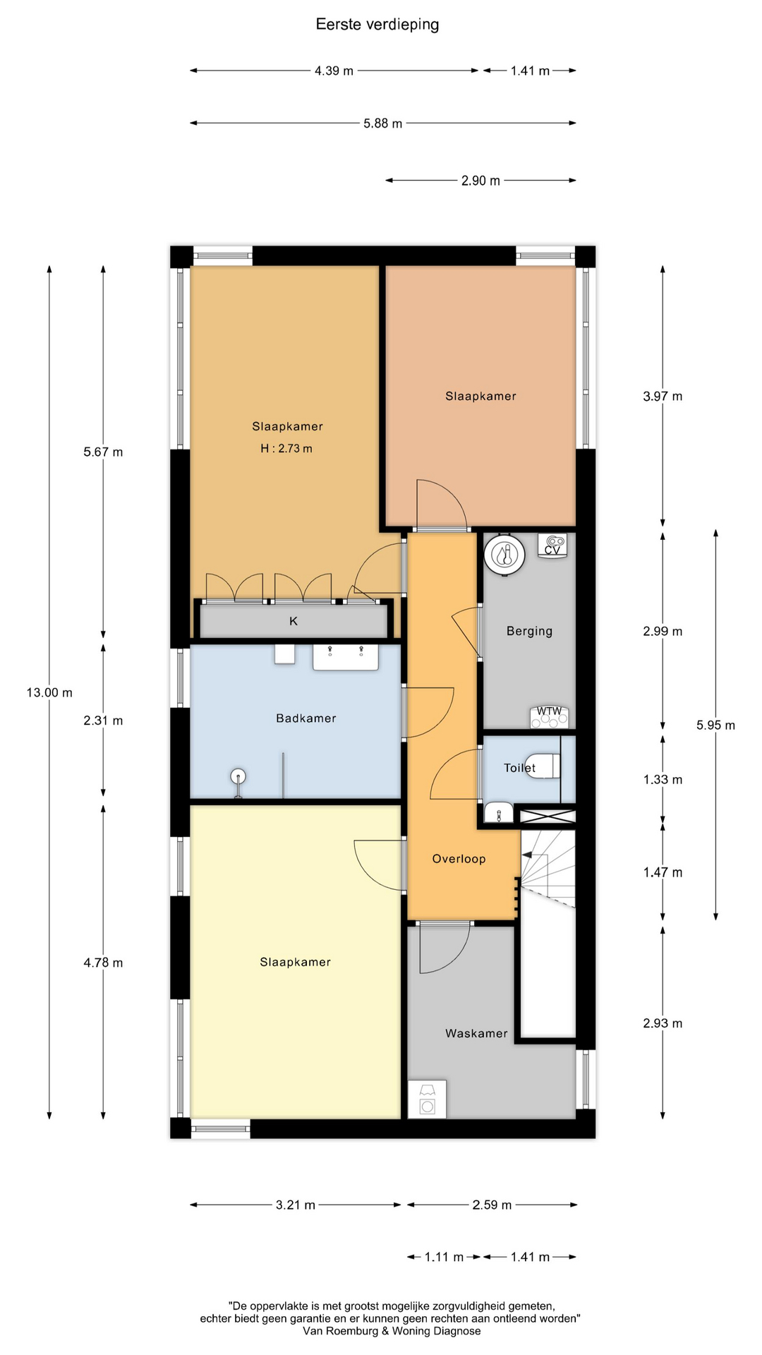
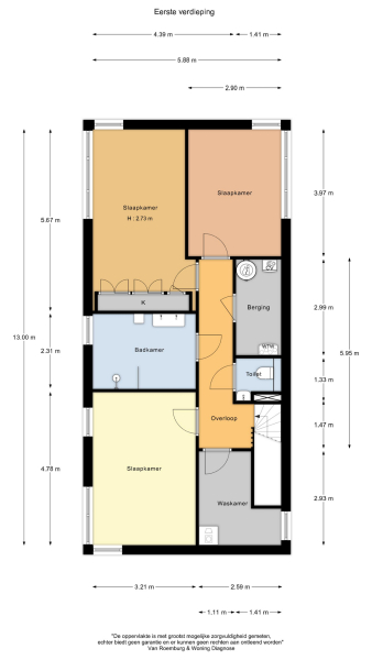
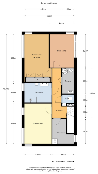
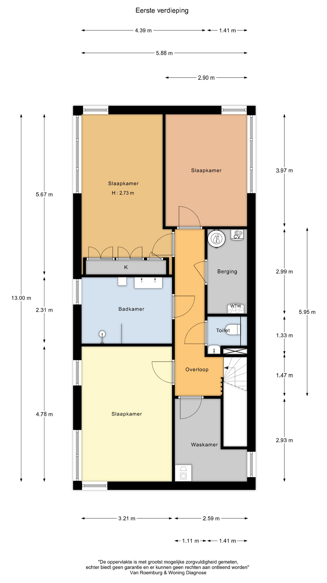
FIRST FLOOR – comfort and space for the whole family
A fixed staircase leads to the bright landing. To the left is a practical laundry room with window, connections for washer and dryer, and extra storage space. Next to it is a large, light-filled bedroom (or guest room) with a corner window and additional side window. On the opposite side of the landing is a stylish separate toilet in grey-white tones, and next to it the spacious bathroom with window, walk-in shower with rainfall and handheld shower, double vanity with drawers, illuminated mirror, and an extra cabinet. The layout also allows for a future bathtub.

This floor also houses a technical room with heat pump, boiler, mechanical ventilation unit, and inverter for the 14 solar panels – along with additional storage space. At the end of the hallway are two more spacious bedrooms: the primary bedroom with a large corner window, and another generous room, currently used as an office.

The same wood-look PVC flooring with underfloor heating continues throughout the entire first floor. All windows are equipped with insect screens and electric solar-powered screens – a blend of comfort, luxury, and sustainability.

GARDEN – enjoy sun, views, and privacy
The outdoor space is an extension of the living experience. The anthracite gravel driveway, with charging station, leads to a wooden shed with electricity, lighting, and a practical canopy. A charming gravel path with planted borders runs along the back of the house, leading to the first terrace with low-maintenance composite decking. Overlooking the ornamental water and facing east, this is the perfect spot for a peaceful morning coffee in the sun.

The path continues along the water, surrounded by greenery, to the sunny south-facing heart of the garden. Here you’ll find a spacious terrace by the living room, currently shaded by a retractable awning, with potential for a stylish veranda. Beyond stretches a well-kept lawn, framed by planting and a sleek beech hedge. Whether you want to relax, garden, or entertain guests, this garden has it all – with the added bonus of beautiful water views.

Make this modern villa your new home!
This detached villa has it all: 158 m² of living space, modern finishes, energy-efficient features, a smart layout, a sunny waterfront garden, and a prime location in the heart of Mijdrecht. Here you live in peace and comfort, with all amenities and major cities within easy reach. Homes like this rarely come on the market. Come and experience the space, light, and views for yourself. Schedule a viewing today and discover your future dream home!

About Mijdrecht
Mijdrecht is the vibrant center of the municipality of De Ronde Venen, located in the heart of the Green Heart of the Netherlands. The town offers a shopping boulevard around the town hall with a perfect mix of well-known retail chains and charming local shops. Popular events include the Street Theater Festival and “De Culinaire Venen.”

With the N201 provincial road (Zandvoort–Haarlem–Hilversum), you’ll have quick connections to Amstelveen, Schiphol, Amsterdam, Hilversum, and Utrecht. Schools, library, sports clubs, and public transport are all nearby. Within ten minutes you can tee off at the prestigious Golfclub Veldzijde. Weekends invite you to cycle through the Green Heart or sail on the Vinkeveense Plassen. Surrounded by nature reserves such as the Vinkeveense Plassen, Botshol, and the river De Kromme Mijdrecht in De Hoef, this is the ideal place to unwind after a busy day – with Amsterdam and Utrecht just a short drive away.

Features

Solar panels
Transfer of ownership
Asking Price
€ 845.000 k.k.
Status
verkocht onder voorbehoud
Acceptance
in overleg
Construction
Kind of house
Villa
Building type
vrijstaande woning
Construction period
2023
Energy rating
A+++
Roof type
plat dak
Bedrooms
4
Bathrooms
1
Surface Areas And Volume
Living Area
158 m2
Other indoor space
0 m2
External storage space
7 m2
Volume in cubic meters
587 m3
Plot Size
283 m2
Facilities
Rolluiken
Buitenzonwering
Schuifpui
Glasvezel kabel
Zonnepanelen
Balansventilatie
Aan water
Aan rustige weg
In woonwijk
Beschutte ligging
Baerz & Co Property Brochure

Brochure

Videos

Floor Plans

Beeuwkes Makelaardij

Van Alkemadelaan 338
2597 AS Den Haag

info@beeuwkes.nl
+31 703143000

www.beeuwkes.nl

Information / Viewing request

Sjoerd Bouma profile image
Sjoerd Bouma
Real Estate Agent

Buying a Luxury Property in Mijdrecht

Mijdrecht offers refined living within a discreet community, ideal for global buyers seeking tranquility, robust services, and direct access to the cultural and economic dynamism of the region.