Baerz & Co is een landelijk samenwerkingsverband van zorgvuldig geselecteerde boutique luxury makelaars. Samen vormen wij één netwerk, met één gedeeld aanbod. De woningen die u op onze website ziet, zijn afkomstig van alle aangesloten kantoren binnen Baerz & Co. Daardoor is niet ieder object rechtstreeks door ons kantoor in verkoop, maar door een gespecialiseerde collega binnen ons netwerk. Heeft u een woning gevonden die u aanspreekt en wilt u meer informatie? Dan brengen wij u graag persoonlijk in contact met de betreffende verkoopmakelaar, zodat u direct en zorgvuldig wordt begeleid.

LEPELSTRAAT
Erasmusweg 5 - 4664 PA
Netherlands

Sjoerd Bouma profile image
Sjoerd Bouma
Real Estate Agent
€975,000 k.k.
Living Area
136m2
Plot Size
1275m2
Bedrooms
3

Description

Luxury Detached Living at the Highest Level – Sustainable, Stylish, and Fully Equipped
Welcome to this truly exceptional detached home, beautifully situated in a ????? and rural setting between Lepelstraat and Halsteren, directly bordering woodland. Here, you can enjoy complete peace and privacy, with nature quite literally as your backyard, while still reaching the A4 motorway within minutes, offering excellent connections to Rotterdam, Antwerp, and Breda (approx. 30 minutes).

This property perfectly combines single-level living with the space and flexibility of a full family home. Finished to perfection, modern in design, and completely move-in ready, it also features a multifunctional outbuilding of approximately 124 m² offering endless possibilities.

More Than Sustainable
Extremely sustainable and energy-efficient (energy label A+++), this home is fully future-proof and equipped with every conceivable modern installation. Features include double wall insulation, floor and roof insulation, HR++ glazing in hardwood frames, an air-source heat pump with a 260-litre boiler tank, underfloor heating on both the ground and first floors, no fewer than 44 solar panels, and multiple air conditioning units.

In short: maximum comfort with exceptionally low energy costs.

The House
The ground floor offers a bright and inviting living room with a wood-burning fireplace and an open-plan kitchen equipped with all modern built-in appliances, including a wine cooler. From the living room, you have a beautiful view of the garden and direct access to the luxurious veranda.

A particularly attractive feature is the presence of a spacious master bedroom with a stylish en-suite bathroom on the ground floor, making the property ideal for single-level living.

Upstairs, you will find two generous double bedrooms and a second bathroom. A wide dormer spanning the full width of the rear façade provides additional space and natural light.

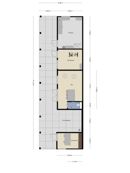
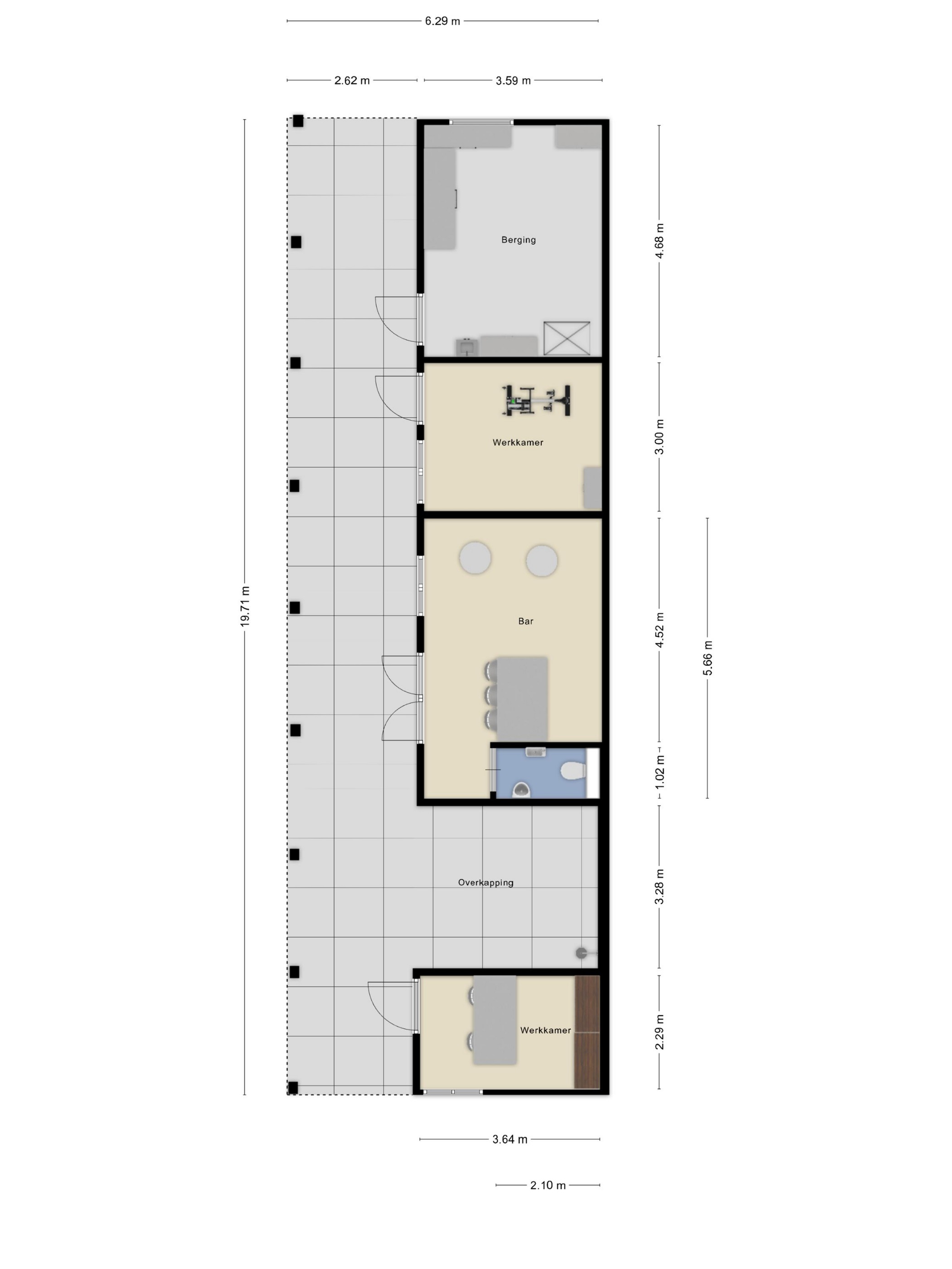
The Multifunctional Outbuilding
The absolute eye-catcher is the fully insulated outbuilding, finished to a very high standard and offering a wealth of possibilities. With a footprint (including veranda) of approximately 124 m², it is divided into several practical and luxurious spaces.

These include:
A dedicated office/home workspace
An open area with a luxury swim spa (included), featuring a counter-current system for both training and relaxation
A bar area with bar, beverage cooling, and separate toilet
A fitness room with air conditioning
A storage area for bicycles with electrical sub-distribution and a mezzanine loft for additional storage

Should you prefer a different layout or use, the building can easily be adapted to your own vision.

This property is also perfectly suited for multi-generational living. For example, it could accommodate young adults struggling to enter the housing market, or provide a comfortable solution for aging parents who may require care in the future.

Second Outbuilding and Additional Features
The former garage has been practically converted into a utility room with all necessary connections for household appliances. Thanks to its double doors, it can also serve perfectly as a bicycle storage area, adding to the overall convenience.

The entire property has been comprehensively renovated around 2022 under the supervision of the current owners. Every detail has been carefully considered, with nothing left to chance. All pipework has been replaced—from drainage to electrical systems—the gas connection has been removed, and only high-quality materials have been used throughout.

Outdoor Living
The plot has been designed to perfection, offering complete privacy and a wide range of features, including:

A double driveway
A well-maintained front garden
Double gates leading to the backyard
A spacious lawn
Multiple terraces
Neatly finished fencing
Wood storage space
A vegetable garden
A dedicated play area for children

Everything has been thoughtfully considered.

In Summary
A unique, sustainable, and luxuriously finished detached home in a beautiful location, featuring a multifunctional outbuilding and ample space for comfortable family living as well as single-level convenience.

This is a property that truly needs to be experienced in person to fully appreciate its quality and atmosphere.

Construction Details
Main House:
Traditionally built with cavity walls in brick masonry, concrete ground and first floors, a pitched roof covered with tiles, and a flat roof finished with EPDM.

Garage:
Traditionally constructed with single-leaf brickwork, fitted with insulated inner walls, a tiled concrete floor, a renewed pitched roof with tiles, and insulation in walls, floor, and roof.

Storage / Shed:
Built in 2022 using a timber frame structure, featuring a concrete floor, tiled pitched roof, full insulation (walls, floor, and roof), and HR++ double glazing.

Insulation
The property is equipped with floor and roof insulation, as well as double wall insulation (both insulated cavity walls and insulated inner walls). It also features HR++ glazing and 44 solar panels rated at 400 kWh each.

Heating and Hot Water
The property is equipped with an air-source heat pump (Domusa Teknik, 2022), located in the technical room on the ground floor. A separate 260-litre boiler tank provides hot water.

Additionally, the entire house benefits from underfloor heating, with each room having its own independent thermostat, allowing individual temperature control throughout the home.

Features

Solar panels
Air conditioning
Transfer of ownership
Asking Price
€ 975.000 k.k.
Status
beschikbaar
Acceptance
in overleg
Construction
Kind of house
Eengezinswoning
Building type
vrijstaande woning
Construction period
1967
Energy rating
A+++
Roof type
samengesteld dak
Bedrooms
3
Bathrooms
2
Surface Areas And Volume
Living Area
136 m2
Other indoor space
0 m2
Exterior space attached to the buildinge
51 m2
External storage space
82 m2
Volume in cubic meters
504 m3
Plot Size
1275 m2
Facilities
Airconditioning
Dakraam
Zonnepanelen
Natuurlijke ventilatie
Vrij uitzicht
Buiten bebouwde kom
In bosrijke omgeving
Baerz & Co Property Brochure

Brochure

Videos

Video Erasmusweg 5

Floor Plans

Beeuwkes Makelaardij

Van Alkemadelaan 338
2597 AS Den Haag

info@beeuwkes.nl
+31 703143000

www.beeuwkes.nl

Information / Viewing request

Sjoerd Bouma profile image
Sjoerd Bouma
Real Estate Agent

Buying a Luxury Property in Lepelstraat

Lepelstraat appeals to those valuing discretion, peaceful living, and a sense of tradition, supported by expert advisory services and a close-knit community. This village attracts global buyers seeking refined homes and a cultivated Dutch countryside lifestyle.