Discover this unique detached house that offers plenty of opportunities thanks to its clever layout with a front and rear section. This special property is ideal for various living and working concepts: for example, combine it as a
main residence with an independent care home, create a comfortable living space for blended families or set up an inspiring home office or practice space.
The separate entrances give you the flexibility to arrange the spaces according to your own wishes and needs. Whether you are looking for an ideal combination of living and working, keeping hobby animals such as chickens, goats or ponies, or need a home that grows with your lifestyle, this property offers you the space to make all your ideas a reality.
Perfectly located between Brandevoort and Mierlo, in a quiet area with all amenities nearby. Thanks to the excellent connections to major cities such as Helmond and Eindhoven and the proximity to public transport – and even the fast cycle routes to Eindhoven – you will enjoy optimal accessibility and mobility.
Be surprised by the possibilities and experience for yourself how this versatile house, situated in a perfect location, can form the ideal basis for your new future. Contact us today for a viewing and discover the potential of this special property!
LIVING AREA FRONT HOUSE
Ground floor
The entrance hall provides access to the living room and the meter cupboard. There is also a cloakroom. A very
attractive natural stone staircase provides access to the first floor. A characteristic door with a stained glass
window provides access to the living room. The living room has a marble tiled floor with underfloor heating, stucco walls and a stucco ceiling with decorative mouldings. Thanks to the many windows and a large bay window, the room enjoys plenty of natural light, creating a spacious effect. Adjacent to the living room is a versatile space, ideal for an inspiring workspace or a cosy play area. The space can be closed off with a sliding door with stained glass. The kitchen has a corner layout and is equipped with a 5-burner gas hob, combination microwave/oven, sink, American fridge and dishwasher. Various base and wall cabinets provide storage space. There is enough space to place a dining table. The kitchen has a tiled floor with bis. The walls are partly finished with sleek stucco and partly with wooden panelling. The ceiling has stucco with decorative mouldings. The kitchen is open to the adjoining garden room. Here too, large windows provide a sea of light and a beautiful view of the surrounding garden. A wonderful place to relax! The walls are partly finished with sleek stucco and partly with wooden panelling. The ceiling is also finished with stucco and decorative mouldings. French doors provide access to the garden. There is also access to the utility room from here. The utility room is a practical space, equipped with a sink, a storage cupboard and a fixed cupboard wall with sliding doors. There is also a toilet. A door provides access to the garden. You can also reach the rear of the house from this room.
First floor
The spacious landing provides access to three bedrooms and a bathroom. The landing and all bedrooms have
the same finish: laminate flooring, stucco walls and a stucco ceiling. The bedroom on the right has French doors that provide access to the flat roof. From here you have a beautiful view of the garden. The largest bedroom is currently furnished as a hobby room and has a walk-in wardrobe, storage room and a central heating
room where the central heating boiler is located. Various skylights and two dormer windows provide plenty of natural light.
LIVING AREA IN THE REAR HOUSE
Ground floor:
The spacious entrance hall with high-quality ceramic tile flooring and underfloor heating provides access to
the living room, toilet and meter cupboard. A cherry wood staircase provides access to the first floor.
The toilet is fully tiled and equipped with a washbasin and wall-mounted toilet. The attractive living room is accentuated by high-quality ceramic tile flooring with bis and stucco, both on the walls and on the ceiling. The beautiful mouldings give the interior a classic look. The marble fireplace with gas fire provides extra warmth and atmosphere on colder days. A spacious bay window, currently furnished as a workspace, provides extra light in the room. The custom-made kitchen was designed by Hans Kwinten Interiors Projects. This high-quality kitchen is L-shaped and fully equipped with an advanced hob (with a wok burner, two gas burners and two induction burners) and a combi oven that also serves as a steam oven and microwave. In addition, you will find a dishwasher, freezer, refrigerator and a Quooker boiling water tap. French doors and various windows provide a beautiful view of the garden and direct access to the covered terrace and garden. The kitchen provides access to a spacious, man-sized storage cellar. The bedroom with en-suite bathroom and walk-in wardrobe is a delightful space. The floor is finished with laminate. The bathroom is fully tiled and equipped with a Whirlpool bathtub with light therapy, a double sink with a cabinet, a floating toilet and a walk-in shower with a seat. Various niches are an extra nice detail in the room. There is also underfloor heating in the bathroom. The walk-in closet with fixed cupboards and lighting offers optimal clothing storage. From the
walk-in closet, there is direct access to the laundry room. This laundry room is equipped with connections for washing appliances and a kitchenette. A lockable door connects this room to the front of the house.
First floor:
From the landing, you have access to two comfortable bedrooms, which are finished with laminate flooring and stucco walls and ceilings. A dormer window and two sets of windows provide natural light and ventilation. The second bathroom is also fully tiled and equipped with a walk-in shower, a washbasin and a floating toilet. A skylight provides sufficient natural light and fresh air. The practical central heating room/storage room has the central heating boiler (Nefit, Topline).
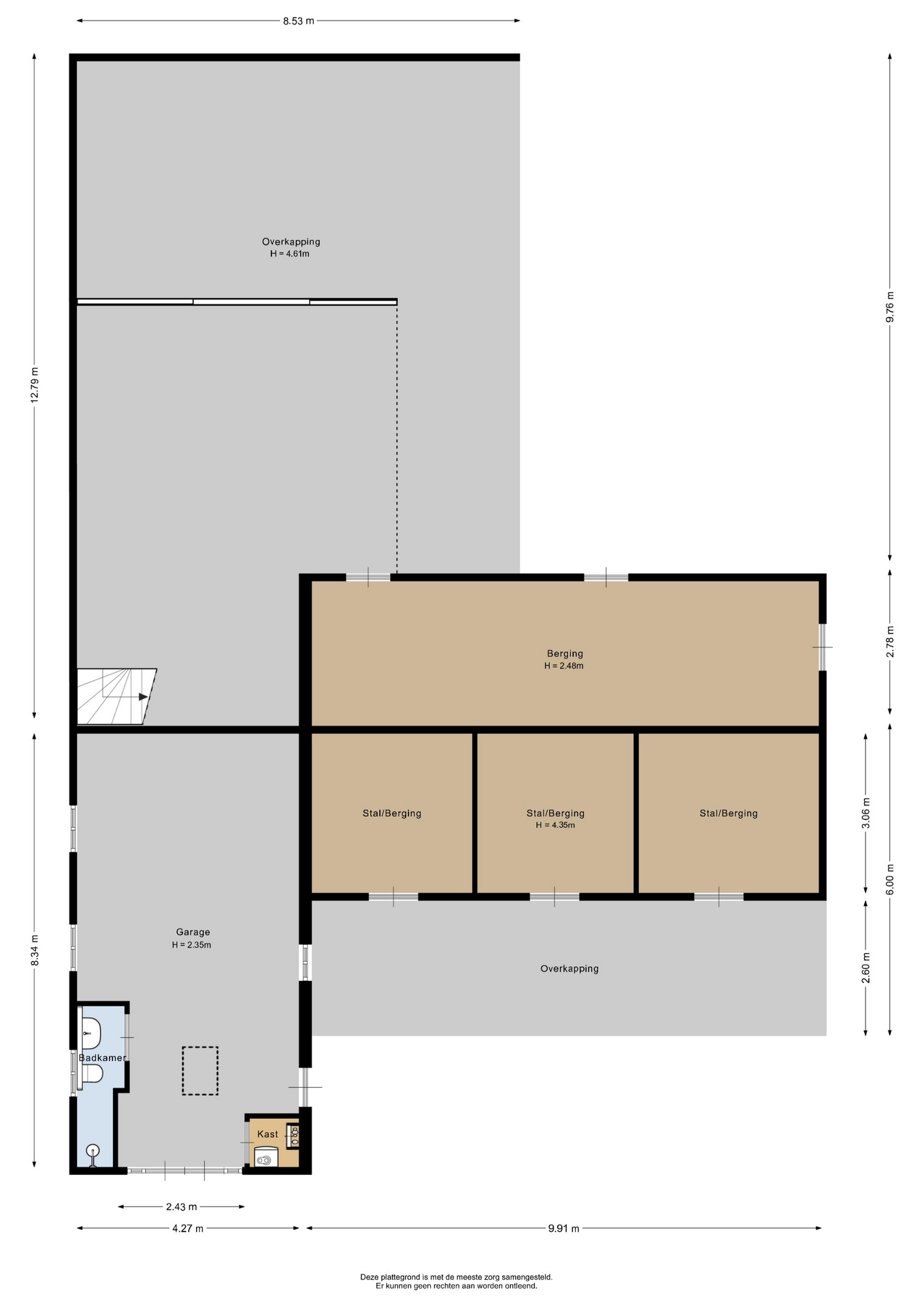
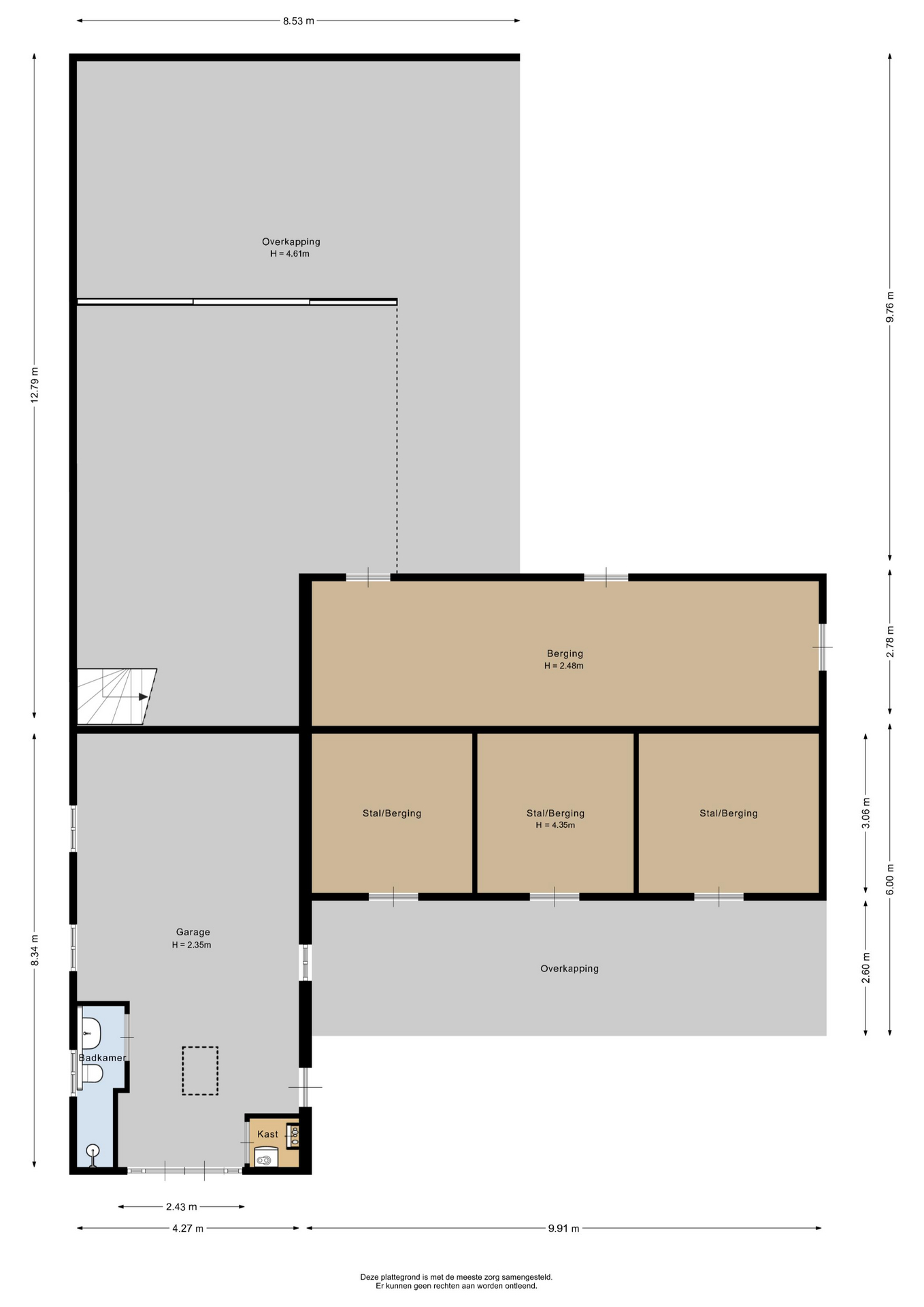
OUTBUILDINGS
Outbuilding/garage
The outbuilding is constructed of brickwork and the roof is insulated and covered with roof tiles. French doors in the front façade provide access from the garden to a pleasant space finished with a tiled floor, stucco walls and a sanded ceiling with recessed lighting. This space is ideal for use as a hobby or chill-out room. In addition, the outbuilding also has its own central heating boiler and shower room, which is equipped with a walk-in shower, toilet and washbasin. A loft ladder provides access to the storage attic. The space is currently used as a hobby room, but is of course also very suitable for various other purposes. On the right-hand side of the building are three former horse stalls. These stalls are equipped with divisible doors with an overhang at the front. The stalls are currently used as storage spaces. One of the stalls houses the inverter for the solar panels. There is a sink. The overhang at the front is spacious and can serve as a covered terrace, a wonderful place to sit. At the rear is a shed with wooden walls and a corrugated iron roof. This
space is used as a barn/storage space.
Field barn
At the rear of the garage is the field barn with an open front. The former hayloft, accessible via a sturdy fixed staircase, provides additional storage space. The field barn is very suitable as a carport, also for a camper, caravan or horse trailer.
Horse stable
The detached outdoor stable is equipped with two horse boxes, which are separated by a storage/stabling area with an open front. The stable is constructed of wood with a concrete floor and an insulated roof. The boxes have divisible doors and are currently used as extra storage space. Further back on the plot, there used to be a horse walker. The concrete foundation is still present.
GARDEN
A very spacious, beautifully landscaped garden with a covered terrace at the rear and a charming terrace at the front; perfect for enjoying both the sun and the shade. The park-like grounds are further decorated with baked clinker paths, an elegant beech hedge and an impressive, sloping lawn. The large water feature with a beautiful decking terrace and a natural wadi further down the plot create a special harmony between water, nature and architecture. The garden also offers a variety of fruit and nut trees and raspberry bushes, which attract a rich variety of wildlife and birds. The “writer's cottage” is located at the front of the garden. This unique cottage is constructed of wood with a tiled roof and vinyl flooring. A decking terrace has been laid around the cottage. This charming cottage is suitable for various purposes: a playhouse for children, a workspace or a hobby room. The practical layout, with its own back entrance on both sides of the house, guarantees optimal accessibility and privacy.
SPECIAL FEATURES
- The property is connected to gas, water, electricity, sewerage and fibre optic broadband.
- There are 28 solar panels on the roof of the outbuilding (2017).
- The house is largely equipped with underfloor heating.
- The front part of the house was built in 2001, the rear part in 2009.
- The property has its own back entrance on both sides of the house.
- The house consists of two living areas, offering plenty of possibilities for, for example, an
informal care home, blended families, a home office/practice or a guest house.
- Located on a beautiful, spacious plot of approximately 4,775 m².
- A perfect, quiet location between Brandevoort and Mierlo with all amenities and roads in the immediate
vicinity.