Baerz & Co is een landelijk samenwerkingsverband van zorgvuldig geselecteerde boutique luxury makelaars. Samen vormen wij één netwerk, met één gedeeld aanbod. De woningen die u op onze website ziet, zijn afkomstig van alle aangesloten kantoren binnen Baerz & Co. Daardoor is niet ieder object rechtstreeks door ons kantoor in verkoop, maar door een gespecialiseerde collega binnen ons netwerk. Heeft u een woning gevonden die u aanspreekt en wilt u meer informatie? Dan brengen wij u graag persoonlijk in contact met de betreffende verkoopmakelaar, zodat u direct en zorgvuldig wordt begeleid.

HARLINGEN
Industrieweg 1 A - 8861 VH
Netherlands

Sjoerd Bouma profile image
Sjoerd Bouma
Real Estate Agent
€900,000 k.k.
Living Area
229m2
Plot Size
890m2
Bedrooms
4

Description

Hotel Chique houseboat/watervilla with Garden, Garage, and Private Mooring, Energy Label A

Built in 2023, this contemporary water villa is a floating dream home, set on a private, fully owned plot of land and water. Designed and finished to exacting standards, it offers every modern comfort: sustainable construction, triple glazing, synthetic window frames, full insulation, and underfloor heating on both levels. No expense has been spared.
The generous living room boasts panoramic views across the open waterway, while the luxurious kitchen—with adjoining west-facing sundeck—makes entertaining a delight. The life-cycle proof primary suite features a private en-suite, and the lower level hosts three spacious bedrooms and a second elegant bathroom. The entire home is finished in a tasteful, hotel-chic style.
With a double garage, beautifully landscaped garden, and ample mooring for a sailing or motor yacht along the Standing Mast Route, this property offers the ultimate lifestyle for watersports enthusiasts.
Harlingen is the gateway to the Wadden Sea, just an hour from the Randstad, Harlingen offers space, serenity, culture, and nature, all wrapped in a distinctly maritime charm.

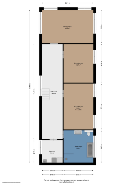
LAYOUT
Upon entering, a hall with cloakroom and guest toilet welcomes you. Industrial-style glass doors open into the expansive living room—and the view is simply breathtaking. Thanks to three large sliding doors and floor-to-ceiling windows, the connection to the water is immediate. Elevated above the lower level, the open-plan kitchen and living area provide privacy as well as stunning vistas.
The kitchen is fully equipped with a high-end Miele appliance package: an induction cooktop with integrated extractor, combi-oven, dual fridge/freezer units, dishwasher, and Quooker. Adjacent to the kitchen, the 22 m² sundeck faces west and enjoys afternoon and evening sun with unobstructed views of the Franeker Canal. At water level, there's space to moor an additional boat alongside the main berth.
To the rear of the living space lies the primary suite, complete with en-suite bathroom featuring refined relief tiling, walk-in shower, stylish vanity, and a second toilet. This floor is finished with a herringbone PVC floor, underfloor heating, and air conditioning throughout.

LOWER LEVEL
A custom-designed open staircase beside tall windows leads to the lower-level hall, where you’ll find three additional bedrooms, a second luxury bathroom, and a spacious utility room. All bedrooms benefit from generous natural light.
The bathroom exudes hotel elegance with a modern bathtub, walk-in shower, double vanity, and a third toilet. The same luxurious tiling continues here for a cohesive look.
The utility room offers all necessary connections for laundry and houses the technical installations. This level also features a herringbone PVC floor with underfloor heating.

GARAGE
Set behind the electric entry gate, the detached garage (35 m²) is insulated and equipped with an electric overhead door, separate walk-in door, and electrical outlets. Perfect for a car, workshop, and bicycle storage.
The paved driveway in front of the garage offers secure, on-site parking for two vehicles.
Garden & Water Access
The entire plot is enclosed by a stylish maritime-themed fence and an electric gate. The southeast-facing garden is professionally landscaped with mature (fruit) trees, lush lawn, and vibrant flowering borders. It's a haven for birds, from snipe to jays—there’s even a duck nesting in one of the planters by the waterside terrace.
The west-facing sundeck, accessible from the open kitchen, provides a sheltered spot to enjoy life on the water. It’s the perfect place to sit back and watch boats pass by. A spacious private berth alongside the villa accommodates a sailing or motor yacht. The location lies directly on the Standing Mast Route, with access to the open sea and the Frisian Lakes.

FEATURES
* Generous 890 m² freehold plot (land & water)
* Living area: 229 m² | Volume: 774 m³
* 4 bedrooms | 2 bathrooms
* Water villa built in 2023
* Energy label A
* Insulated 35 m² garage with electric door
* Connected to water, gas, electricity, and sewage
* Concrete hull water villa: approx. 20 x 7 metres, extremely stable
* Private mooring for yacht/sailboat on Standing Mast Route
* Designated for permanent residence

HARLINGEN
Harlingen, on the Wadden Sea, is considered Friesland’s most beautiful port town. Home to over 600 listed monuments, this historic city offers a unique blend of maritime heritage, natural beauty, vibrant cultural life, and urban amenities. Sandy beaches, charming restaurants, boutique shops, schools, and a train station are all within easy reach.

With its origins dating back to the early 13th century, Harlingen’s nautical spirit is still alive today—especially around its picturesque harbour, where international visitors and sailing enthusiasts gather each summer. Located just north of the Afsluitdijk, Amsterdam is within a one-hour drive.

DISCLAIMER
This information has been compiled with the utmost care. However, no rights can be derived from its content. This brochure is non-binding and intended as an invitation to make an offer. Viewings are by appointment only through the broker. The property is sold subject to approval and includes a non-residency clause.

Features

Air conditioning
Transfer of ownership
Asking Price
€ 900.000 k.k.
Status
beschikbaar
Acceptance
in overleg
Construction
Kind of house
Woonboot
Building type
vrijstaande woning
Construction period
2023
Energy rating
A
Roof type
plat dak
Bedrooms
4
Bathrooms
2
Surface Areas And Volume
Living Area
229 m2
Other indoor space
0 m2
Exterior space attached to the buildinge
22 m2
External storage space
35 m2
Volume in cubic meters
774 m3
Plot Size
890 m2
Facilities
Airconditioning
Schuifpui
Aan water
Vrij uitzicht
Beschutte ligging
Aan vaarwater
Baerz & Co Property Brochure

Brochure

Videos

Floor Plans

Beeuwkes Makelaardij

Van Alkemadelaan 338
2597 AS Den Haag

info@beeuwkes.nl
+31 703143000

www.beeuwkes.nl

Information / Viewing request

Sjoerd Bouma profile image
Sjoerd Bouma
Real Estate Agent

Buying a Luxury Property in Harlingen

Harlingen offers distinguished buyers a harmonious blend of heritage living, cultural charm, and waterfront elegance. The community values privacy and personal service, with international appeal grounded in authenticity and sophisticated lifestyle opportunities.