Ons kantoor is lid van Baerz & Co Luxury Homes; een internationaal platform dat exclusieve woningmakelaars met elkaar verbindt. Neem contact op met ons secretariaat voor meer informatie over het landelijke aanbod, waarvan u hieronder een selectie kunt bekijken.

HAAREN
Nieuwe Erven 12 - 5076 NP
Netherlands

Sjoerd Bouma profile image
Sjoerd Bouma
Real Estate Agent
€1,250,000 k.k.
Living Area
184m2
Plot Size
918m2
Bedrooms
5

Description

Enjoy delightful, secluded living in Haaren, bordering the countryside, with all amenities nearby. This fantastic family home features four bedrooms on one floor, a large garden with a garage, and is situated in a pleasant residential area.

General:
Living area: approx. 185 m²
Volume: approx. 845 m³
Plot size: 918 m²
Year of construction: 2016
Energy rating: A+ with 18 solar panels

Layout

Ground Floor
You enter the hall, where you'll find the meter cupboard, the toilet with a small sink, the staircase to the upper floor, and the entrance to the living room.

Upon entering, you'll be pleasantly surprised by the space this beautiful home offers. It boasts a beautiful, spacious living room with a dining area and a modern open-plan kitchen/diner.
The inviting fireplace is centrally located in the living room. The living room is sunny thanks to the large windows at the front and sliding doors at the rear, which open onto the lovely covered terrace.
The dining area is also beautifully spacious. While seated at the table, you can enjoy the view of the beautiful garden. Double patio doors in the dining room open onto the generously sized covered terrace.

The Kitchen
Cooking enthusiasts will be in their element here! This luxurious kitchen is equipped with a convenient Quooker, a steam oven and a convection oven, a refrigerator, and a dishwasher. The island has a 4-burner gas cooktop and a wok burner, and the extractor hood is integrated into the ceiling. The kitchen features a beautiful composite countertop and offers ample work and storage space thanks to the wide drawers and cabinets. It is handleless and finished in high-gloss white, which contrasts beautifully with the floor. While you're cooking, you can still enjoy the company of others at the table and not miss a thing.

The utility room extends from the kitchen.

The Utility Room
The utility room is a practical, pleasant space with connections for the washing machine and dryer, as well as a water connection for an American-style refrigerator, for example. There is a spacious built-in cupboard with sliding doors. The utility room is accessible from the kitchen. The garage and the back garden are also accessible from the utility room.

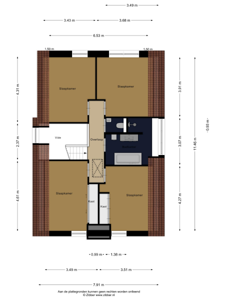
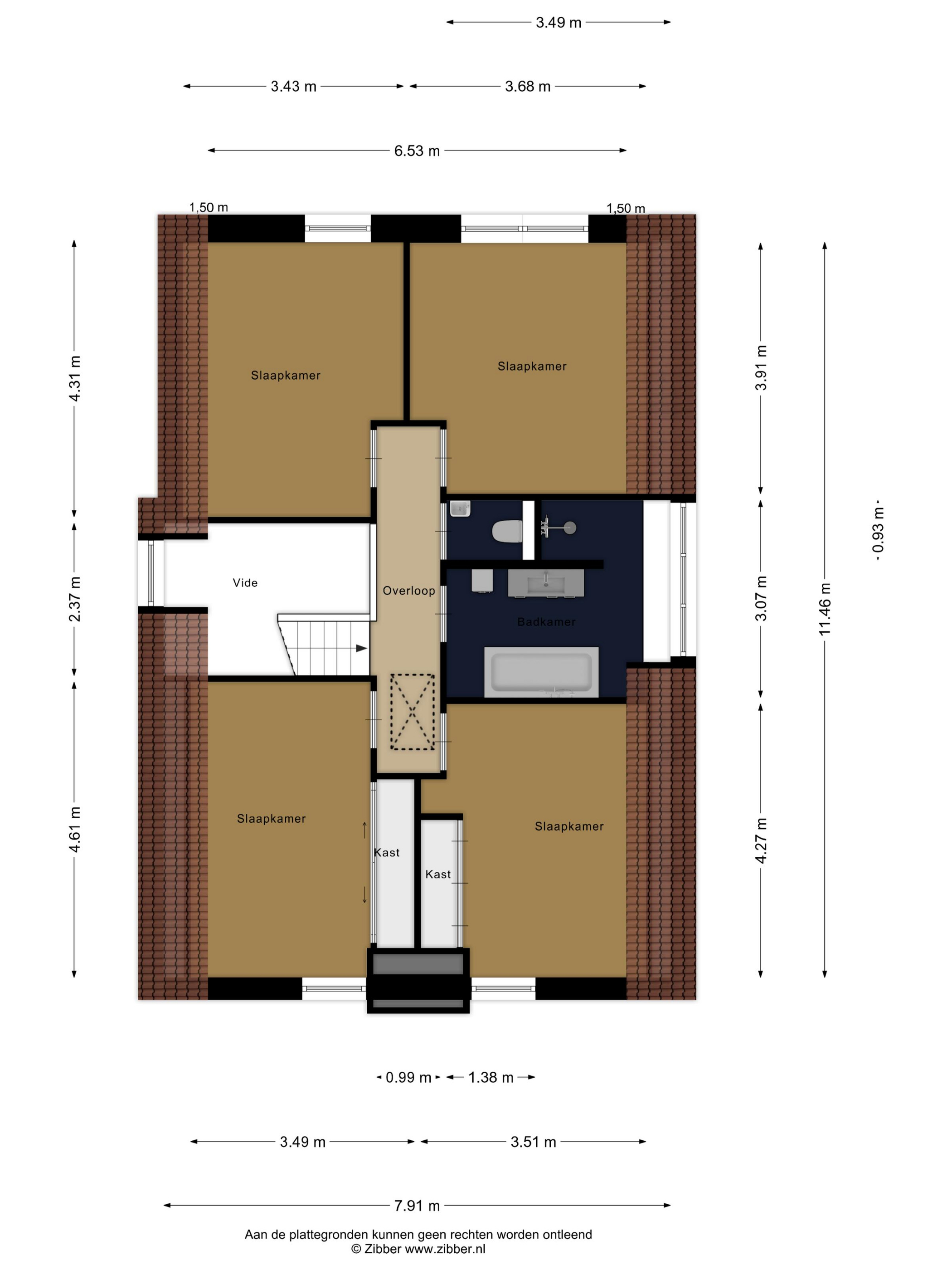
First floor
Adjacent to the landing with a mezzanine are four bedrooms, a separate toilet with a sink, and the bathroom.

How nice is it to have four bedrooms on one floor? The rooms are nicely sized, all around 15 m².

The Bathroom
The bathroom is fully equipped with a large bathtub, a spacious walk-in shower, and a double sink integrated into a vanity unit. The bathroom enjoys pleasant natural daylight thanks to the large windows. It is neatly tiled and features comfortable underfloor heating and a designer radiator.

The attic storage is accessible from the landing via a loft ladder.

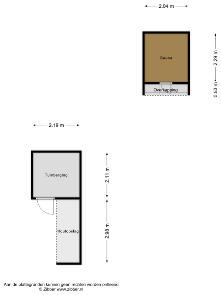
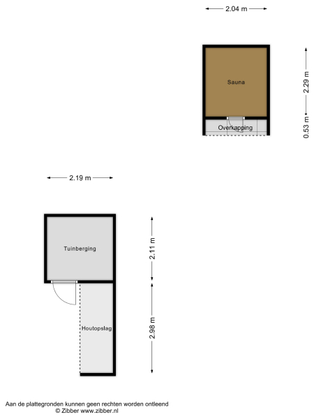
The Attic Storage
This pleasant, practical space offers space for all your non-daily necessities. The attic storage extends the entire length of the house, approximately 11.5 meters.

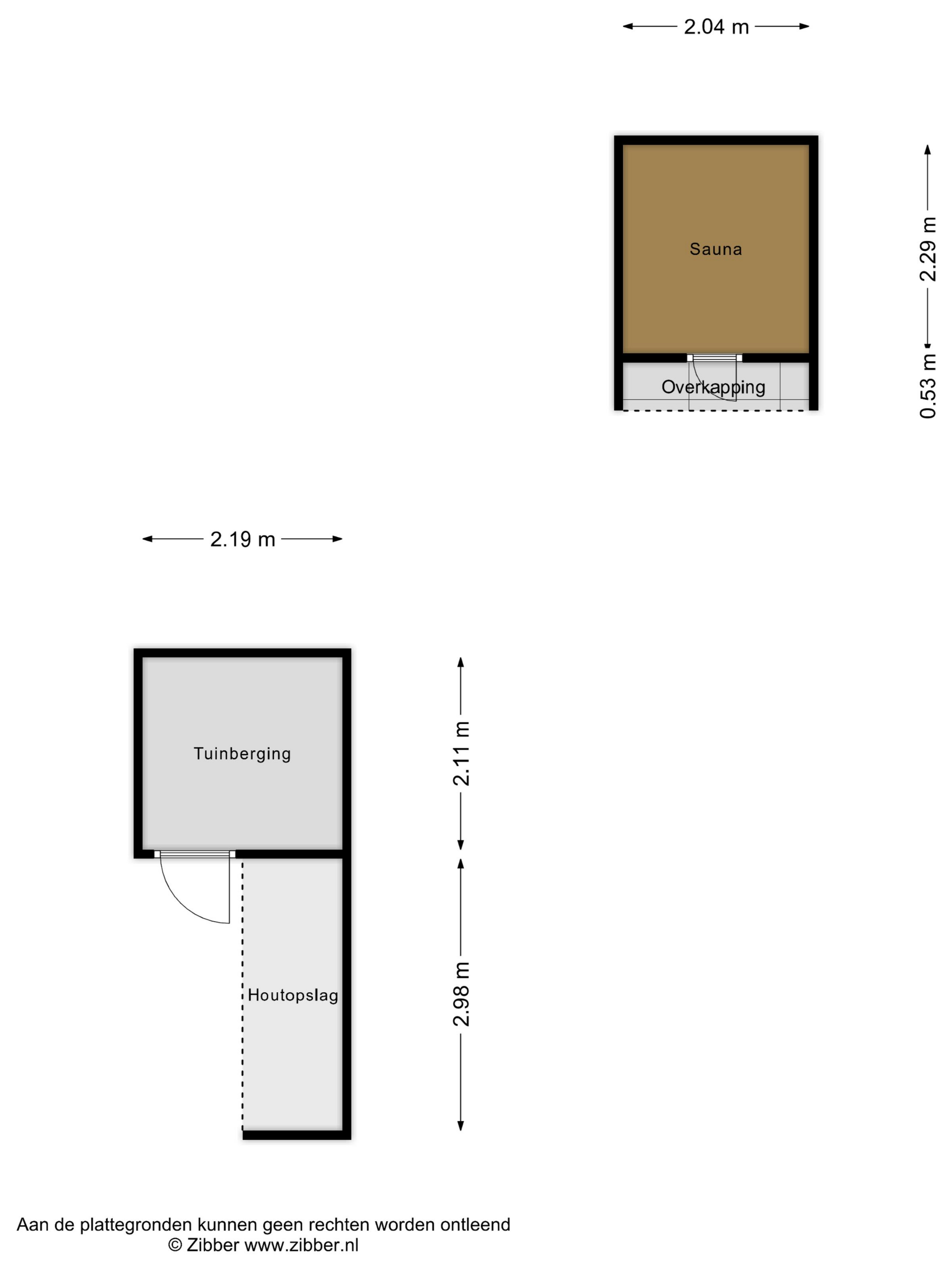
Garden with Covered Area and Garage
The garden is fantastic, offering wonderful privacy. The beautiful garden is bordered by green hedges, ensuring minimal views. A lovely lawn with a spacious sun terrace provides ample space for playing. In addition to the sun terrace, there is also a beautiful, spacious covered terrace adjacent to the rear of the house. The covered area has a large skylight, ensuring optimal daylight penetration into the living room. And then there's the unique sauna in the garden, where you can relax after a hard day's work. The front garden is also neatly landscaped and has a spacious driveway with space for 4 to 6 cars.
The garage
You can park your car in the garage with double doors. The garage is extra wide, approximately 3.85 m, and has a length of approximately 6.30 m. It is accessible from the utility room. The garage is fully insulated and equipped with electricity.

Features:
- Wonderful, private living yet within the built-up area, close to all the amenities that the charming center of Haaren has to offer.
- Four bedrooms on the first floor.
- Charming covered terrace.
- Spacious garage.
- Beautiful, private garden with a wonderful sauna.

Haaren
Haaren has approximately 6,000 inhabitants. This village with a village center and a wide range of amenities has been part of the municipality of Oisterwijk since 2021. It is a real tourist attraction. The bus stop to Oisterwijk-Tilburg and 's-Hertogenbosch is within walking distance. The Kampina nature reserve is also right on your doorstep. Just 2.5 km from the charming center of Oisterwijk, with its many terraces and restaurants, the municipality of Haaren boasts a beautiful rural area with varied landscapes and charming villages. It is also known as the "garden of Brabant." Parts of both the Loonse en Drunense Dunes National Park and the Het Groene Woud National Landscape are part of this municipality. The beautiful countryside offers several attractive cycling routes. It boasts a thriving community life and welcoming restaurants and cafes.
Curious about this fantastic, excellently maintained detached house? Call or email Marleen de Bekker of Finesse Real Estate; she'll be happy to show you. More information at: www.finesse-makelaardij.nl

This information has been compiled with due care by Finesse Real Estate. Finesse Real Estate cannot be held liable for the accuracy of this information, nor can any rights be derived from it. All stated dimensions and surface areas are for informational purposes only.

Features

Solar panels
Transfer of ownership
Asking Price
€ 1.250.000 k.k.
Status
verkocht onder voorbehoud
Acceptance
in overleg
Construction
Kind of house
Eengezinswoning
Building type
vrijstaande woning
Construction period
2016
Energy rating
A+
Roof type
zadeldak
Bedrooms
5
Bathrooms
1
Surface Areas And Volume
Living Area
184 m2
Other indoor space
44 m2
Exterior space attached to the buildinge
36 m2
External storage space
9 m2
Volume in cubic meters
844 m3
Plot Size
918 m2
Facilities
Mechanische ventilatie
Tv kabel
Rookkanaal
Schuifpui
Sauna
Glasvezel kabel
Zonnepanelen
Aan rustige weg
In woonwijk
Baerz & Co Property Brochure

Brochure

Videos

Floor Plans

Beeuwkes Makelaardij

Van Alkemadelaan 338
2597 AS Den Haag

info@beeuwkes.nl
+31 703143000

www.beeuwkes.nl

Information / Viewing request

Sjoerd Bouma profile image
Sjoerd Bouma
Real Estate Agent

Buying a Luxury Property in Haaren

Haaren offers refined living amid historic estates and wooded landscapes, appealing to those valuing privacy, community ties, and seamless access to key Dutch cities. The area attracts discerning buyers with its discreet luxury, vibrant culture, and comprehensive property services.