Ons kantoor is lid van Baerz & Co Luxury Homes; een internationaal platform dat exclusieve woningmakelaars met elkaar verbindt. Neem contact op met ons secretariaat voor meer informatie over het landelijke aanbod, waarvan u hieronder een selectie kunt bekijken.

Villa for sale in DORDRECHT

DORDRECHT Hovenlaan 10 - 3329 BB The Netherlands


Johan Oosterlee profile image
Johan Oosterlee
Real Estate Agent
+31 653723724
oosterlee@ozp-makelaars.nl

OZP Makelaars
Vissersdijk Beneden 25
3319 GW Dordrecht
NETHERLANDS
+31 786351753
www.ozp-makelaars.nl
info@ozp-makelaars.nl

Living area
195m2
Plot size
475m2
Bedrooms
4

Description

Een villa in de Hoven met fraaie extra's.

Exclusieve, fraai afgewerkte villa op een heerlijk perceel in geliefd Villapark De Hoven met een opvallende extra in de vorm van een bij de bouw van de woning aangebouwde multifunctionele ruimte op de begane grond. Dankzij deze, binnendoor en buitenom te bereiken, aanbouw kunt u hier een praktijk aan huis voeren, een super de luxe hobbyruimte of zelfs een slaapkamer met eigen badkamer realiseren. Ook aan energiezuinigheid is gedacht. De woning beschikt namelijk over maar liefst 23 zonnepanelen, een moderne CV-installatie, dak-, gevel- en vloerisolatie en HR++ beglazing.

In één van de meest geliefde woonomgevingen van Dordrecht vindt u deze riante, vrijstaande villa met maar liefst 195 m2 woonoppervlakte, gelegen op een royaal perceel van 475 m2. Een woning met stijl en comfort, voorzien van een compleet woonprogramma met naast een luxe keuken, een royale woonkamer met toegang tot de serre en multifunctionele ruimte op de begane grond. Op de verdiepingen treffen we in totaal 4 slaapkamers, een kleedkamer en een luxe badkamer. Alles straalt kwaliteit en zorg uit, van de fraai aangelegde tuin rondom tot het sfeervolle interieur met hoogwaardige afwerking. Hier woon je in rust en ruimte in het groen, met alle voorzieningen op fietsafstand.
Algemeen:
- Kadastraal bekend: gemeente Dubbeldam, sectie I, nummer 2720, groot 475 m2.
- Woonoppervlakte: ca. 195 m2 (Inhoud: ca. 935 m3). Overige inpandige ruimte: ca. 32 m2. Gebouwgebonden buitenruimte: ca. 1 m2. Externe bergruimte: ca. 6 m2.
- Energielabel A.
- Bouwjaar 2007.
- 23 PV-panelen.
- Screens op de begane grond aanwezig.
- Hordeuren in de openslaande tuindeuren aanwezig.
- De ramen op de verdiepingen zijn voorzien van rolhorren.
- Oplevering: in overleg.
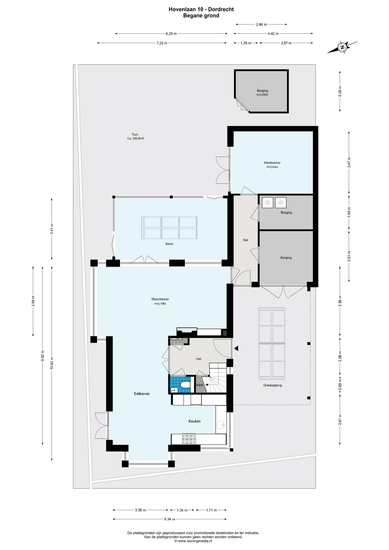
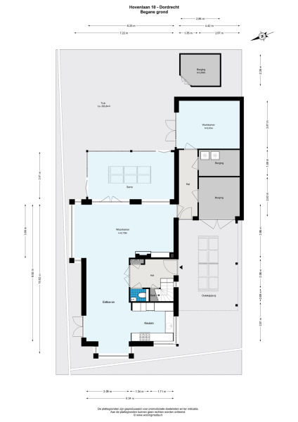
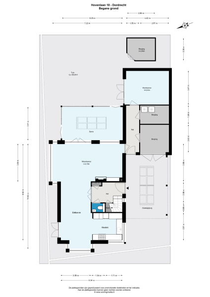
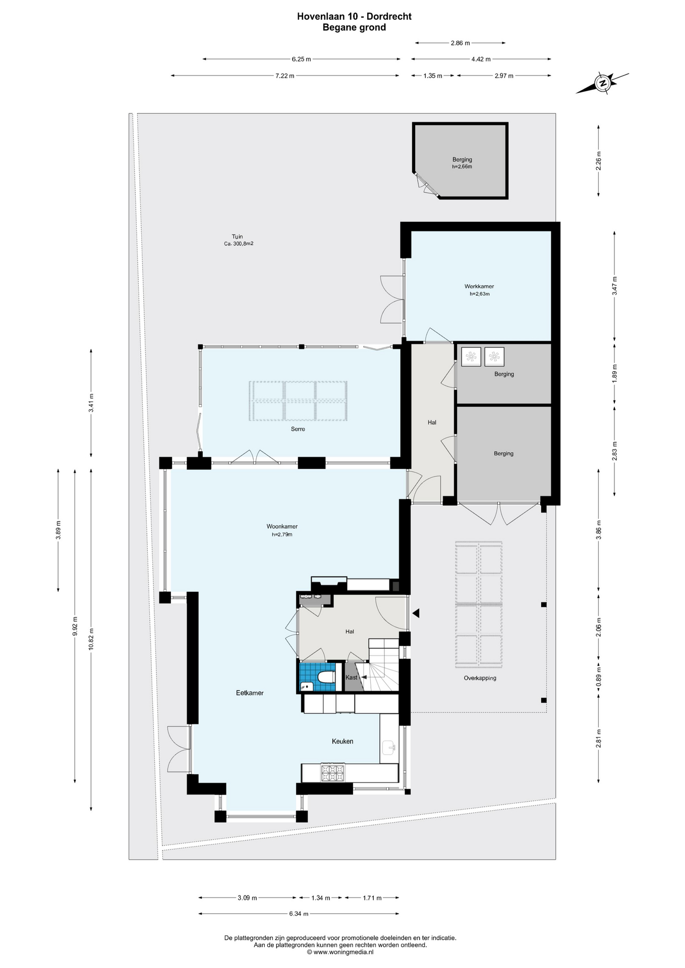
Begane grond:
Aan de royale oprit met sierpoort (inclusief carport met lichtstraat in stijl van deze villa) begint het gevoel van thuiskomen al. Er is ruimte voor meerdere auto's (de laadpaal zal achterblijven).

Entree
Via de stijlvolle entree met hoge raampartijen betreedt u de opvallend goed onderhouden woning. De ontvangsthal is ruim en licht en biedt toegang tot een luxe toiletruimte, een praktische garderobekast, de meterkast (met 14 groepen en 4 aardlekschakelaars) en een moderne trapopgang naar de verdiepingen.

Woonkamer (oppervlakte ca. 40 m2)
Via dubbele zwart stalen deuren komt u in de living, waar ruimte en sfeer naadloos samenkomen. De woonkamer is verdeeld in een eetgedeelte dat keuken met woonkamer verbindt en een zitgedeelte aan de achterzijde met sfeervolle haard, toegang tot de aanbouw en via dubbele deuren toegang tot de serre (ca. 3,41 x 6,25 m.) en tuin.

Keuken (ca. 2,81 x 6,34 m.)
De open keuken aan de voorzijde is in U-vorm opgesteld met een composiet blad en luxe inbouwapparatuur, te weten: een 5-pits gaskookplaat met rvs afzuigschouw (Siemens), een combi-oven (Siemens), een koel-/vriescombinatie (Bosch) en een vaatwasmachine (Bosch). Aan de zijkant betreedt u via dubbele deuren de zijtuin.

De hal, keuken en woonkamer zijn voorzien van een moderne antracietgrijze plavuizen vloerafwerking met vloerverwarming en gladgestucte wanden.

Zij-aanbouw
Via het zitgedeelte aan de achterzijde van de woning komt u in de zij-aanbouw. De aanbouw heeft een eigen entree aan de voorzijde van de woning en is thans verdeeld in 3 ruimtes.

Berging 1 (ca. 2,83 x 2,97 m.)
Een berging met openslaande deuren naar de oprit aan de voorzijde. Deze berging is voorzien van electra en verwarming.

Berging 2 (ca. 1,89 x 2,97 m.)
De tweede berging (op dit moment ook als berging in gebruik) is voorbereid voor een tweede badkamer met aan- en afvoer van water en toilet.

Werkkamer (ca. 3,47 x 4,42 m.)
De praktijkruimte, welke ook dienst kan doen als hobbyruimte of slaapkamer, is voorzien van een wastafelmeubel en dubbele deuren naar de tuin.

De aanbouw is (met uitzondering van de bergingen) voorzien van een plavuizen vloerafwerking met vloerverwarming.
1e verdieping:
Overloop
Rondom de lichte en centrale overloop met vide en fraaie verticale raampartijen in de zijgevel, bevinden zich de diverse vertrekken op deze verdieping.

Slaapkamer 1 (ca. 3,89 x 4,68 m.)
Slaapkamer aan de achterzijde met schuifkastenwand en airconditioning.

Badkamer (ca. 3,89 x 2,46 m.)
De badkamer is luxe uitgevoerd met fraai tegelwerk, te openen raam en kwalitatief hoogstaand sanitair (Villeroy & Boch), zoals een ligbad, een dubbele wastafel, een douchegelegenheid en een designradiator.

Toilet
Separate toiletruimte.

Kleedkamer/Inloopkast (ca. 2,27 x 1,98 m.)
Luxe inloopkast/garderoberuimte.

Slaapkamer 2 (ca. 3,88 x 2,27 m.)
Deze slaapkamer is gelegen aan de voorzijde. Via dubbele deuren is het balkon te bereiken.

Slaapkamer 3 (ca. 2,81 x 3,98 m.)
Slaapkamer aan de voorzijde.
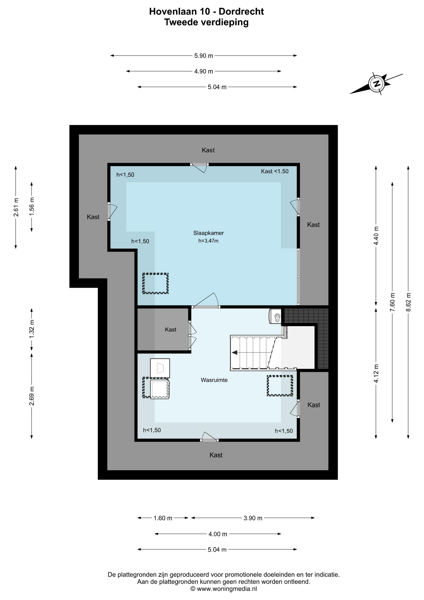
2e verdieping:
Open ruimte (ca. 4,12 x 5,04 m.)
U komt boven in een zeer royale open ruimte die is afgewerkt met een plavuizen vloerafwerking en twee dakvensters. In deze ruimte bevinden zich, naast veel bergruimte, de wasmachine en droger en de CV combiketel (Intergas HR uit 2024).

Slaapkamer 4 (ca. 4,40 x 5,04/5,90 m.)
Deze slaapkamer is op dit moment in gebruik als luxe werkruimte met dakkapel en een dakvenster.
Tuin:
De tuin is rondom en opvallend fraai en verzorgd. Het begint al met de bestrate oprit met carport en de voortuin met planten. De zij- en achtertuin zijn eveneens zeer verzorgd aangelegd met hortensia's, planten, struiken en hagen, maar ook terrassen, electra en verlichting. Als kers op de taart is er een heerlijke en royale serre aangebouwd aan de woonkamer met een glazen (te openen) wand, electra en een dak met lichtstraat.

Berging (ca. 2,26 x 2,86 m.)
Tevens bevindt zich achterin de tuin nog een vrijstaande houten berging voor het opbergen van de tuinspullen.
De vermelde oppervlakte (m²) en inhoud (m³) zijn vastgesteld conform de branche brede NVM cs meetinstructie op basis van de NEN2580:2007 NL. De informatie in deze brochure is met de nodige zorg vastgesteld. Aan deze gegevens kunnen echter geen rechten worden ontleend, alle aansprakelijkheid van OZP-makelaars is derhalve uitgesloten. Voorts zijn wijzigingen voorbehouden.

Features

Transfer of ownership
price
€ 1.095.000 k.k.
Status
onder bod
Acceptance
in overleg
Construction
Kind of house
Villa
Building type
vrijstaande woning
Construction period
2007
Energy rating
A
Roof type
samengesteld dak
Bedrooms
4
Bathrooms
1
Surface Areas And Volume
Living area
195 m2
Other indoor space
32 m2
Exterior space attached to the building
1 m2
External storage space
6 m2
Volume in cubic meters
935 m3
Plot size
475 m2
facilities
Mechanische ventilatie
Airconditioning
Zonnepanelen
In woonwijk
Baerz & Co Property Brochure

Brochure

Information / Viewing request

Videos

Photos

Floor Plans