Baerz & Co is een landelijk samenwerkingsverband van zorgvuldig geselecteerde boutique luxury makelaars. Samen vormen wij één netwerk, met één gedeeld aanbod. De woningen die u op onze website ziet, zijn afkomstig van alle aangesloten kantoren binnen Baerz & Co. Daardoor is niet ieder object rechtstreeks door ons kantoor in verkoop, maar door een gespecialiseerde collega binnen ons netwerk. Heeft u een woning gevonden die u aanspreekt en wilt u meer informatie? Dan brengen wij u graag persoonlijk in contact met de betreffende verkoopmakelaar, zodat u direct en zorgvuldig wordt begeleid.

DELFT
Druivenmuur 11 - 2614 SR
Netherlands

Sjoerd Bouma profile image
Sjoerd Bouma
Real Estate Agent
€1,025,000 k.k.
Living Area
182m2
Plot Size
253m2
Bedrooms
5

Description

In een kindvriendelijke en geliefde straat bevindt zich deze royale twee-onder-een-kapwoning met een woonoppervlakte van maar liefst 182 m², een heerlijke zonnige tuin op het zuiden en een oprit op eigen terrein.

De ligging is bijzonder aantrekkelijk: een gezellige straat met voortuinen waar buren elkaar ontmoeten en waar kinderen veilig kunnen spelen in het midden van het hofje. De binnenstad van Delft en het station zijn binnen circa 8 minuten fietsen bereikbaar. Basisscholen, middelbare scholen en kinderopvang bevinden zich in de directe omgeving in Den Hoorn en Delft en ook de uitvalswegen zijn uitstekend bereikbaar.

De woning is modern en duurzaam uitgevoerd. Het dak is voorzien van zonnepanelen en de woning is aangesloten op het stadsverwarmingssysteem van Delft. Hierdoor is de woning volledig gasvrij, energiezuinig en helemaal klaar voor de toekomst.

Van deze woning is een unieke woningwebsite beschikbaar. Download op Funda de brochure voor de link naar de website met meer informatie en aanvullende foto’s.

De indeling is als volgt:

Begane grond
Royale, verzorgde voortuin met o.a. parkeergelegenheid, groen en een zonnig terras waar je net als in de achtertuin ook heerlijk kunt genieten tot zonsondergang.

Entree van de woning met allereerst de ruime hal, moderne toiletruimte met wandcloset en fonteintje, meterkast en een praktische inloopkast.

Bij binnenkomst in de woonkamer bevindt zich aan de voorzijde van het huis de ruime open keuken. De keuken is voorzien van een spoeleiland, veel kastruimte en diverse inbouwapparatuur. Via de schuifpui heb je direct toegang tot het terras in de voortuin – een heerlijke plek voor een kop koffie of een drankje in de zon.

Aan de achterzijde is de woning uitgebouwd en bevindt zich het zit-/woongedeelte met zicht op de achtertuin die met een vlonder grenst aan het water. De woonkamer is breed en door de uitbouw veel dieper dan gebruikelijk en biedt daardoor ruimte voor een royale, riante zithoek.
De achtertuin is gesitueerd op het zuiden en is daardoor heel zonnig. Deze tuin beschikt over een groot terras, een houten berging en een steiger aan het water. Kinderen kunnen hier met een bootje varen en in de zomer stap je hier zó vanuit je eigen tuin op je supboard! De tuin is tevens bereikbaar via de achterom langs de woning naar de straatzijde. Ideaal voor containers en om met de fiets de berging te kunnen bereiken.

Eerste verdieping
Via het ruime en lichte trappenhuis bereik je de eerste verdieping met een royale overloop die toegang geeft tot drie (van oorsprong vier) slaapkamers.

Aan de achterzijde bevinden zich twee van de slaapkamers. Aan de voorzijde is er een brede ouderslaapkamer met aansluitend een walk-in closet. Dit waren voorheen twee aparte kamers die vanuit de nieuwbouw direct met elkaar in verbinding zijn gebracht. Centraal op deze verdieping bevindt zich de ruime badkamer, voorzien van een inloopdouche, ligbad, een breed wastafelmeubel en designradiator. Er is op deze verdieping een separate tweede toiletruimte.

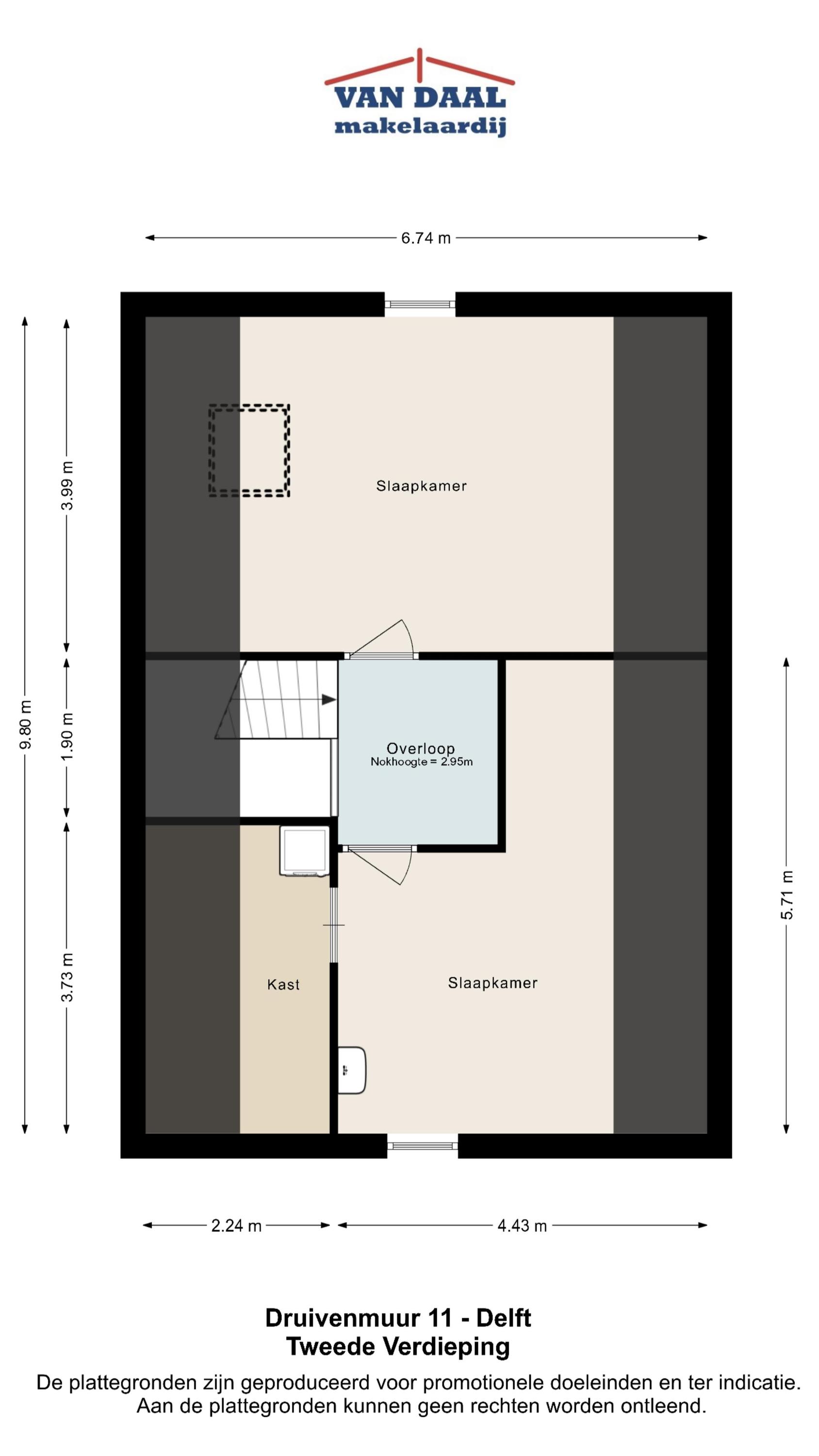
Tweede verdieping
Overloop, twee slaapkamers, waarvan de slaapkamer aan de voorzijde is voorzien van een wastafel en tevens een semi-open ruimte heeft die in gebruik is als praktische berging. Hier bevindt zich tevens de aansluiting voor de wasmachine en de droger. De slaapkamer aan de achterzijde is eveneens heel ruim en deze heeft een extra dakvenster.

Bijzonderheden/kenmerken:
- Zeer comfortabel familiehuis;
- Ideaal voor een groot gezin met behoefte aan 5 en/of (in potentie) 6 slaapkamers;
- Verwarming en warm water door middel van stadsverwarming;
- Kunststof kozijnen met HR++ beglazing;
- Energielabel A;
- Er zijn 10 zonnepanelen;
- Perceelgrootte 253 m² (eigen grond);
- Bouwjaar 2016;
- Woonoppervlakte circa 182 m²;
- Oplevering in overleg.

Features

Solar panels
Transfer of ownership
Asking Price
€ 1.025.000 k.k.
Status
beschikbaar
Acceptance
in overleg
Construction
Kind of house
Herenhuis
Building type
twee onder een kapwoning
Construction period
2016
Energy rating
A
Roof type
zadeldak
Bedrooms
5
Bathrooms
1
Surface Areas And Volume
Living Area
182 m2
Other indoor space
0 m2
External storage space
8 m2
Volume in cubic meters
418 m3
Plot Size
253 m2
Facilities
Rolluiken
Buitenzonwering
Zonnepanelen
Balansventilatie
Aan water
Aan rustige weg
In woonwijk
Baerz & Co Property Brochure

Brochure

Videos

Beeuwkes Makelaardij

Van Alkemadelaan 338
2597 AS Den Haag

info@beeuwkes.nl
+31 703143000

www.beeuwkes.nl

Information / Viewing request

Sjoerd Bouma profile image
Sjoerd Bouma
Real Estate Agent

Buying a Luxury Property in Delft

Delft is renowned for its artistic legacy, refined lifestyle, and world-class urbanism. The community draws sophisticated residents and investors, offering bespoke residences, access to elite services, and thriving international connections.