Baerz & Co is een landelijk samenwerkingsverband van zorgvuldig geselecteerde boutique luxury makelaars. Samen vormen wij één netwerk, met één gedeeld aanbod. De woningen die u op onze website ziet, zijn afkomstig van alle aangesloten kantoren binnen Baerz & Co. Daardoor is niet ieder object rechtstreeks door ons kantoor in verkoop, maar door een gespecialiseerde collega binnen ons netwerk. Heeft u een woning gevonden die u aanspreekt en wilt u meer informatie? Dan brengen wij u graag persoonlijk in contact met de betreffende verkoopmakelaar, zodat u direct en zorgvuldig wordt begeleid.

BREDA
Kasteelplein 63 - 4811 XC
Netherlands

Sjoerd Bouma profile image
Sjoerd Bouma
Real Estate Agent
€895,000 k.k.
Living Area
155m2
Plot Size
N/A
Bedrooms
2

Description

This fantastic loft apartment is located on the top floor of the monumental building complex 'Justinus van Nassau'. 'Justinus van Nassau' has a rich history dating back to around 1560. Around the year 2000, this beautiful historical building was transformed into a unique residential complex in the heart of the city. This apartment has a unique character due to its location under the monumental roof. The atmosphere is unparalleled; a spacious effect is achieved through the 'open' layout and the high monumental roof structure, which remains visible throughout the apartment.

The location is excellent, directly at Valkenberg and within walking distance of the station. The Grote Markt is just around the corner.

You can park in your own parking space, and there is a spacious storage room in the basement.

GROUND FLOOR
The entrance for residents and visitors is located at Kasteelplein. Here you’ll find the intercom panel with a video phone and access to the stairwell and elevator. From here, you also have access to the parking garage and the charming inner courtyard of the complex.

SECOND FLOOR
HALL/ENTRANCE
You enter the apartment via the L-shaped hallway, which gives access to the various rooms. In this hallway, you will find the meter cupboard (8 groups and an earth leakage circuit breaker) and the following rooms:

TOILET
A toilet room with a wall-mounted toilet, built-in reservoir, and a small washbasin.

LIVING ROOM
An exceptionally spacious living room (approx. 60 m²) with an open kitchen. The spatial experience is unique, due to the visible high roof structure and the large glass wall at the rear, which offers a fantastic view of the Grote Kerk (Great Church) of Breda.

You also have access to the open kitchen, and via a staircase, you can access the mezzanine.

KITCHEN
The open kitchen is located at the front of the apartment (overlooking Kasteelplein and Valkenberg). The modular layout consists of various elements, including a unit with a wide gas stove with a stainless steel extractor hood, a convection oven, and a dishwasher at eye level. Additionally, there is an island with a deep stainless steel countertop with one and a half sinks, as well as under-cabinet storage and drawers.

BEDROOM
The bedroom and bathroom are located on the other side of the aforementioned hallway. The spacious sleeping area (approx. 55 m² in total) is situated on the side of Kasteelplein. Even in the bedroom, you have a full view of the preserved monumental roof. This room also includes two very large walk-in closets.

BATHROOM
The bathroom is located at the front of the sleeping area. The luxurious setup includes a freestanding bathtub with a designer faucet, a shower with natural stone walls and a designer faucet, and two washbasins with wall-mounted faucets.

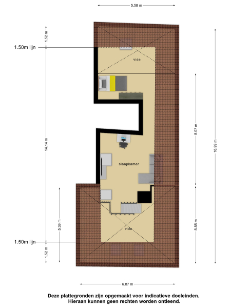
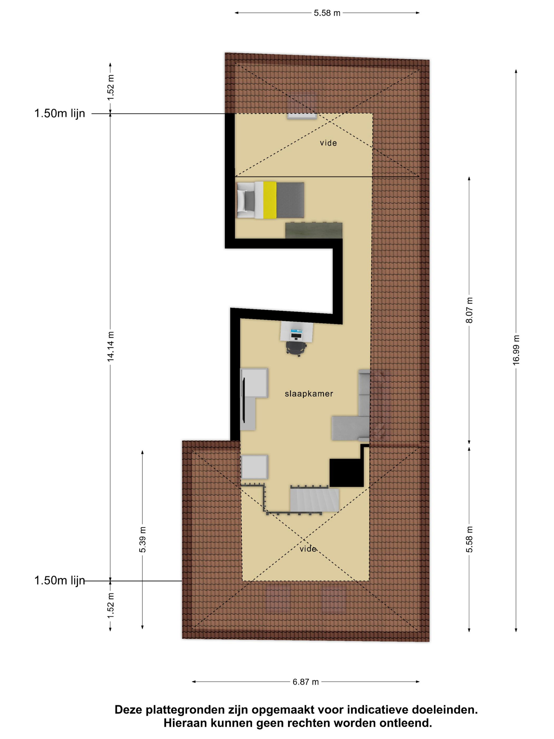
THIRD FLOOR
The mezzanine (approx. 40 m² of floor space) is accessible via an open staircase from the living room. This space can be used as an office, TV room, or hobby room, but is also excellent for use as an extra bedroom.

GARDEN
COMMUNAL INNER GARDEN
The charming communal inner garden is exclusively for the use of residents and offers a very quiet and uniquely located private terrace in the middle of the bustling city center!

STORAGE ROOM
The storage room (approx. 2.30 x 2.70 m) is located in the basement of the complex.

PARKING
Parking is fully automated via a car lift, and this apartment includes one parking space.

WHAT YOU NEED TO KNOW FURTHER

The apartment features a unique and monumental roof structure with a maximum height of approximately 6 meters.
Since it is a national monument, an energy label does not apply; the provisions on page 42 are not applicable.
The open layout creates a spatial effect with surprisingly much natural light.
The entire apartment has beautiful cast floors.
Justinus van Nassau was one of the natural sons of William of Orange. The building, whose history dates back to around 1500, is surrounded by historical buildings that have played a prominent role in the history of the Netherlands. The current U-shape of the building was created around 1550 by merging two 'court houses'. In 1790, the building was given its present Louis XVI style, and around 2001 it was completely renovated into twelve charming apartments with a communal inner garden.
As a resident of 'Justinus van Nassau,' you will enjoy magnificent views of numerous historical buildings that not only played a prominent role in the history of Breda but also in the history of the Netherlands.
VVE (Homeowners Association)
As the owner of an apartment, you are automatically a member of the VVE. The contribution for this is €314.98 per month for the apartment and €125.03 for the parking space. The VVE documents are available and can be requested through the real estate agent.

Features

Transfer of ownership
Asking Price
€ 895.000 k.k.
Status
beschikbaar
Acceptance
in overleg
Construction
Kind of house
Portiekflat
Building type
appartement
Construction period
1560
Roof type
samengesteld dak
Bedrooms
2
Bathrooms
1
Surface Areas And Volume
Living Area
155 m2
Other indoor space
0 m2
External storage space
6 m2
Volume in cubic meters
511 m3
Facilities
Mechanische ventilatie
Tv kabel
Lift
Dakraam
Aan park
In centrum
Vrij uitzicht
Baerz & Co Property Brochure

Brochure

Videos

Floor Plans

Beeuwkes Makelaardij

Van Alkemadelaan 338
2597 AS Den Haag

info@beeuwkes.nl
+31 703143000

www.beeuwkes.nl

Information / Viewing request

Sjoerd Bouma profile image
Sjoerd Bouma
Real Estate Agent

Buying a Luxury Property in Breda

Breda attracts a discerning international community with its elegant residences, sophisticated lifestyle, and attentive property services. The city’s blend of rich heritage and modern amenities ensures lasting appeal for those seeking refined living in a vibrant Dutch setting.