Ons kantoor is lid van Baerz & Co Luxury Homes; een internationaal platform dat exclusieve woningmakelaars met elkaar verbindt. Neem contact op met ons secretariaat voor meer informatie over het landelijke aanbod, waarvan u hieronder een selectie kunt bekijken.

BERGSCHENHOEK
Van Ruysdaellaan 60 - 2661 SE
Netherlands

Dominique Blom profile image
Dominique Blom
Register Makelaar Taxateur
€800,000 k.k.
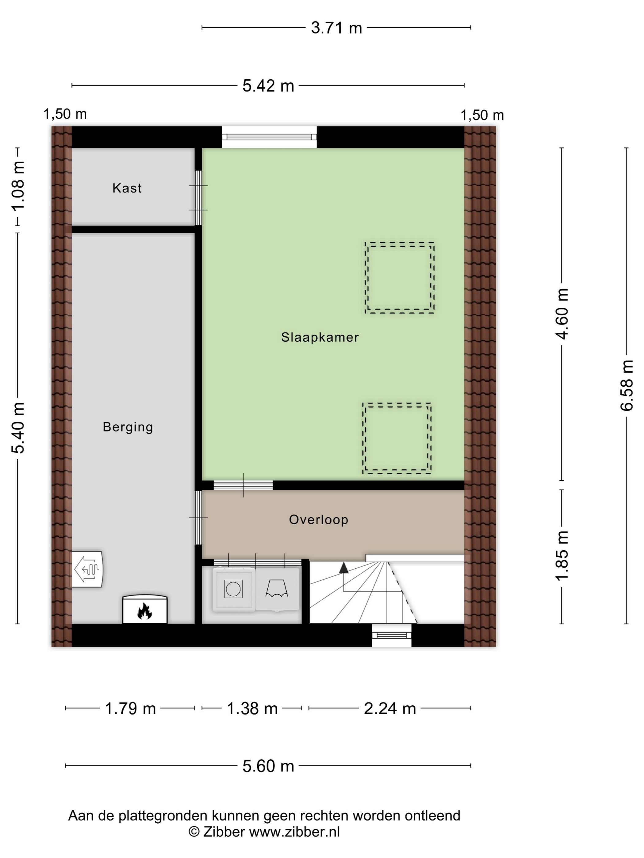
Living Area
186m2
Plot Size
344m2
Bedrooms
4

Description

This semi-detached house Bergschenhoek offers 186 m² of considered living space in a tranquil neighbourhood, ideal for those seeking a refined family setting. The property balances spacious interiors and generous outdoor areas—a private driveway, insulated garage, and a southwest-facing garden on a 344 m² plot, conceived for privacy and relaxation.

Light defines the experience here: broad windows, two skylights, and a strikingly bright living room. Four bedrooms provide flexibility for family, work, or retreat. The kitchen is appointed with a granite countertop and integrated appliances, complementing a solid wood floor throughout the ground level. On upper levels, stylish laminate echoes the home's practical elegance.

Sustainable features include 10 solar panels, a solar water heater, and high-grade insulation. Modern comforts such as air conditioning, mechanical ventilation, and a fiber-optic connection enhance daily rhythm. Each bedroom offers built-in storage, the main suite with a walk-in closet.

Within walking distance are schools, childcare, Bergschenhoek’s vibrant centre, and excellent connections to transport and major roads. This luxury semi-detached house for sale in Bergschenhoek is a calm, adaptable home for those who value timeless quality and understated design.

Explore Bergschenhoek with Baerz, Your Trusted Personal Property Finder & Advisor

Navigating the upper tier of Bergschenhoek’s real estate market requires expertise, local intelligence, and trusted networks. A seasoned advisor facilitates discreet access to exclusive listings and negotiates intricate terms with market fluency. Their nuanced understanding is critical when evaluating bespoke builds, renovation potential, and community dynamics. Advisory insight also ensures seamless coordination across legal, technical, and financial dimensions, streamlining even the most complex acquisitions.

Special Features

Solar panels
Air conditioning

Features

Transfer of ownership
Asking Price
€ 800.000 k.k.
Status
onder bod
Acceptance
in overleg
Construction
Kind of house
Eengezinswoning
Building type
twee onder een kapwoning
Construction period
1997
Energy rating
A
Roof type
tentdak
Bedrooms
4
Bathrooms
1
Surface Areas And Volume
Living Area
186 m2
Other indoor space
19 m2
Exterior space attached to the buildinge
1 m2
Volume in cubic meters
726 m3
Plot Size
344 m2
Facilities
Mechanische ventilatie
Airconditioning
Dakraam
Glasvezel kabel
Zonnepanelen
In woonwijk
Baerz & Co Property Brochure

Brochure

Videos

Floor Plans

DB Makelaars

Dorpsstraat 79
2661 CE Bergschenhoek

dominique@dbmakelaars.nl
+31 107850833

www.dbmakelaars.nl

Information / Viewing request

Dominique Blom profile image
Dominique Blom
Register Makelaar Taxateur