Baerz & Co is een landelijk samenwerkingsverband van zorgvuldig geselecteerde boutique luxury makelaars. Samen vormen wij één netwerk, met één gedeeld aanbod. De woningen die u op onze website ziet, zijn afkomstig van alle aangesloten kantoren binnen Baerz & Co. Daardoor is niet ieder object rechtstreeks door ons kantoor in verkoop, maar door een gespecialiseerde collega binnen ons netwerk. Heeft u een woning gevonden die u aanspreekt en wilt u meer informatie? Dan brengen wij u graag persoonlijk in contact met de betreffende verkoopmakelaar, zodat u direct en zorgvuldig wordt begeleid.

BERGSCHENHOEK
Dudokplantsoen 12 - 2662 EL
Netherlands

€835,000
Living Area
174m2
Plot Size
209m2
Bedrooms
5

Description

Are you looking for a move-in ready family home in a quiet yet central location? Then this property in Parkzoom 4 is exactly what you’re looking for!

This beautifully maintained and fully finished family home is located in a pleasant, quiet area in the popular Parkzoom 4 neighborhood, right on the border of Bergschenhoek and Berkel en Rodenrijs.

The property features a modern open kitchen and bathroom, five spacious bedrooms, and a private driveway with space for two cars. From the kitchen window, you have a direct view of the large playground in front of the house—ideal for families with young children. The street itself is car-free, contributing to a safe and peaceful living environment.

In the immediate vicinity, you will find various schools, daycare centers, the Annie M.G. Schmidt Park with facilities such as swimming pool De Windas and the nature playground “Tuin van Floddertje.” The charming centers of both Bergschenhoek and Berkel en Rodenrijs are less than a 5-minute bike ride away. Thanks to its convenient location, major cities are also easily accessible via public transport (bus and RandstadRail) and main roads (A12, A13, A16, N209, and N472).

In short, a fantastic home for a family with young children!

Layout

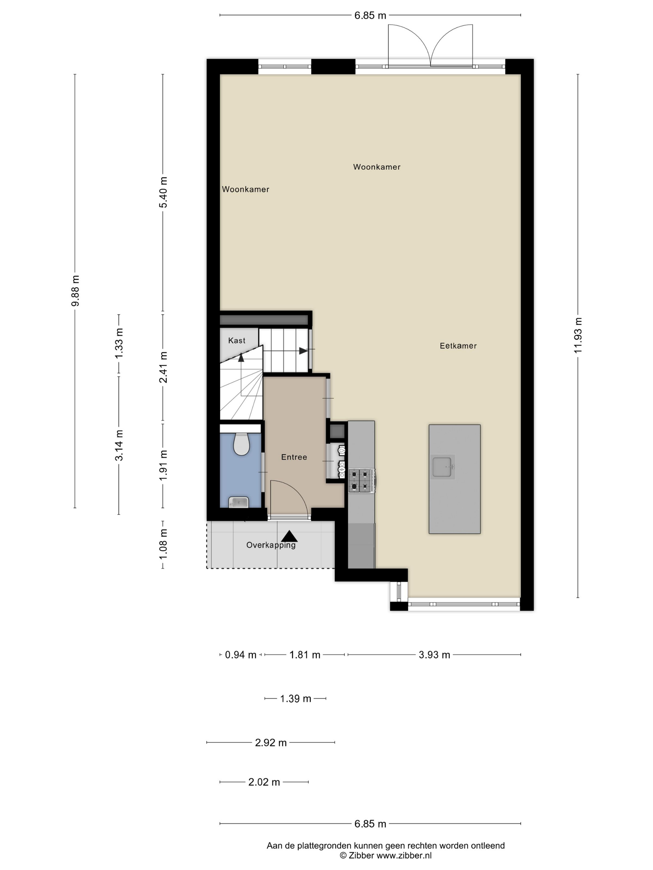
Ground floor:
Front garden with space to park 2 cars.
Entrance hall with toilet, meter cupboard, staircase to the first floor, and access to the living room.

The spacious and bright living room is located at the rear and features French doors with glazing bars, creating a charming view and direct access to the backyard. Additional storage space is available in the practical under-stairs cupboard.

At the front of the house, you’ll find the luxurious open kitchen, equipped with a large sink island, a five-burner gas stove, double (Boretti) oven, extractor hood, dishwasher, tall pantry cabinet, fridge/freezer combination, and a cozy coffee bar. The windows are fitted with screens and insect screens, ideal for summer days.

The entire ground floor is finished with tiles and equipped with comfortable underfloor heating.

Garden:
The well-maintained backyard, with rear access, is northeast-facing.
At the back of the garden, there is a spacious covered area with a storage shed—the perfect place to sit outside until late in the evening, even in less favorable weather.

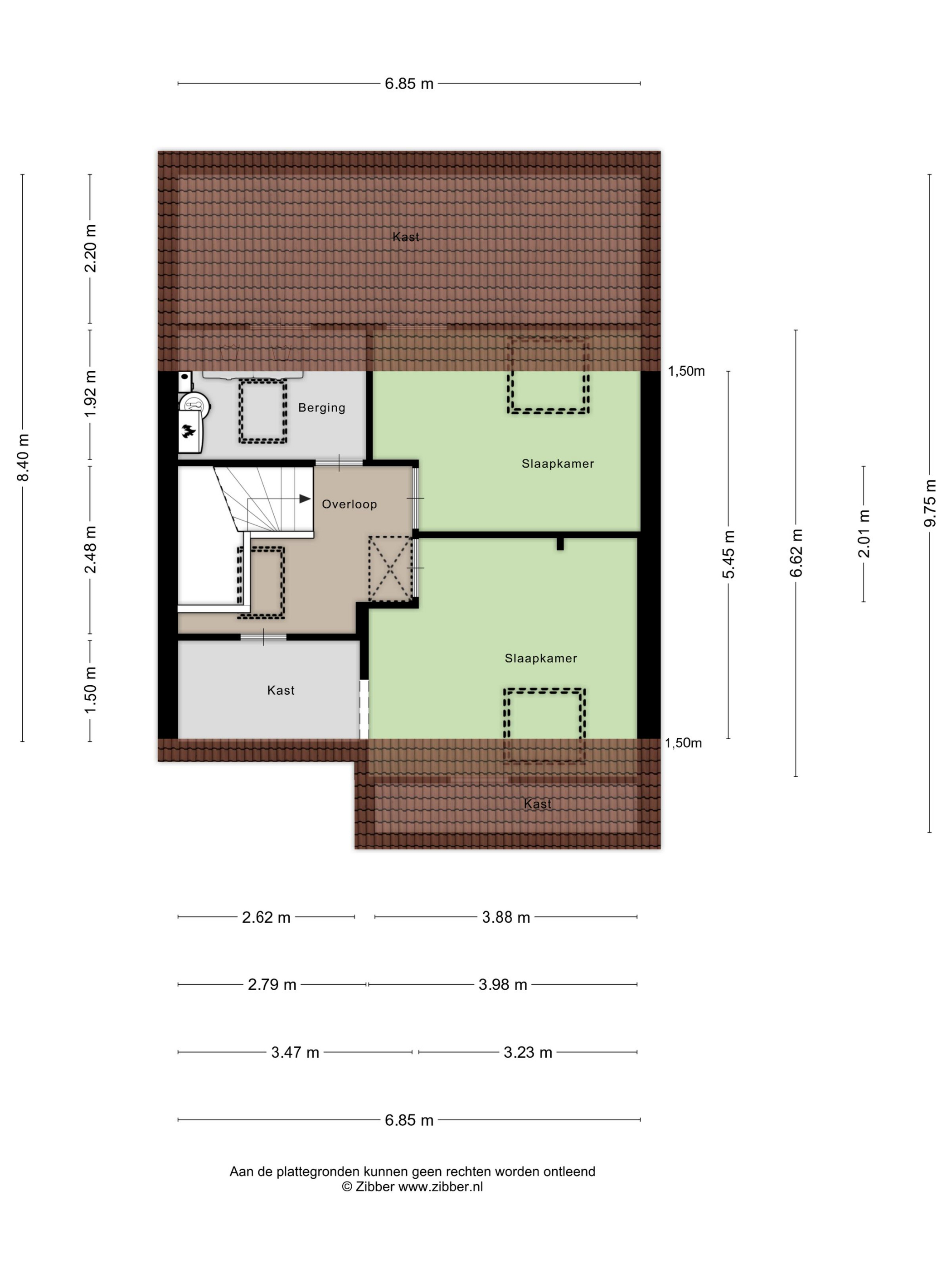
First floor:
Spacious landing with access to 3 bedrooms, the bathroom, and stairs to the second floor.
Bedroom 1 (master bedroom) is located at the front and features a French balcony and electric shutters. There is also ample space for wardrobes.
Bedrooms 2 and 3 are located at the rear, both equipped with electric shutters and insect screens.

The modern bathroom is stylishly designed and includes a large walk-in shower, double sink, and a second toilet.

Second floor:
This floor offers two additional spacious bedrooms at the front and rear of the house.
There is also a separate laundry room with space for the central heating system and connections for a washing machine and dryer. Additional storage space has been created behind the knee walls, and a loft is accessible via a hatch with a pull-down ladder for even more storage.

Special features:
Built in 2015
Modern and very well-maintained home
Quiet location in a child-friendly neighborhood
All amenities such as shops, schools, and sports facilities nearby
Transfer date in consultation, in accordance with the List of Fixtures and Fittings

We warmly invite you to come and view this spacious and modern home for yourself.

All information provided should be regarded as an invitation to make an offer or to enter into negotiations. The texts and impressions are intended to give a good impression of the property. Although the greatest care has been taken in compiling this information, all details are explicitly subject to change. No rights can be derived from this information.

Purchase agreement only valid after signing:
A verbal agreement between a private seller and a private buyer is not legally binding. In other words: there is no purchase. A legally valid agreement only exists once both parties have signed the purchase contract. This follows from Article 7:2 of the Dutch Civil Code. Confirmation of a verbal agreement by email or a draft purchase agreement is not considered a signed contract.

Measurement clause explanation:
The property has been measured in accordance with the industry-wide Measurement Instruction (BBMI). This instruction is intended to provide a more uniform method of measuring to indicate usable floor area. However, it does not completely eliminate differences in measurement outcomes due to interpretation differences, rounding, or practical limitations during measurement.

We act as the seller’s agent. We advise you to bring your own real estate agent to represent your interests when purchasing your future home!

Features

Solar panels
Alarm system
Transfer of ownership
Asking Price
€ 835.000
Status
beschikbaar
Acceptance
in overleg
Construction
Kind of house
Herenhuis
Building type
geschakelde twee onder een kapwoning
Construction period
2015
Energy rating
A
Roof type
zadeldak
Bedrooms
5
Bathrooms
1
Surface Areas And Volume
Living Area
174 m2
Other indoor space
2 m2
Exterior space attached to the buildinge
5 m2
External storage space
6 m2
Volume in cubic meters
620 m3
Plot Size
209 m2
Facilities
Mechanische ventilatie
Alarminstallatie
Rolluiken
Frans balkon
Dakraam
Zonnepanelen
In centrum
In woonwijk
Baerz & Co Property Brochure

Brochure

Floor Plans

Beeuwkes Makelaardij

Van Alkemadelaan 338
2597 AS Den Haag

info@beeuwkes.nl
+31 703143000

www.beeuwkes.nl

Information / Viewing request

Sjoerd Bouma profile image
Sjoerd Bouma
Real Estate Agent

Buying a Luxury Property in Bergschenhoek

Bergschenhoek offers a refined community with tailored services, verdant landscapes, and internationally minded sensibilities, presenting an ideal setting for those pursuing sophisticated living and enduring value.