Ons kantoor is lid van Baerz & Co Luxury Homes; een internationaal platform dat exclusieve woningmakelaars met elkaar verbindt. Neem contact op met ons secretariaat voor meer informatie over het landelijke aanbod, waarvan u hieronder een selectie kunt bekijken.

Tussenverdieping for sale in AMSTERDAM

AMSTERDAM Westerdoksdijk 491 - 1013 BX The Netherlands


Sander Bovenkerk profile image
Sander Bovenkerk
Real Estate Agent
+31 6 55 74 61 72
info@heerenmakelaars.nl

Heeren Makelaars
Stadionweg 75
1077 SE Amsterdam
NETHERLANDS
+31 0204702255
www.heerenmakelaars.nl
info@heerenmakelaars.nl

Living area
164m2
Plot size
N/A
Bedrooms
3

Description

Westerdoksdijk 491, 1013 BX Amsterdam

Enjoy breathtaking daily views over the IJ from this spacious 4-room apartment measuring a spacious 164 m², located on the highly sought-after Westerdokseiland. With a sunny west-facing terrace of 14 m², a luxurious open kitchen, three bedrooms, and a smart, functional layout, this apartment offers everything for comfortable and stylish living in the heart of Amsterdam. A private storage unit and the option to purchase a private parking space in the underground garage complete the package.

Location / Accessibility

This apartment is situated on the modern Westerdokseiland, a unique residential area on the edge of the Jordaan and the historic city center. Here, you enjoy the best of both worlds: the vibrant energy of the city combined with the peace and space of waterfront living. Within just a few minutes’ walk, you’ll reach Central Station, Haarlemmerstraat, the canal belt, or the charming Prinseneiland. The immediate surroundings offer an excellent selection of high-quality restaurants, cozy cafés, and unique boutiques — think of popular spots like Meneer Nieges, De Gouden Reael (by Caron), BAK, and the fashionable shops along Haarlemmerdijk. The Noordermarkt and Westerpark are also just around the corner. The nearby ferry takes you directly to creative and bustling Amsterdam-Noord. Whether by bike, car, or public transport, accessibility is excellent. Central Station is within walking distance, and by car you can reach the A10 Ring Road via the S101/S102 or Piet Hein Tunnel in no time. Schiphol Airport is just 20 minutes away.

Layout

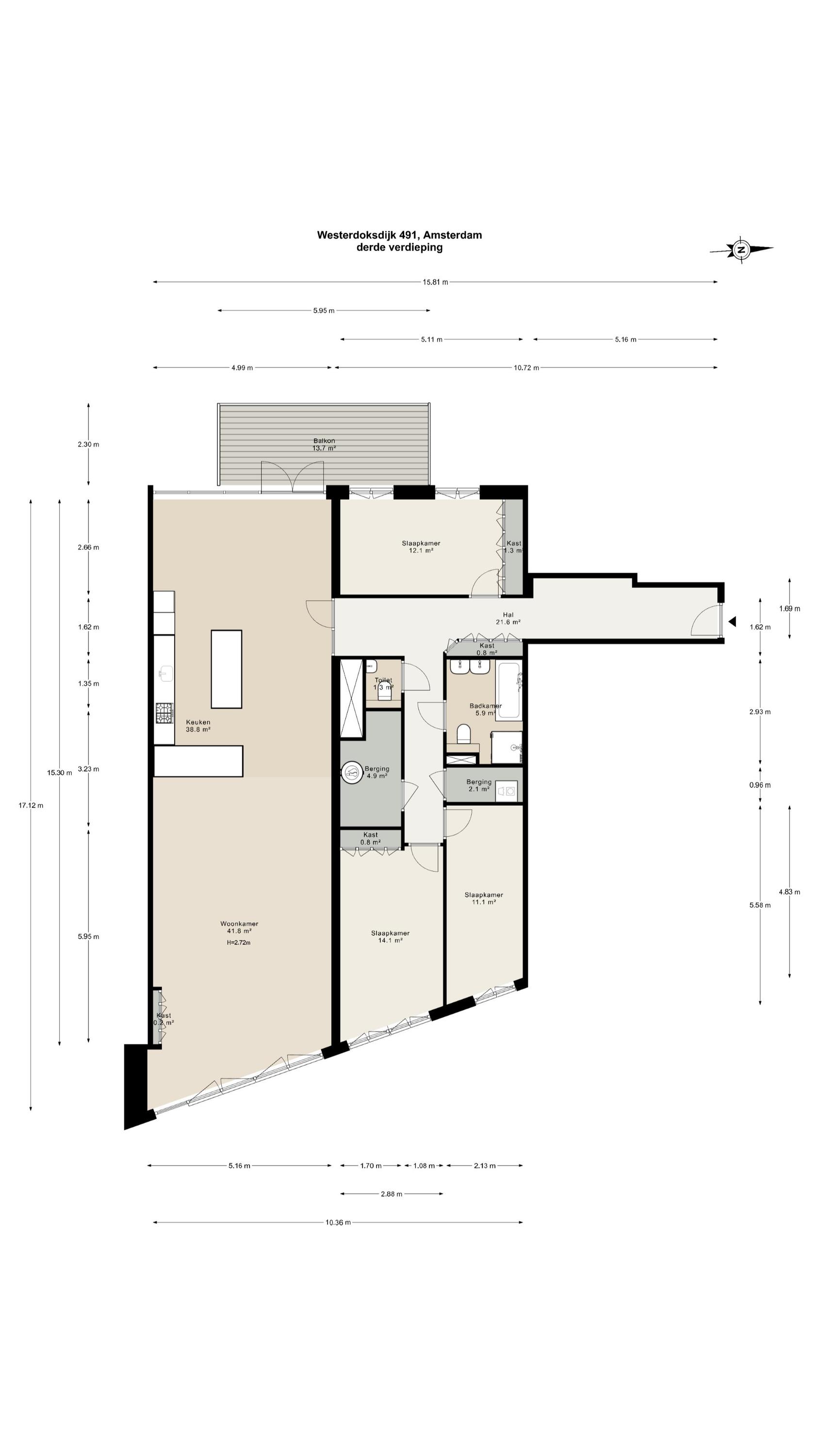
Third floor
Via the secured stairwell with elevator, you reach the third floor where the entrance to the apartment is located.
The spacious reception hall leads into a second hallway that provides access to the generous living area with open kitchen. Thanks to the full-width and floor-to-ceiling windows at the front, you'll enjoy phenomenal views over the IJ. Double doors at the rear open onto the sunny west-facing terrace of approximately 14 m² – a delightful spot to relax outdoors.
The luxurious open kitchen features a stylish cooking island, wine climate cabinet, and high-end built-in appliances including a fridge, freezer, induction cooktop, dishwasher, and two ovens. The apartment has three bedrooms: two at the front and one quietly situated at the rear near the terrace. The modern bathroom is equipped with a bathtub, walk-in shower, double washbasin, and toilet. There is also a separate guest toilet with washbasin, a spacious internal storage room with washer connection, and an additional storage area.
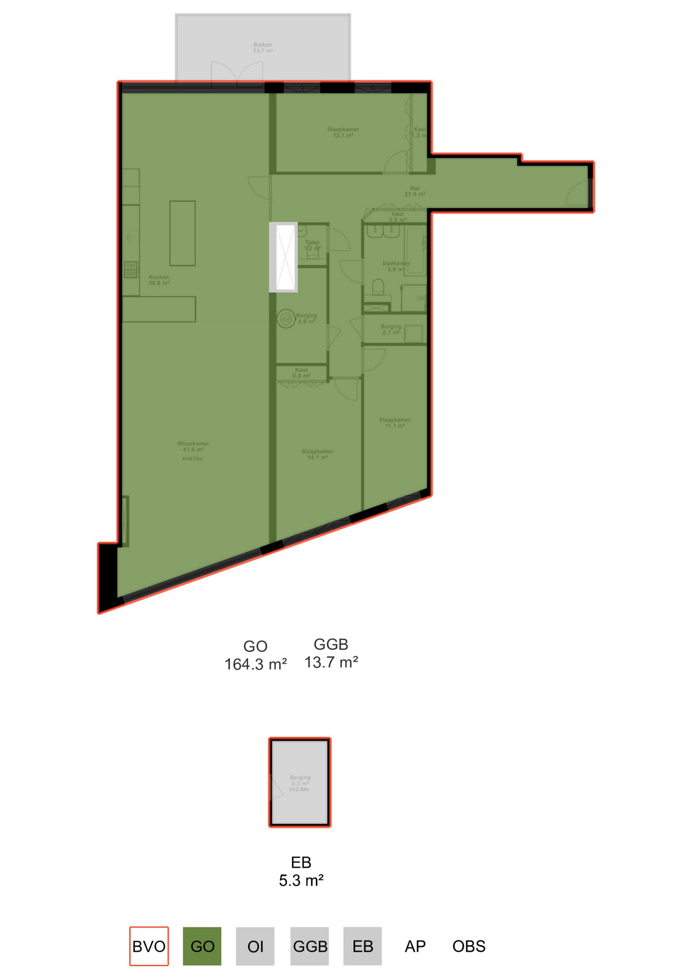
In the building’s basement, you'll find a communal bicycle storage, a private storage unit of approximately 5 m², and the parking garage. The private parking space is available for separate purchase at €60,000 (costs payable by buyer).
In short: a spacious, comfortable, and light-filled apartment in a unique waterfront location in the heart of Amsterdam – perfect for those seeking central living without sacrificing peace and space.

Key features

• Living area approx. 164 m² (measured in accordance with NEN2580)
• Terrace (approx. 14 m²) facing west
• Views over the IJ
• Three bedrooms
• Modern building (2008) with elevator and video intercom
• Private parking space available separately for €60,000 (costs payable by buyer)
• Private storage unit of approx. 5 m² in the basement
• Energy label A+
• Leasehold prepaid until 30-09-2054
• Conversion to perpetual leasehold registered with the notary. Annual ground rent as of 01-10-2054: €2,864.27 excluding inflation
• Professionally managed and active HOA. Monthly service charges are €385 for the apartment, of which €58 is for the parking space and € 65,- advance heating costs
• Designated project notary: Hartman LMH
• Transfer in consultation

This information has been compiled with the utmost care. However, we do not accept any liability for incompleteness, inaccuracies, or any consequences thereof. All stated measurements and surface areas are indicative. The buyer is responsible for maintaining and verifying all matters of personal importance. Regarding this property, the real estate agent represents the seller. We strongly recommend engaging a qualified (NVM) real estate agent to guide you through the purchasing process.If you have specific requirements regarding the property, we advise you to communicate these in a timely manner to your purchasing agent and conduct independent research where necessary. If you choose not to engage a professional representative, the law assumes you to be sufficiently knowledgeable to oversee all relevant matters yourself. The NVM terms and conditions apply.

Features

Transfer of ownership
price
€ 1.150.000 k.k.
Status
verkocht onder voorbehoud
Acceptance
in overleg
Construction
Kind of house
Tussenverdieping
Building type
appartement
Construction period
2008
Energy rating
A_P
Bedrooms
3
Bathrooms
1
Surface Areas And Volume
Living area
164 m2
Other indoor space
0 m2
Exterior space attached to the building
14 m2
Volume in cubic meters
549 m3
facilities
Mechanische ventilatie
Aan water
In centrum
Vrij uitzicht
Open ligging
Aan vaarwater
Baerz & Co Property Brochure

Brochure

Information / Viewing request

Videos

Photos

Floor Plans