Ons kantoor is lid van Baerz & Co Luxury Homes; een internationaal platform dat exclusieve woningmakelaars met elkaar verbindt. Neem contact op met ons secretariaat voor meer informatie over het landelijke aanbod, waarvan u hieronder een selectie kunt bekijken.

AMSTERDAM
Sausalitolaan 106 - 1031 KE
Netherlands

Floor Neomagus profile image
Floor Neomagus
Real Estate Agent
€1,100,000 k.k.
Living Area
132m2
Plot Size
N/A
Bedrooms
3

Description

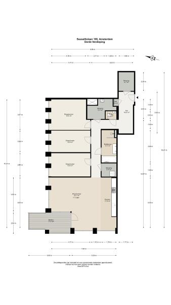
Apartment Amsterdam is presented within The Cube residential complex, where contemporary design and urban green coalesce along the IJ in Amsterdam-Noord. This energy-efficient corner apartment on the third floor measures 132 m², offering three well-proportioned bedrooms and a large southwest-facing balcony. The herringbone floor, abundant natural light from high windows, and the seamless flow between living and kitchen spaces create an atmosphere of tranquility and understated sophistication. Underfloor heating provides comfort throughout the apartment, supported by a heat pump and a heat recovery system, working harmoniously with the exemplary insulation and double glazing. The open-plan living features a matte black kitchen equipped with integrated appliances such as an induction hob, combi oven, dishwasher, and Quooker, allowing functionality to remain at the forefront of design.

The modern bathroom presents a walk-in shower, bathtub, and double washbasin, while practical storage solutions, a separate laundry space, and a guest toilet contribute to daily ease. A private parking space in the underground garage is available, and an external storage room of 5 m² is provided.

The building’s architecture by De Zwarte Hond features Portuguese travertine façades, a lobby reminiscent of a hotel, and solar panels atop green roofs. The Cube is further enhanced by its hotel-suite concept with a light-filled atrium, rich greenery, and communal spaces, combining privacy with a sense of connected community.

Set within peaceful, car-free streets, local amenities abound: supermarkets, renowned cafés, the Van der Pekmarkt, schools, and playgrounds are all nearby. Quick access to ferry 907 connects you to central Amsterdam and the North/South metro line, making both the city centre and Zuidas business district readily accessible. The property carries an active, professionally managed Homeowners’ Association and enjoys an energy label A++.

For those seeking modern, energy-efficient living in a vibrant Amsterdam setting, this apartment in The Cube offers a rare intersection of comfort, elegance, and thoughtful urban planning.

Explore Amsterdam with Baerz, Your Trusted Personal Property Finder & Advisor

Navigating Amsterdam’s luxury market calls for deep local intelligence, discretion, and negotiation expertise. Top advisors provide access to private listings, clarify nuanced ownership rules, and pinpoint value in a market where opportunities seldom reach public view. Advisory teams offer rigorous asset vetting and representation, strengthening your position during negotiations, ensuring seamless transactions, and protecting your privacy throughout the process.

Features

Transfer of ownership
Asking Price
€ 1.100.000 k.k.
Status
onder bod
Acceptance
in overleg
Construction
Kind of house
Tussenverdieping
Building type
appartement
Construction period
2019
Energy rating
A_PP
Roof type
plat dak
Bedrooms
3
Bathrooms
1
Surface Areas And Volume
Living Area
132 m2
Other indoor space
0 m2
Exterior space attached to the buildinge
12 m2
External storage space
2 m2
Volume in cubic meters
421 m3
Facilities
Tv kabel
Lift
Balansventilatie
Natuurlijke ventilatie
In woonwijk
Vrij uitzicht
Baerz & Co Property Brochure

Brochure

Videos

Floor Plans

Heeren Makelaars

Stadionweg 75
1077 SE Amsterdam

info@heerenmakelaars.nl
+31 204702255

www.heerenmakelaars.nl

Information / Viewing request

Floor Neomagus profile image
Floor Neomagus
Real Estate Agent