Baerz & Co is een landelijk samenwerkingsverband van zorgvuldig geselecteerde boutique luxury makelaars. Samen vormen wij één netwerk, met één gedeeld aanbod. De woningen die u op onze website ziet, zijn afkomstig van alle aangesloten kantoren binnen Baerz & Co. Daardoor is niet ieder object rechtstreeks door ons kantoor in verkoop, maar door een gespecialiseerde collega binnen ons netwerk. Heeft u een woning gevonden die u aanspreekt en wilt u meer informatie? Dan brengen wij u graag persoonlijk in contact met de betreffende verkoopmakelaar, zodat u direct en zorgvuldig wordt begeleid.

AMSTERDAM
Prof. Tulpstraat 42 - 1018 HA
Netherlands

Sjoerd Bouma profile image
Sjoerd Bouma
Real Estate Agent
€995,000 k.k.
Living Area
101m2
Plot Size
N/A
Bedrooms
2

Description

Apartment Amsterdam stands discreetly along Prof. Tulpstraat, a rare opportunity behind the Amstel Hotel on the tranquil water of the Singelgracht. This remarkable lower ground apartment, offered for the first time in over twenty years, flows across 101 m² with a souterrain. Sixteen windows infuse the dual-level residence with natural light, creating an atmosphere of openness and calm throughout the day.

A private entrance and high ceilings enhance the sense of seclusion, while expansive water views and an elegant oak floor unify the space with warmth and character. The souterrain, brightened by unusually generous windows, offers a non-traditional sense of airiness and comfort.

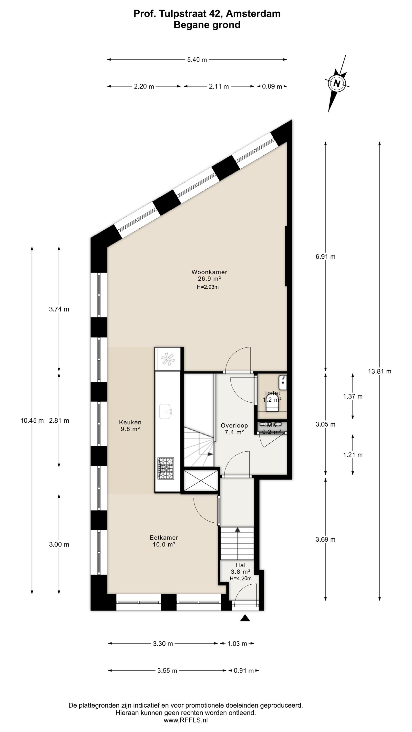
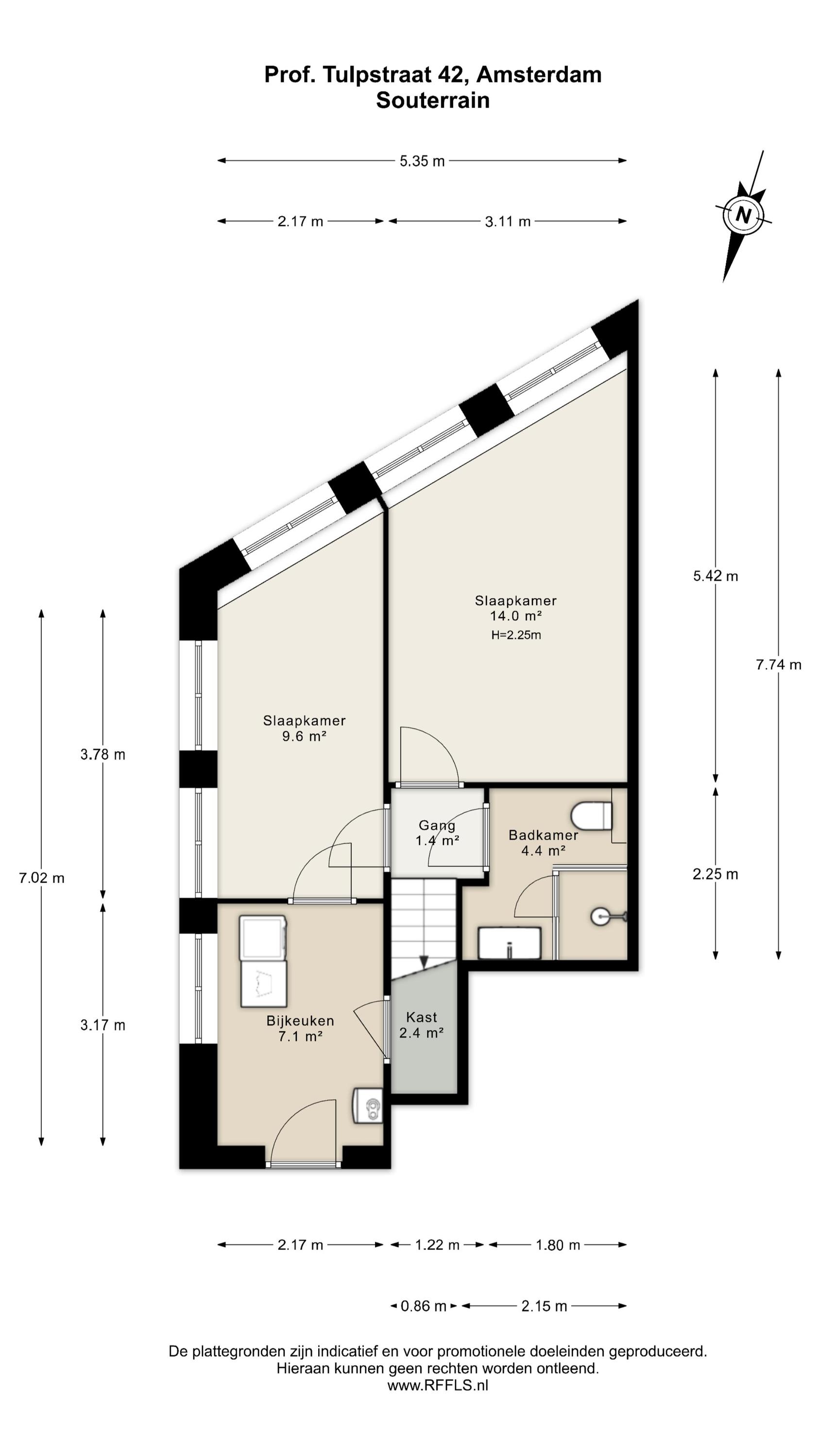
The main floor features a living and dining room in direct connection, anchored by a functional kitchen with modern appliances, and practical storage. Downstairs, two full bedrooms and an additional multi-purpose space share a central bathroom and separate utility room. The building itself was completed in 2006, housing only seven exclusive residences.

Set within a quiet, characterful street at the heart of Amsterdam, this apartment's outlook channels privacy, unobstructed views, and immediate access to celebrated city amenities. Notable surroundings, excellent connectivity, and an active owners association add to the enduring appeal of this unique address.

Features

Transfer of ownership
Asking Price
€ 995.000 k.k.
Status
beschikbaar
Acceptance
in overleg
Construction
Kind of house
Benedenwoning
Building type
appartement
Construction period
1850
Energy rating
C
Roof type
zadeldak
Bedrooms
2
Bathrooms
1
Surface Areas And Volume
Living Area
101 m2
Other indoor space
0 m2
Volume in cubic meters
395 m3
Facilities
Tv kabel
Natuurlijke ventilatie
Aan water
Aan rustige weg
In centrum
Aan vaarwater
Baerz & Co Property Brochure

Brochure

Floor Plans

Beeuwkes Makelaardij

Van Alkemadelaan 338
2597 AS Den Haag

info@beeuwkes.nl
+31 703143000

www.beeuwkes.nl

Information / Viewing request

Sjoerd Bouma profile image
Sjoerd Bouma
Real Estate Agent

Buying a Luxury Property in Amsterdam

Amsterdam offers a cosmopolitan lifestyle defined by heritage, connectivity, and discreet luxury. Residents benefit from a robust international community, curated services, and vibrant culture. The city’s enduring appeal lies in its blend of history, sophistication, and progressive spirit.