Baerz & Co is een landelijk samenwerkingsverband van zorgvuldig geselecteerde boutique luxury makelaars. Samen vormen wij één netwerk, met één gedeeld aanbod. De woningen die u op onze website ziet, zijn afkomstig van alle aangesloten kantoren binnen Baerz & Co. Daardoor is niet ieder object rechtstreeks door ons kantoor in verkoop, maar door een gespecialiseerde collega binnen ons netwerk. Heeft u een woning gevonden die u aanspreekt en wilt u meer informatie? Dan brengen wij u graag persoonlijk in contact met de betreffende verkoopmakelaar, zodat u direct en zorgvuldig wordt begeleid.

AMSTERDAM
Diepenbrockstraat 18 - 1077 VZ
Netherlands

Sjoerd Bouma profile image
Sjoerd Bouma
Real Estate Agent
€2,950,000 k.k.
Living Area
301m2
Plot Size
248m2
Bedrooms
6

Description

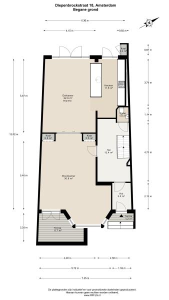
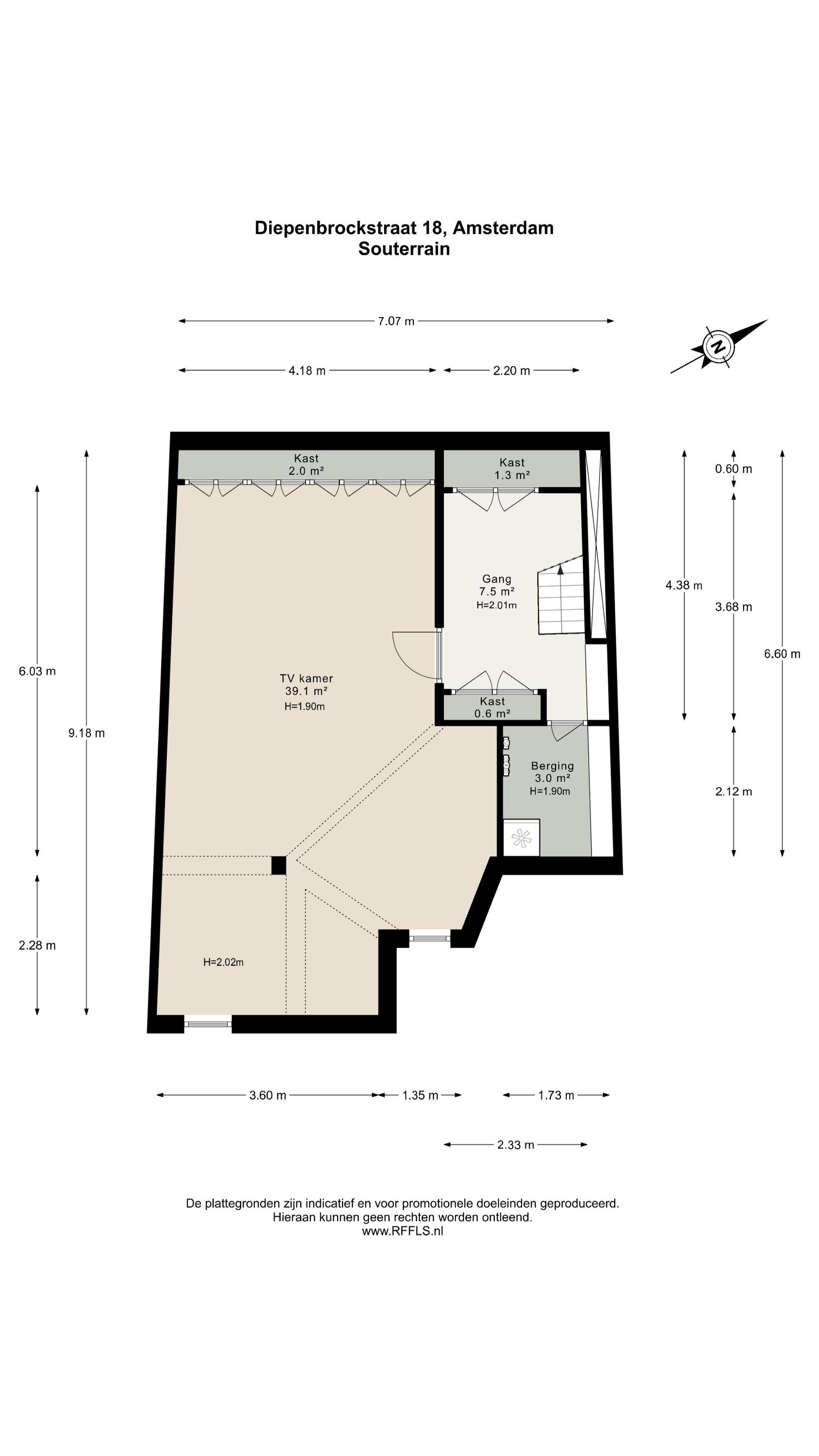
Townhouse Amsterdam Apollobuurt presents an exceptional blend of timeless architecture and practical family living, set in the prestigious and tranquil Apollobuurt district of Amsterdam-Zuid. This residence offers around 301 m² of living space set across five levels, featuring six bedrooms, three bathrooms, a deep rear garden of approximately 97 m², a sunlit front terrace, and a generous souterrain for versatile use.

Carefully maintained, the townhouse invites abundant daylight through characterful windows and enjoys an intuitive layout. On the ground floor, an inviting living room with open fireplace and bay window flows to the raised front terrace and a spacious dining area, complemented by a modern open kitchen. Sliding doors connect the indoors to a secluded rear garden, providing privacy and garden storage, accessible via private entrance.

The upper levels host generous bedrooms, including a master suite with custom wardrobes and a secluded balcony. Multiple bathrooms ensure comfort and privacy. The top floor features ample natural light with impressive ceiling height, suitable for working or relaxing. High-quality finishes, dakraam for additional illumination, and insulation measures such as dakisolatie and double glazing contribute to its comfort.

The location places you moments from Beethovenstraat’s boutiques and restaurants, with easy access to green parks, renowned schools, major roadways, and city highlights. Energy class C, perpetual lease rights are secured, and delivery is by mutual agreement. This is a rare opportunity in one of Amsterdam’s most distinguished neighborhoods.

Features

Transfer of ownership
Asking Price
€ 2.950.000 k.k.
Status
beschikbaar
Acceptance
in overleg
Construction
Kind of house
Eengezinswoning
Building type
tussenwoning
Construction period
1938
Energy rating
C
Roof type
zadeldak
Bedrooms
6
Bathrooms
3
Surface Areas And Volume
Living Area
301 m2
Other indoor space
0 m2
Exterior space attached to the buildinge
25 m2
External storage space
6 m2
Volume in cubic meters
1537 m3
Plot Size
248 m2
Facilities
Dakraam
In woonwijk
Baerz & Co Property Brochure

Brochure

Beeuwkes Makelaardij

Van Alkemadelaan 338
2597 AS Den Haag

info@beeuwkes.nl
+31 703143000

www.beeuwkes.nl

Information / Viewing request

Sjoerd Bouma profile image
Sjoerd Bouma
Real Estate Agent

Buying a Luxury Property in Amsterdam

Amsterdam offers a cosmopolitan lifestyle defined by heritage, connectivity, and discreet luxury. Residents benefit from a robust international community, curated services, and vibrant culture. The city’s enduring appeal lies in its blend of history, sophistication, and progressive spirit.