Baerz & Co is een landelijk samenwerkingsverband van zorgvuldig geselecteerde boutique luxury makelaars. Samen vormen wij één netwerk, met één gedeeld aanbod. De woningen die u op onze website ziet, zijn afkomstig van alle aangesloten kantoren binnen Baerz & Co. Daardoor is niet ieder object rechtstreeks door ons kantoor in verkoop, maar door een gespecialiseerde collega binnen ons netwerk. Heeft u een woning gevonden die u aanspreekt en wilt u meer informatie? Dan brengen wij u graag persoonlijk in contact met de betreffende verkoopmakelaar, zodat u direct en zorgvuldig wordt begeleid.

AMSTERDAM
Balthasar Floriszstraat 12 3 - 1071 VC
Netherlands

€875,000
Living Area
89m2
Plot Size
50m2
Bedrooms
2

Description

Balthasar Floriszstraat 12 3, 1071 VC AMSTERDAM

Situated in the highly sought-after Amsterdam Oud-Zuid, we are pleased to offer this charming and well-laid-out corner apartment of approximately 89 m². The apartment is located on the third and fourth floor and features a bright and inviting living room with a modern open-plan kitchen, a French balcony, two spacious bedrooms, and a bathroom with a bathtub on the second floor, as well as a generous rooftop terrace of approximately 12 m². The property is situated on freehold land (no ground lease). With a wide range of shops, restaurants, and cafés within walking distance, you will find yourself in one of Amsterdam’s most vibrant and desirable neighborhoods.

Location & Accessibility:
Balthasar Floriszstraat is a quiet and charming street located in the heart of Amsterdam Oud-Zuid, in the Duivelseiland neighborhood, between Cornelis Anthoniszstraat and Roelof Hartstraat. The location is ideal and offers every convenience: the Museum Quarter, including the Rijksmuseum, Van Gogh Museum, and Museumplein, is within walking distance. Beethovenstraat, P.C. Hooftstraat, and the Albert Cuyp Market are also just a few minutes away, offering a wide variety of shops, specialty stores, and restaurants. The vibrant De Pijp district is only a two-minute walk, while both Vondelpark and Sarphatipark can be reached within minutes for relaxation and recreation.

Accessibility is excellent. By car, the A10 ring road can be reached within approximately 10 minutes. Parking is available through the permit system. Public transportation is well represented, with several tram lines (including lines 3, 5, and 12) and the North/South metro line (De Pijp station) within short walking distance, as well as bus connections to Central Station, Station Zuid WTC, Amstel, Sloterdijk, and Muiderpoort.

Layout:

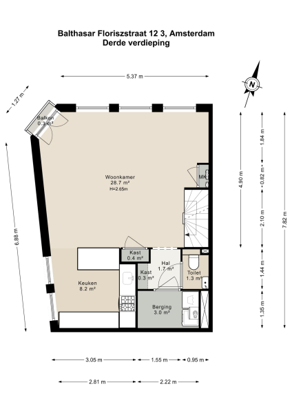
Third floor:
Via a private staircase from the second floor, you reach the third floor, where you enter directly into the spacious living room. Thanks to its corner position and large double-glazed windows, the space benefits from an abundance of natural light and a pleasant, open atmosphere.
The living room flows seamlessly into the generous open-plan kitchen, which is connected to the living area by a cozy breakfast bar. The kitchen is fully equipped with various built-in appliances, including a four-burner gas stove, integrated extractor hood, dishwasher, and oven. Together, the living room and kitchen create a comfortable and inviting living space.
On the Balthasar Floriszstraat side, the apartment features a charming French balcony. On the opposite side, you will find a guest toilet and a practical multifunctional area, currently arranged as a laundry space and wardrobe.

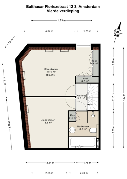
Fourth floor:
The internal staircase leads to the fourth floor, where two well-proportioned bedrooms are located, one of which benefits from built-in wardrobes. This floor also features a spacious bathroom, fitted with a bathtub, separate shower, toilet, washbasin, and a convenient storage closet.
From here, a staircase leads to the true highlight of the property: the rooftop terrace. Here you can enjoy beautiful, unobstructed views and a wonderful, private spot to relax in the sun.

In short, a spacious and bright apartment spread over multiple floors, featuring a practical layout, a rooftop terrace, and an excellent location on freehold land in the highly desirable Amsterdam Oud-Zuid.

Key Features:
- Apartment right of approximately 89.3 m² (measured in accordance with the NEN2580 measurement standard);
- Spacious rooftop terrace of approximately 12.3 m² (measured in accordance with the NEN2580 measurement standard);
- (French) balcony;
- Two bedrooms;
- Efficiently laid-out apartment;
- Situated on freehold land (no ground lease);
- Active homeowners’ association (VvE); service charges amount to €225,83 per month;
- Energy label C;
- Long-term maintenance plan (MJOP) available;
- Delivery in consultation.

This information has been compiled by us with due care. However, we accept no liability for any incompleteness, inaccuracies, or otherwise, nor for the consequences thereof. All stated measurements and surface areas are indicative. The buyer has a duty to conduct their own investigation into all matters that may be of importance to them. With regard to this property, the real estate agent represents the seller. We recommend engaging a qualified (NVM) real estate agent to assist you throughout the purchasing process. If you have specific requirements regarding the property, we advise you to communicate these to your purchasing agent in a timely manner and to conduct (or have conducted) your own independent investigation. If you do not engage a professional representative, you declare yourself sufficiently knowledgeable under the law to oversee all matters of importance. The NVM terms and conditions apply.

Features

Transfer of ownership
Asking Price
€ 875.000
Status
beschikbaar
Acceptance
in overleg
Construction
Kind of house
Bovenwoning
Building type
appartement
Construction period
1906
Energy rating
D
Roof type
plat dak
Bedrooms
2
Bathrooms
1
Surface Areas And Volume
Living Area
89 m2
Other indoor space
0 m2
Volume in cubic meters
324 m3
Plot Size
50 m2
Facilities
Tv kabel
Frans balkon
Natuurlijke ventilatie
Aan rustige weg
In woonwijk
Baerz & Co Property Brochure

Brochure

Videos

Video Balthasar Floriszstraat 12 3

Beeuwkes Makelaardij

Van Alkemadelaan 338
2597 AS Den Haag

info@beeuwkes.nl
+31 703143000

www.beeuwkes.nl

Information / Viewing request

Sjoerd Bouma profile image
Sjoerd Bouma
Real Estate Agent

Buying a Luxury Property in Amsterdam

Amsterdam offers a cosmopolitan lifestyle defined by heritage, connectivity, and discreet luxury. Residents benefit from a robust international community, curated services, and vibrant culture. The city’s enduring appeal lies in its blend of history, sophistication, and progressive spirit.