Ons kantoor is lid van Baerz & Co Luxury Homes; een internationaal platform dat exclusieve woningmakelaars met elkaar verbindt. Neem contact op met ons secretariaat voor meer informatie over het landelijke aanbod, waarvan u hieronder een selectie kunt bekijken.

AMSTELVEEN
Amstelzijde 40 - 1184 VA
Netherlands

Sander Bovenkerk profile image
Sander Bovenkerk
Real estate agent
€1,500,000 k.k.
Living Area
160m2
Plot Size
175m2
Bedrooms
4

Description

Townhouse Amstelveen commands a rare riverside position on the historic Amstelzijde, delivering an elegant interplay of 1940s heritage and contemporary comfort. This exceptional 160 m² residence spans three levels and a functional basement, perfectly attuned to those seeking protected village views and tranquility near Amsterdam.

The entry welcomes you via a quiet, historic street into a hallway with ample storage and guest conveniences. At the front, a versatile light-filled room with high windows and a private entrance serves as an ideal office or guest suite. The expansive living room stretches the full width of the home, anchored by a herringbone wooden floor, tall windows, and French doors framing the landscaped garden and uninterrupted Amstel views.

A semi-open kitchen in warm wood with underfloor heating and full suite of built-in appliances supports both daily rhythm and gathering. Step outside to the private rear garden, its lush greenery leading to a personal dock on the river—an invitation to quiet mornings and waterfront living. The basement of 11 m², with nearly two-meter ceilings, answers storage or wine cellar dreams.

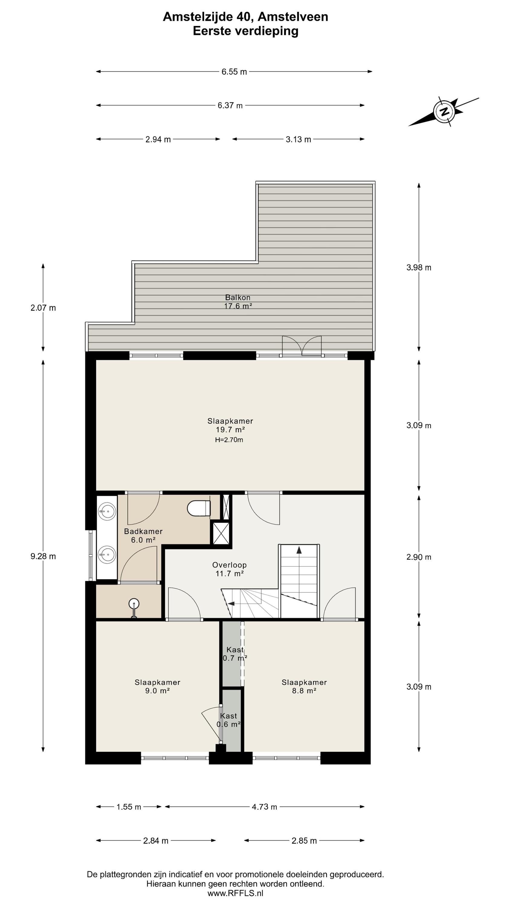
Upstairs, the principal suite opens onto a 17 m² balcony overlooking the water. Two additional bedrooms, custom storage, and a refined bathroom with walk-in shower and underfloor heating compose a private retreat. The top floor, with exposed beams, high ceilings, air conditioning, skylights, and a second bath, is open to flexible use or further division.

Here, the townhouse Amstelveen is more than address: it is a balanced intersection of history, privacy, and village atmosphere. Acclaimed restaurants, essential amenities, and abundant recreation lie steps away, while Amsterdam’s city center, Zuidas, and Schiphol are within easy reach. Solar panels and a renewed central heating system speak to thoughtful modernity, and residents-only parking preserves a sense of belonging and ease.

This luxury townhouse for sale in Amstelveen sets the tone for those who measure value by provenance, authenticity, and enduring riverside allure.

Explore Amstelveen with Baerz, Your Trusted Personal Property Finder & Advisor

Navigating Amstelveen’s discreet and highly competitive market requires insight beyond standard listings. Accomplished advisors offer entry to private sales, a nuanced understanding of neighborhood dynamics, and proficiency in structuring bespoke deals. Their expertise ensures thorough due diligence, optimised negotiations, and seamless cross-border transactions, safeguarding the interests of high-value clients throughout the acquisition or sale process.

Features

Transfer of ownership
Asking Price
€ 1.500.000 k.k.
Status
verkocht onder voorbehoud
Acceptance
in overleg
Construction
Kind of house
Herenhuis
Building type
vrijstaande woning
Construction period
1940
Energy rating
D
Roof type
zadeldak
Bedrooms
4
Bathrooms
2
Surface Areas And Volume
Living Area
160 m2
Other indoor space
11 m2
Exterior space attached to the buildinge
26 m2
Volume in cubic meters
630 m3
Plot Size
175 m2
Facilities
Aan water
Aan rustige weg
Vrij uitzicht
Aan vaarwater
Baerz & Co Property Brochure

Brochure

Videos

Floor Plans

Heeren Makelaars

Stadionweg 75
1077 SE Amsterdam

info@heerenmakelaars.nl
+31 204702255

www.heerenmakelaars.nl

Information / Viewing request

Sander Bovenkerk profile image
Sander Bovenkerk
Real estate agent