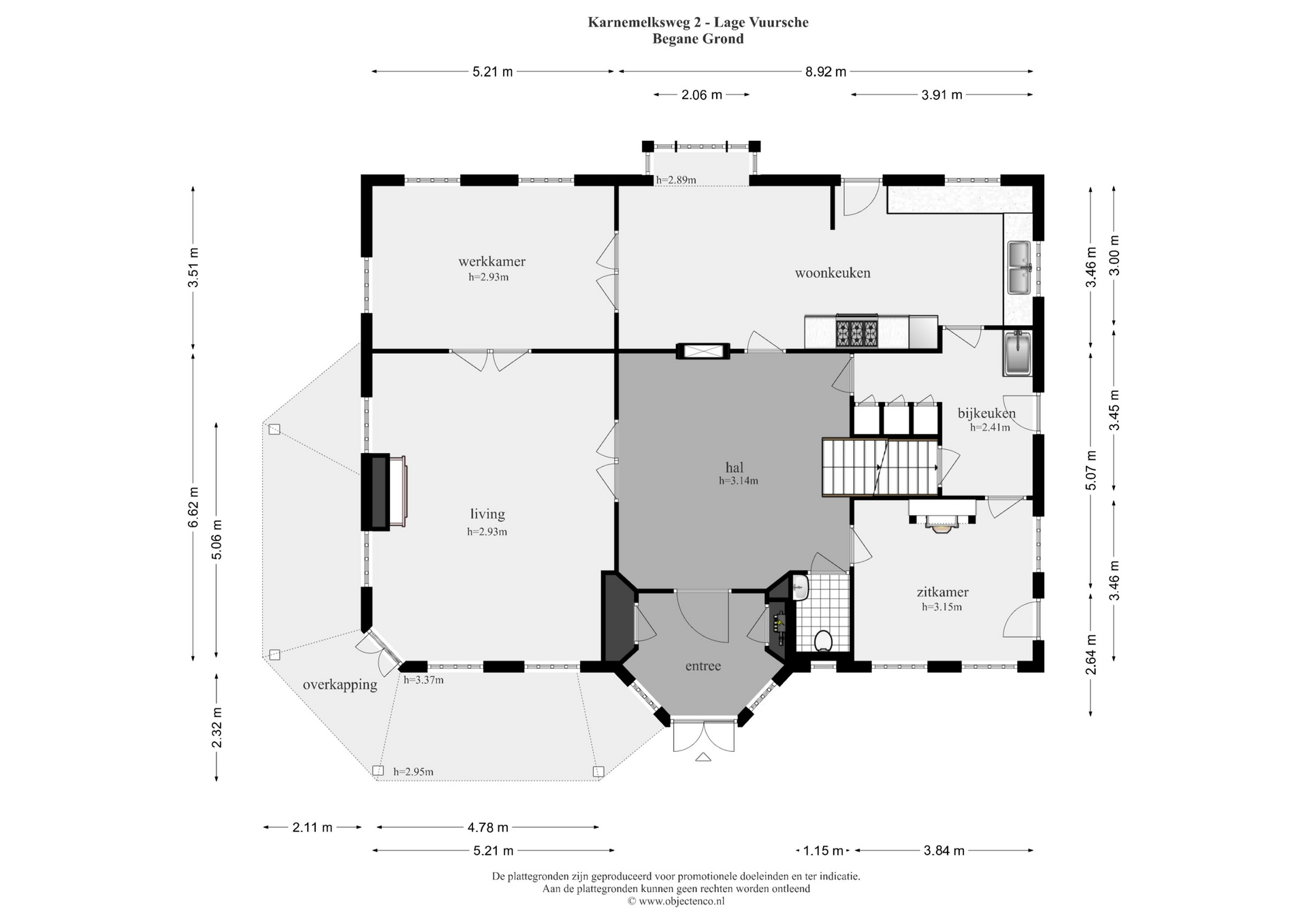
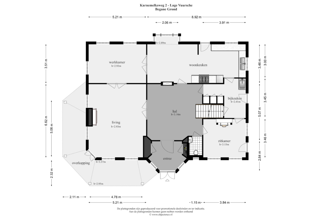
Die Villa Lage Vuursche vereint Geschichte und Komfort an einer seltenen, ruhigen Waldlage. Auf einem rund 2.095 m² großen privaten Gartengrundstück in Lage Vuursche bietet diese Villa etwa 350 m² Wohnfläche sowie ein zusätzliches Untergeschoss von 150 m², was dem Anwesen und dem traditionsreichen Dorf eine besondere Weite und stille Gelassenheit verleiht. Durch ein privates Tor gelangt man zu Obstbäumen und einem Kräutergarten, die das Haus einrahmen, wobei sich der zurückhaltende Charme in jedem architektonischen Detail zeigt.
2012 vom Architekten Van Asbeck entworfen, wurde die Villa mit außergewöhnlicher Wertschätzung für das historische Erbe konzipiert. Wiederaufbereitetes Parkett, jahrhundertealte niederländische Fliesen, Türen mit Vergangenheit sowie Dachziegel aus einer historischen Utrechter Kaserne verschmelzen mit zeitgenössischer Handwerkskunst. Ein Amsterdamer Grachtenhaus-Schrank bildet das Herzstück des Wohnküchens und verleiht diesem Raum Charakter und Geschichte. Die Decken im Erdgeschoss erreichen nahezu drei Meter Höhe und sorgen für herausragende Helligkeit und Großzügigkeit. Der repräsentative Eingangsbereich offenbart einen Kamin und eine kunstvolle Treppe, umgeben von Wohnbereichen wie Arbeitszimmer, Atelier und einem Kaminzimmer.
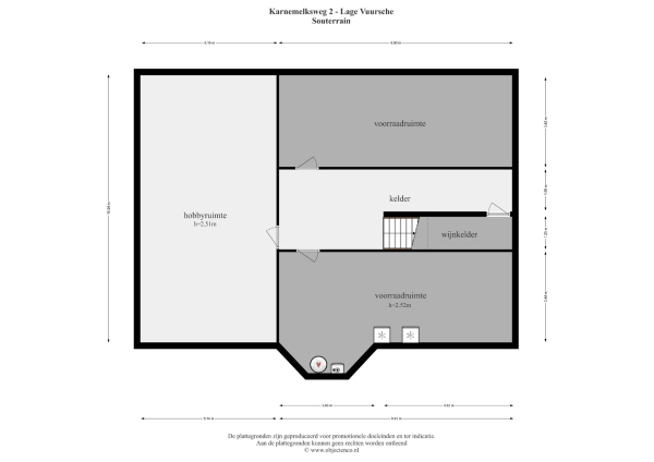
Die Master-Suite dominiert das Obergeschoss und wird von einer Ankleide sowie einem luxuriösen Badezimmer ergänzt; zwei weitere Schlafzimmer – jeweils mit eigenem Bad – und ein viertes Dachgeschoss-Suite komplettieren das Raumangebot. Im großzügigen Untergeschoss warten Flächen für Fitness, Weinkeller oder Spielbereich. Energieklasse A, teilweise Fußbodenheizung, mechanische Belüftung, Alarmanlage und moderne Technik sorgen für Komfort und Diskretion. Die Garage und das automatische Zugangstor unterstreichen die Privatsphäre, während die Nähe zu Baarn, Hilversum und wichtigen Verkehrswegen für ideale Erreichbarkeit sorgt. Die Villa Lage Vuursche ist ein echtes Zuhause mit Geschichte, geschaffen für Menschen, die Wert auf Herkunft, Großzügigkeit und tiefe Gelassenheit legen.
Entdecken Sie Lage Vuursche mit Baerz, Ihrem vertrauenswürdigen persönlichen Immobilienfinder und Berater
Die Besonderheiten des Marktes, begrenztes Angebot, Denkmalschutz und hohe Diskretion verlangen einen vertrauensvollen Partner. Kompetente Berater eröffnen Zugang zu Objekten, die nicht öffentlich angeboten werden, führen Verhandlungen souverän und sorgen für rechtliche Konformität. Ihr lokales Wissen und internationaler Weitblick gewährleisten eine optimale Übereinstimmung mit Vermögens- und Lebenszielen – eine unverzichtbare Unterstützung.
Häufige Fallstricke vermeiden
Internationale Käufer verlieren oft wertvolle Zeit, weil sie sich durch doppelte, veraltete oder irreführende Online-Angebote kämpfen müssen – besonders da fast 30% aller Luxusimmobilien überhaupt nicht auf dem Markt erscheinen.
Makler des Verkäufers vertreten die Interessen des Verkäufers, nicht Ihre, und schon eine einfache Anfrage kann dazu führen, dass eine Agentur Sie ohne Ihre Zustimmung als deren „Kunden“ registriert.
Mit Baerz Property Finders & Advisors umgehen Sie all diese Fallstricke vollständig.
Wir handeln ausschließlich in Ihrem Interesse, bieten unabhängige Vertretung, transparente Beratung und Zugang zu jedem verfügbaren Objekt – einschließlich privater und off-market Angebote, die andere nie zu sehen bekommen.
Neugierig, wie Sie Ihren eigenen Personal Property Advisor sichern können? Kontaktieren Sie uns, um zu erfahren, wie wir Ihre Interessen vertreten und Ihnen den gesamten Markt öffnen können.