Ons kantoor is lid van Baerz & Co Luxury Homes; een internationaal platform dat exclusieve woningmakelaars met elkaar verbindt. Neem contact op met ons secretariaat voor meer informatie over het landelijke aanbod, waarvan u hieronder een selectie kunt bekijken.

BERKEL-ENSCHOT
Elstar 40 - 5056 DG
Die Niederlande

Shirley Kneepkens profile image
Shirley Kneepkens
Makelaar - taxateur
Price on request
Wohnbereich
206m2
Grundstücksgröße
530m2
Schlafzimmer
4

Beschreibung

Das freistehende Haus in Berkel-Enschot strahlt eine ruhige Innovationskraft in einem Dorf aus, das seit jeher wegen seiner Privatsphäre und Nähe zur Natur geschätzt wird. Diese zeitgenössische Residenz, entworfen von JMW Architects, verkörpert durchdachte Architektur und großzügige Raumwirkung auf 206 m² Wohnfläche über drei Ebenen, geprägt von industrieller Raffinesse, Glasfassaden und zurückhaltendem Luxus.

Die Hauptwohnbereiche bestechen durch loftartiges Raumgefühl: Hohe Decken, bodentiefe Fenster und fließende Übergänge zu den Außenterrassen definieren das Ambiente. Im Erdgeschoss erwarten Sie über 100 m² für Verbindung und Entspannung – von der offenen Wohnküche mit Gaggenau-Geschirrspüler und extrabreitem Kühlschrank bis hin zu lichtdurchfluteten Salons und einem multifunktionalen Raum, ideal als Studio oder Büro. Jeder Bereich steht in engem Dialog mit dem Südostgarten und der überdachten Terrasse, wo ein Baum durch eine maßgeschneiderte Öffnung im Dach wächst.

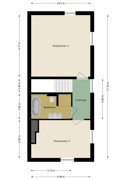
Das voll ausgestattete Untergeschoss bietet zwei Schlafzimmer und ein Bad en Suite, jeweils mit Zugang zu einer privaten Terrasse. Im ersten Obergeschoss befinden sich zwei weitere Schlafzimmer, ein großzügiges Bad und ein Dachboden. Designerbeton, integrierte Beleuchtung sowie zonierte Fußbodenheizung und -kühlung sorgen durchgehend für einen Mix aus Widerstandsfähigkeit und Komfort. Achtundzwanzig Solarpanels, eine Erdwärmepumpe und hochwirksame Verglasung gewährleisten echte Energieeffizienz auf A++-Niveau – für ganzjährigen Klimakomfort und nachhaltiges Wohnen.

Das 530 m² große Grundstück ist vollständig in Grünflächen eingebettet, rundum eingefriedet und bietet Parkmöglichkeiten auf dem Grundstück. Zu den lokalen Annehmlichkeiten zählen das erneuerte Einkaufszentrum Koningsoord, renommierte Schulen, Sporteinrichtungen und eine schnelle Autobahnanbindung nach Tilburg, Eindhoven und Breda. Wer eine luxuriöse Villa in Berkel-Enschot sucht, findet in diesem freistehenden Haus architektonische Klarheit, nachhaltigen Anspruch und echte Privatsphäre vereint.

Entdecken Sie Berkel-Enschot mit Baerz, Ihrem vertrauenswürdigen persönlichen Immobilienfinder und Berater

Die Besonderheiten des Marktes erfordern Erfahrung und Feingefühl, um seltene Chancen zu erkennen und diskrete Besichtigungstermine zu ermöglichen – oft außerhalb öffentlicher Angebote. Persönliche Berater verfügen über exklusive Informationen zu kommenden Verfügbarkeiten, ein weitreichendes Netzwerk und ein feines Gespür für aktuelle Trends. So gelingt eine strategisch abgestimmte und effiziente Abwicklung, auch bei komplexen Transaktionen – zum Vorteil regionaler wie internationaler Klientel.

Häufige Fallstricke vermeiden

Internationale Käufer verlieren oft wertvolle Zeit, weil sie sich durch doppelte, veraltete oder irreführende Online-Angebote kämpfen müssen – besonders da fast 30% aller Luxusimmobilien überhaupt nicht auf dem Markt erscheinen.
Makler des Verkäufers vertreten die Interessen des Verkäufers, nicht Ihre, und schon eine einfache Anfrage kann dazu führen, dass eine Agentur Sie ohne Ihre Zustimmung als deren „Kunden“ registriert.
Mit Baerz Property Finders & Advisors umgehen Sie all diese Fallstricke vollständig.
Wir handeln ausschließlich in Ihrem Interesse, bieten unabhängige Vertretung, transparente Beratung und Zugang zu jedem verfügbaren Objekt – einschließlich privater und off-market Angebote, die andere nie zu sehen bekommen.

Neugierig, wie Sie Ihren eigenen Personal Property Advisor sichern können? Kontaktieren Sie uns, um zu erfahren, wie wir Ihre Interessen vertreten und Ihnen den gesamten Markt öffnen können.

Merkmale

Solarmodule
Eigentumsübertragung
Preis auf Anfrage
Status
verkocht onder voorbehoud
Annahme
in overleg
Bau
Art des Hauses
Eengezinswoning
Gebäudetyp
vrijstaande woning
Bauzeitraum
2013
Energieausweis
A++
Dachtyp
samengesteld dak
Schlafzimmer
4
Badezimmer
2
Flächen und Volumen
Wohnbereich
206 m2
Andere Innenräume
13 m2
Außenbereich am Gebäude
49 m2
Volumen in Kubikmetern
815 m3
Grundstücksgröße
530 m2
Einrichtungen
Mechanische ventilatie
Buitenzonwering
Schuifpui
Zonnepanelen
Aan rustige weg
In woonwijk
Baerz & Co Property Brochure

Broschüre

Videos

Grundrisse

Shirley Kneepkens Makelaardij

Raadhuisstraat 44
5056HD Berkel-Enschot

shirley@shirleykneepkens.nl
+31 (0)13 533 56 55

www.shirleykneepkens.nl

Information / Besichtigungsanfrage

Shirley Kneepkens profile image
Shirley Kneepkens
Makelaar - taxateur