Ons kantoor is lid van Baerz & Co Luxury Homes; een internationaal platform dat exclusieve woningmakelaars met elkaar verbindt. Neem contact op met ons secretariaat voor meer informatie over het landelijke aanbod, waarvan u hieronder een selectie kunt bekijken.

VALKENBURG
Voorschoterweg 71 B - 2235 SG
هولندا

Frits Wilbrink profile image
Frits Wilbrink
Real estate agent
€1,175,000 k.k.
منطقة المعيشة
162m2
حجم الأرض
655m2
غرف النوم
3

الوصف

تقع هذه الفيلا شبه المنفصلة في فالكنبورخ مباشرة على ضفاف المياه، لتوفر أسلوب حياة هادئًا على الواجهة المائية في قلب منطقة راندستاد. تمنح العقار مساحة داخلية راقية تبلغ 162 مترًا مربعًا على أرض بمساحة 655 مترًا مربعًا، موحدة بتصميم حديقة من إبداع معماري ورصيف خاص يبلغ طوله عشرة أمتار على ضفة نهر الراين القديم، ما يتيح سهولة الوصول إلى لايدن وكاجربلاسن. يمكن الخروج من الحديقة المشمسة مباشرةً إلى الماء ليصبح الإبحار جزءًا من إيقاع الحياة اليومية، فيما تقع بحيرة فالكنبورخ على مسافة مشي قصيرة.

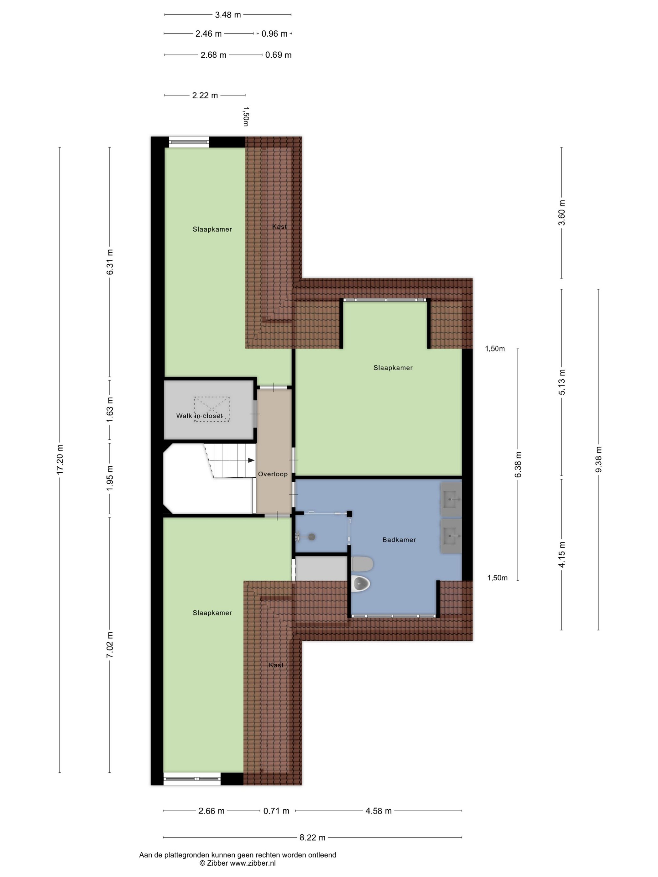
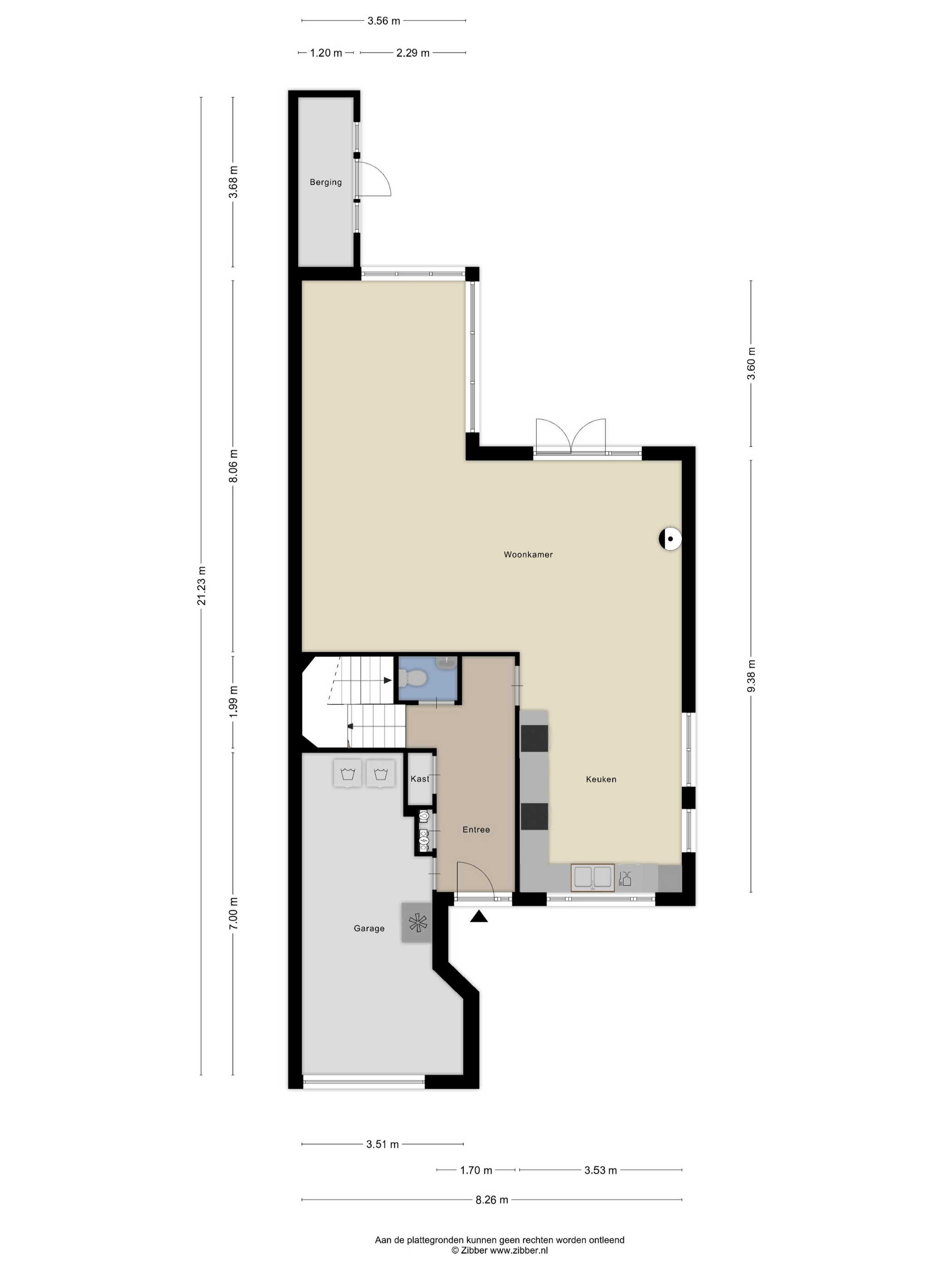
في الداخل، تستقبل الفيلا سكانها بمدخل واسع يؤدي إلى غرفة معيشة مشرقة. تعزز النوافذ الكبيرة والأبواب الفرنسية إطلالة الحديقة والمياه، ويكملها مدفأة غازية وتدفئة أرضية في كامل الطابق الأرضي. يوفر المطبخ مساحة عمل ونقطة تواصل اجتماعي في آن واحد، بينما يشمل المرأب المتصل بابًا كهربائيًا ووصلات مرافق مخصصة. في الطابق العلوي، تتوزع ثلاث غرف نوم وحمام فاخر تم تجديده في عام 2022 مجهز بتدفئة أرضية ودش مخصص للمشي، ليشكلوا المساحة الخاصة. تساهم غرفة الملابس العصرية وسقف التخزين الفسيح في تعزيز المرونة العملية، ويمكن بسهولة تحقيق غرفة رابعة مستقبلية.

تمنح الحدائق المصممة في الجهة الأمامية والخلفية مساحات للظل والشمس، مع نظام ري تلقائي، ومستودع بمحاذاة الماء، وخصوصية لمواقف ثلاث سيارات في الموقع. يحمل المنزل تصنيف الطاقة "B" مع زجاج HR++ وتشطيبات آمنة، مما يجمع بين الراحة وراحة البال. تقع هذه الفيلا الفاخرة المعروضة للبيع في فالكنبورخ على دقائق من وسط مدينة لايدن، بالقرب من المدارس الدولية، وعلى بعد عشرين دقيقة فقط من أمستردام وسخيبول ولاهاي، مما يوفر اتصالاً سهلاً للحياة الأسرية والمهنية. هنا، يُعرَّف السكن بالمساحة والضوء والحضور الرصين للماء.

استكشف Valkenburg مع Baerz، مستشارك الموثوق للعثور على العقارات الشخصية

الاستعانة بمستشارين محليين أمر جوهري نظراً لتنوع العمارة وقيود المحافظة وفرص السوق الخاصة. يقدم الخبراء فهماً لتاريخ الأحياء وإمكاناتها، ويمنحون وصولاً حصرياً للعقارات المرموقة. قدراتهم التفاوضية وصلاتهم بالمتخصصين تضمن تجربة شراء سلسة وواعية استراتيجياً.

تجنب المزالق الشائعة

غالبًا ما يهدر المشترون الدوليون وقتًا ثمينًا أثناء التنقل بين القوائم المكررة أو القديمة أو المضللة عبر الإنترنت، خاصةً أن ما يقرب من 30% من العقارات الفاخرة لا تظهر في السوق على الإطلاق.
يمثل وكلاء البائعين مصالح البائع وليس مصالحك، وحتى مجرد الاستفسار عن عقار قد يؤدي إلى تسجيلك كـ "عميل" لديهم دون موافقتك.
مع Baerz Property Finders & Advisors، يمكنك تجنب هذه المزالق تمامًا.
نحن نعمل حصريًا نيابة عنك، ونقدم لك تمثيلاً مستقلاً، وإرشادًا شفافًا، وإمكانية الوصول إلى كل عقار متاح، بما في ذلك الفرص الخاصة وغير المطروحة في السوق والتي لا يراها الآخرون أبدًا.

هل ترغب في معرفة كيفية الحصول على مستشار عقاري شخصي؟ اتصل بنا لتتعرف على كيفية تمثيل مصالحك وفتح السوق بالكامل أمامك.

الميزات

Alarm system
نقل الملكية
السعر المطلوب
€ 1.175.000 k.k.
الحالة
beschikbaar
القبول
in overleg
البناء
نوع المنزل
Villa
نوع المبنى
halfvrijstaande woning
فترة البناء
1992
تقييم الطاقة
B
نوع السقف
samengesteld dak
غرف النوم
3
الحمامات
1
المساحات السطحية والحجم
منطقة المعيشة
162 m2
مساحة داخلية أخرى
43 m2
الحجم بالأمتار المكعبة
760 m3
حجم الأرض
655 m2
المرافق
Mechanische ventilatie
Alarminstallatie
Tv kabel
Buitenzonwering
Rookkanaal
Aan water
Beschutte ligging
Buiten bebouwde kom
Aan vaarwater
Baerz & Co Property Brochure

كتيب

فيديوهات

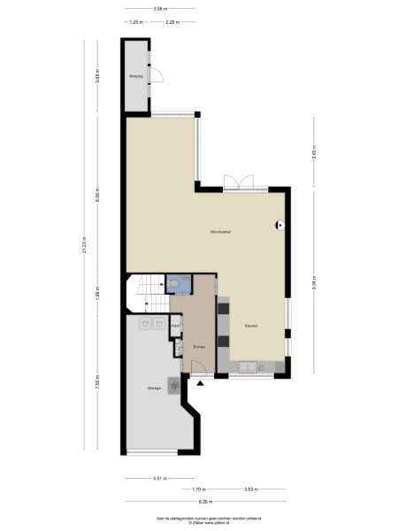
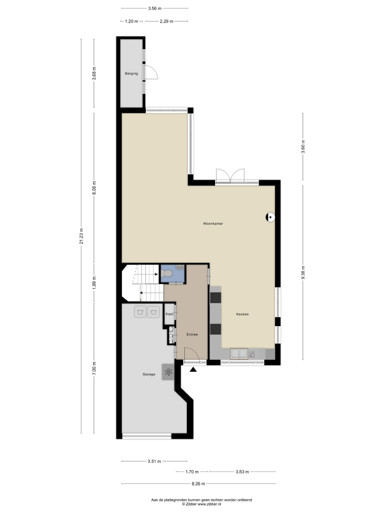
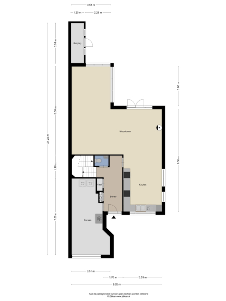
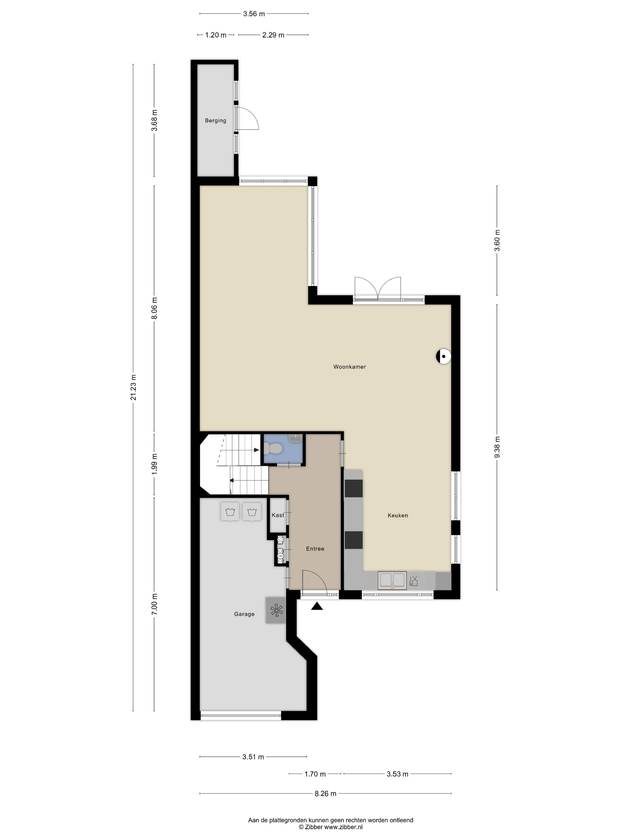
مخططات الطوابق

Wilbrink & v.d. Vlugt Makelaars

Heereweg 231
2161 BG Lisse

info@wilbrinkvandervlugt.nl
+31 252 41 90 49

www.onsaanbod.nl

طلب معلومات / مشاهدة

Frits Wilbrink profile image
Frits Wilbrink
Real estate agent