Welkom bij Beeuwkes Makelaardij Internationaal. Ook ver buiten Nederland zijn wij zeer actief. Via ons internationale netwerk binnen Baerz & Co Luxury Homes begeleiden onze Nederlandse (!) partners u vakkundig bij de aankoop van exclusieve tweede huizen. U vindt ons in 20 landen rond de Middellandse zee, de Alpen, Mexico en Dubai. Neem voor meer informatie contact op met ons secretariaat.

BARCELONA
إسبانيا

Chantal Cunningham profile image
Chantal Cunningham
Chief Property Advisory
€2,100,000
منطقة المعيشة
201m2
حجم الأرض
N/A
غرف النوم
3

الوصف

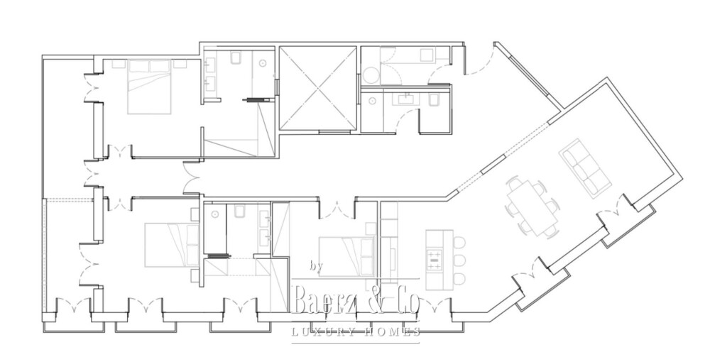
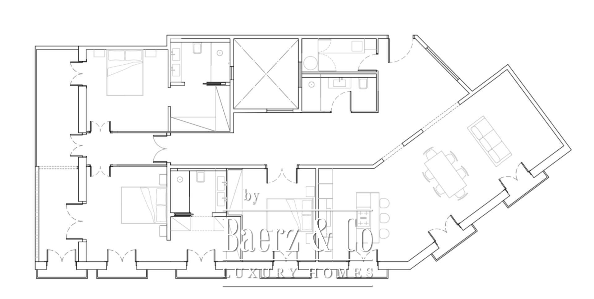
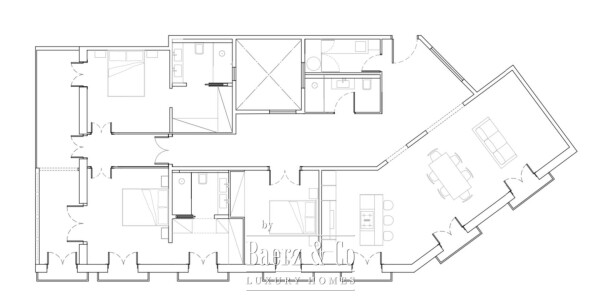
بنتهاوس برشلونة كوادرات دور يُعد مثالاً للحياة الراقية في ملتقى شارع خيرونا وغران فيا دي ليس كورتس كاتالانس. هذا البنتهاوس المُجدَّد بالكامل بمساحة 201 م² مع تراس بمساحة 20 م² يقع في قلب حي كوادرات دور الرمزي في برشلونة، ويوفر وصولاً فورياً إلى باسيج دي غراسيا وبلاسا كاتالونيا. تم تصميم هذا السكن أولئك الذين يقدّرون التصميم والأصالة والطابع الزمني للأحياء التاريخية.

يوفر التخطيط ثلاث غرف نوم مزدوجة، اثنتان منها بحمام داخلي، بالإضافة إلى ثلاثة حمامات كاملة. تم ترميم الأرضيات الهيدروليكية الأصلية والأعمال الخشبية بحرص، مع إضافة وسائل الراحة العصرية بنظام تكييف هواء أيروترمال. تتكامل مساحة المعيشة وتناول الطعام الواسعة بسلاسة مع مطبخ مصمَّم حسب الطلب بنظام مفتوح يشمل جزيرة مركزية، وأجهزة Miele وLiebherr الراقية، وأسطح Neolith، وخزائن مصقولة. الشرفات، وسعة التخزين الكبيرة، ومنطقة غسيل الملابس المخصصة تعزز الراحة اليومية.

يغمر الضوء الداخل من التراس والشرفات، ليخلق حواراً بين رقي المساحات الداخلية وأفق برشلونة. يوفر المبنى مصعداً وخدمة كونسيرج احترافية. هذا البنتهاوس الفاخر المعروض للبيع في برشلونة يتميز بتوازنه الفريد بين الحيوية الحضرية والخصوصية السكنية، محاط بالمطاعم والمسارح والمتاجر البوتيكية والمعالم المعمارية. النتيجة هي أناقة هادئة في قلب المدينة.

استكشف Barcelona مع Baerz، مستشارك الموثوق للعثور على العقارات الشخصية

يعتبر الاستعانة بخبير عقاري في سوق العقارات الرئيسية في برشلونة أمراً لا يُقدّر بثمن. ففهم تفاصيل السوق، والوصول إلى العروض الحصرية، والاستفادة من خبرة التفاوض ضروري. توفر خدمات الاستشارة المصممة خصيصاً أقصى قدر من السرية، واتصالات عميقة، وتخفيف للمخاطر في جميع المراحل، ما يضمن تحقيق الأهداف المرجوة للمشترين والبائعين على حد سواء.

تجنب المزالق الشائعة

غالبًا ما يهدر المشترون الدوليون وقتًا ثمينًا أثناء التنقل بين القوائم المكررة أو القديمة أو المضللة عبر الإنترنت، خاصةً أن ما يقرب من 30% من العقارات الفاخرة لا تظهر في السوق على الإطلاق.
يمثل وكلاء البائعين مصالح البائع وليس مصالحك، وحتى مجرد الاستفسار عن عقار قد يؤدي إلى تسجيلك كـ "عميل" لديهم دون موافقتك.
مع Baerz Property Finders & Advisors، يمكنك تجنب هذه المزالق تمامًا.
نحن نعمل حصريًا نيابة عنك، ونقدم لك تمثيلاً مستقلاً، وإرشادًا شفافًا، وإمكانية الوصول إلى كل عقار متاح، بما في ذلك الفرص الخاصة وغير المطروحة في السوق والتي لا يراها الآخرون أبدًا.

هل ترغب في معرفة كيفية الحصول على مستشار عقاري شخصي؟ اتصل بنا لتتعرف على كيفية تمثيل مصالحك وفتح السوق بالكامل أمامك.

الميزات

نقل الملكية
السعر المطلوب
€ 2.100.000
LAS
البناء
الغرف
N/A
غرف النوم
3
الحمامات
3
المساحات السطحية والحجم
منطقة المعيشة
201 m2
حجم الأرض
0 m2
المرافق
Balcon
A/A
Telephone
Terrace
Elevator
Wardrobes cupboard
Appliances
Light
Town Gas
Laundry
Automatic Doors
Satellite
T. V.
Clearly
Baerz & Co Property Brochure

كتيب

فيديوهات

طلب معلومات / مشاهدة

Chantal Cunningham profile image
Chantal Cunningham
Chief Property Advisory

Buying a Luxury Property in Barcelona

ترحب سوق العقارات الفاخرة في برشلونة بالمقيمين الدوليين الساعين لنمط حياة راقٍ، وثقافة نابضة، وفرص استثمار آمنة. ينتظركم مزيج من التراث والمجتمع والخدمات العالمية في قلب البحر الأبيض المتوسط.