Ons kantoor is lid van Baerz & Co Luxury Homes; een internationaal platform dat exclusieve woningmakelaars met elkaar verbindt. Neem contact op met ons secretariaat voor meer informatie over het landelijke aanbod, waarvan u hieronder een selectie kunt bekijken.

BAARLE-NASSAU
Hoogbraak 48 - 5111 CT
هولندا

Andy Tjokrokoesoemo profile image
Andy Tjokrokoesoemo
Real Estate Agent
€1,595,000 k.k.
مساحة المعيشة
466m2
حجم الأرض
2270m2
غرف نوم
3

الوصف

تدعو فيلا بارلي-ناسو إلى أسلوب حياة راقٍ يتسم بالفخامة. هذه الفيلا الفسيحة، التي تبلغ مساحتها السكنية 466 م² وتقع على قطعة أرض خاصة بمساحة 2,270 م²، تجمع بين الهندسة المعمارية الرفيعة وسهولة العيش المعاصرة في عنوان رئيسي بقلب بارلي-ناسو. هنا، يتكامل تدفق وضوح المساحات مع وفرة الضوء الطبيعي وخطوط الرؤية المدروسة بعناية التي توجهك عبر كل غرفة رحبة. فيلا بارلي-ناسو تتميّز بتصنيف طاقة من الفئة A، ما يضمن راحة مستدامة.

يضم الطابق الأرضي ثلاث مساحات معيشية مترابطة، تتميز كل منها بفرادتها بينما توحدها الأسقف المرتفعة والنوافذ الكبيرة. تضفي الأرضيات الخشبية وموقد الغاز المدمج جواً هادئاً، بينما تفتح غرف المعيشة والطعام بسلاسة على الشرفة والحديقة ذات التنسيق البديع. المطبخ اللافت للنظر، بتصميمه المفتوح وجزيرته المركزية الكبيرة، مجهز بأجهزة متطورة من ضمنها أنظمة BORA المعيارية وخزانة تحكم مناخي للنبيذ—أماكن مثالية لتجمع العائلة وأداء الطقوس اليومية بهدوء. الجناح متعدد الاستخدامات المجاور يضم غرفة خدمات، مكتباً، غرفة حديقة، ومدخلاً مستقلاً؛ قابل للتكيف كإقامة ضيوف أو جناح رعاية أو مساحة عمل احترافية.

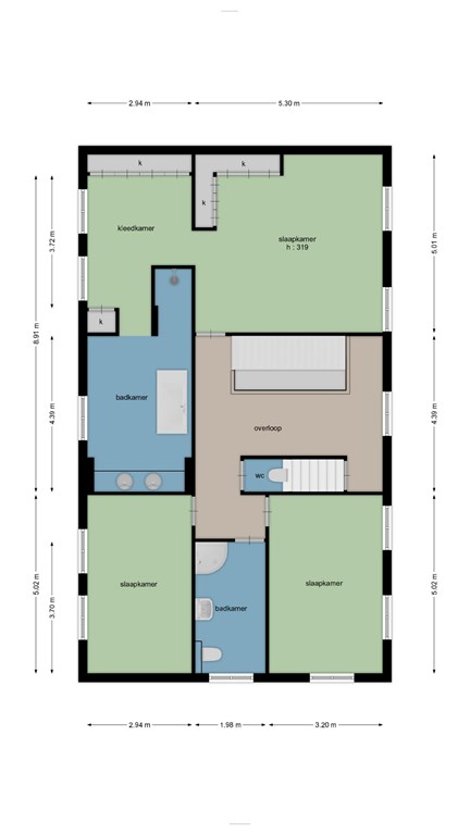
في الطابق الأول، جناح رئيسي يطل على الحديقة ويشمل غرفة ملابس منفصلة وحماماً خاصاً مع دش مفتوح وحوض استحمام مستقل وحوضين مزدوجين. غرفتا نوم إضافيتان وحمام ثانٍ يعكسان التناسق المدروس للمنزل؛ الضوء والارتفاع يضفيان طاقة هادئة على كل ركن. العلية، وهي مساحة كبيرة مرنة مع توصيلات للغسيل، توفر إمكانيات لمزيد من التخصيص.

في الخارج، الحدائق المنسقة بعناية تدعو إلى حياة خارجية هادئة. تحيط بالمنزل مساحات خضراء، نباتات ناضجة، أشجار فاكهة، ومناطق جلوس متنوعة، وتكتمل بشرفة مدفأة بإضاءة مخفية ونظام ري أوتوماتيكي. تتضمن الميزات العملية مرآبًا مزدوجًا، أماكن وقوف سيارات وافية، وتحضيراً لمحطة الشحن الكهربائي. الأمان مضمون بنظام إنذار متكامل.

يقع هذا العقار في بارلي-ناسو ويوفر توازناً بين الخصوصية وسهولة الوصول، مع قرب المدارس الهولندية والبلجيكية، الأندية الرياضية، محلات السوبر ماركت، والخدمات الطبية. موقع القرية الفريد كجيب خاص، محاط بالمثلث الأخضر بين بريدا وتيلبورغ وتورنهاوت، يضمن سهولة الوصول إلى مسارات الطبيعة والمرافق الثقافية. هذه الفيلا الفاخرة المعروضة للبيع في بارلي-ناسو جاهزة للسكن وصممت لأولئك الذين يقدرون الهدوء والتفاصيل المدروسة بعناية.

استكشف Baarle-Nassau مع Baerz، مستشارك الشخصي الموثوق للعقارات

تتطلب سوق بارله-ناسّاو العقارية خبرة محلية معمقة ونظرة عالمية. تعقيدات الحدود والمخزون المحدود تفرض الحصرية للفرص الخاصة. المستشارون المخضرمون يتمتعون بمهارات تفاوض متقدمة ومعرفة بالبروتوكولات الهولندية والبلجيكية، ما يساعد العملاء على تجنّب المخاطر وتعزيز الخصوصية والقيمة.

تجنب الأخطاء الشائعة

غالبًا ما يضيع المشترون الدوليون وقتًا ثمينًا على قوائم مكررة أو قديمة أو مضللة عبر الإنترنت، خاصة وأن ما يقرب من 30% من المنازل الفاخرة لا تظهر أبدًا في السوق العام. يمثل وكلاء البائعين مصالح البائع، وليس المشتري. حتى طلب معلومات عن عقار يمكن أن يؤدي إلى تسجيل وكيل البائع لك كـ "عميل" دون موافقتك.
مع بايرز فايندرز ومستشارو العقارات، تتجنب كل هذه الأخطاء تمامًا. نحن نعمل فقط نيابة عنك، ونقدم تمثيلًا مستقلًا، وإرشادات واضحة والوصول إلى جميع العقارات المتاحة، بما في ذلك الفرص خارج السوق التي لا يراها الآخرون أبدًا.

مهتم بمستشار عقارات شخصي؟

نحن نعرض لك جميع المنازل المتاحة في مكان واحد. لا تتردد في الاتصال بنا لمعرفة كيف يمكننا تلبية احتياجاتك وحماية مصالحك بشكل حصري.

الميزات

نظام إنذار
مرآب
نقل الملكية
السعر المطلوب
€ 1.595.000 k.k.
الحالة
Available
القبول
In Concert
المرجع
179
البناء
نوع المنزل
Villa
نوع المبنى
Detached House
فترة البناء
2009
تصنيف الطاقة
A
نوع السقف
hipped
غرف نوم
3
حمامات
2
المساحات السطحية والحجم
مساحة المعيشة
466 m2
مساحة داخلية أخرى
25 m2
المساحة الخارجية الملحقة بالمبنى
17 m2
الحجم بالمتر المكعب
1854 m3
حجم الأرض
2270 m2
المرافق
Alarm
Garage
Garden
Baerz & Co Property Brochure

كتيب

فيديوهات

مخططات الطوابق

Van Baarle Makelaardij

Hoogbraak 1
5111 CS Baarle-Nassau

andy@vanbaarlemakelaardij.com
+31 013762 02 02

www.vanbaarlemakelaardij.com

طلب معلومات / مشاهدة

Andy Tjokrokoesoemo profile image
Andy Tjokrokoesoemo
Real Estate Agent